Compact town infill site with residential potential and easy road access.
Historic outline permission for six dwellings (ref: W/01/01577/OUT)
A compact urban development plot on Bath Road, Melksham, offered freehold with vacant possession. The site extends to 0.161 acres (651 sq m) and is currently a tarmac‑surfaced car park with a regular, largely rectangular shape and low retaining walls. Historic outline planning permission (ref: W/01/01577/OUT) was granted for a six‑unit residential scheme; plans are available on request.
This location suits a small infill residential project for a developer or investor seeking a town‑centre scheme with good road links (close to the A365) and local amenities nearby. The plot’s size and shape favour a compact terrace or small block of flats rather than large detached houses, and the previous permission demonstrates realistic residential potential subject to renewal or amendment.
Important considerations are stated plainly: the planning consent is historic outline permission and will require confirmation or new consent (STPP). The site shows surface wear and some overgrowth and will need site clearance and renovation works prior to construction. There is a medium flood risk and local indicators show higher crime and significant area deprivation, factors that will influence design, specification and sales or rental values.
Offers in the region of £300,000 are invited. This plot represents a low‑scale development opportunity for purchasers prepared to manage planning risk and local constraints, with clear potential if a suitable scheme and funding route are achieved.
Land for sale in The Former Church of the Good Shepherd, Brow Hill, Batheaston, BA1 — POA • 1 bed • 1 bath • 21780 ft²
Land for sale in High Street, Dilton Marsh, Westbury, BA13 — £3,000,000 • 1 bed • 1 bath
Plot for sale in Waiblingen Way, Devizes, SN10 — £90,000 • 1 bed • 1 bath • 1400 ft²
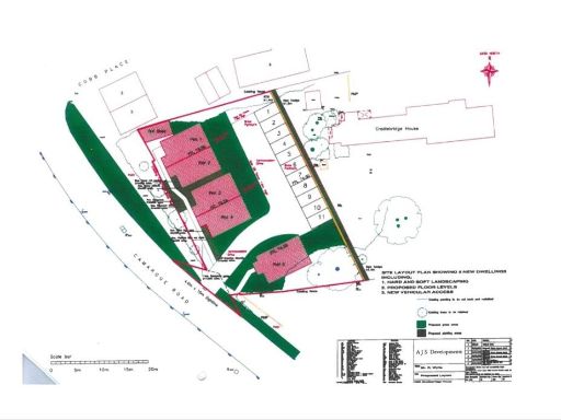
Land for sale in Camargue Road, Westbury, BA13 — £385,000 • 1 bed • 1 bath
Land for sale in Marlborough Buildings, Bath, BA1 — £15,000 • 1 bed • 1 bath
Plot for sale in High Street, Great Cheverell, Devizes, SN10 — £350,000 • 1 bed • 1 bath • 2172 ft²






