Ready-approved building plot with consent for a four-bedroom executive home on 0.4 acre.
Planning consent granted MO/2025/0407 on 12 Sept 2025 for one detached dwelling
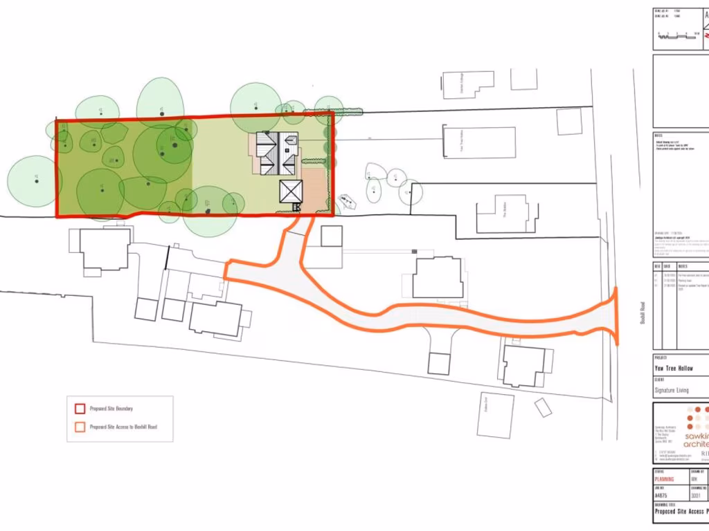
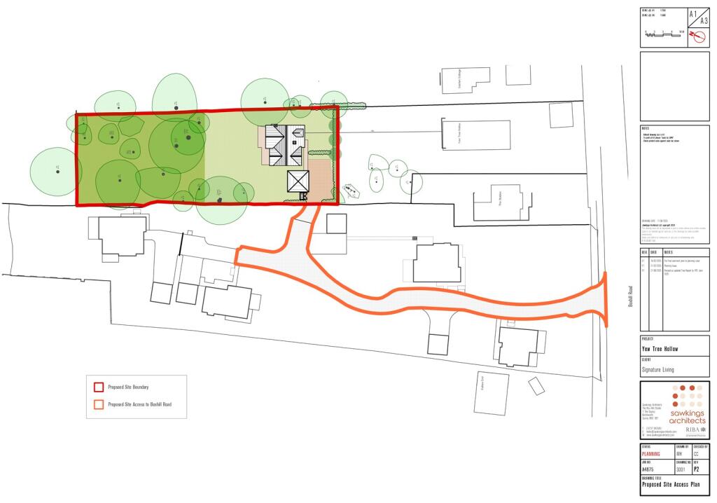
Freehold plot of approximately 0.4 acre with established, secluded grounds
Consented two-storey home: 1,945 sq ft, 4 bedrooms, 3 bathrooms
Includes consent for a detached two-bay car barn and bin/refuse store
No flood risk; excellent mobile signal and fast broadband available
Located in Green Belt/AONB — alterations subject to strict planning controls
Buyer responsible for construction costs, site works and complying with conditions
Council tax band unknown; purchasers should verify service connections
An exceptional, ready-permitted development plot in Tadworth with planning consent (MO/2025/0407, granted 12 Sept 2025) to build a two-storey detached family home of 1,945 sq ft plus a two-bay detached car barn. The freehold plot extends to about 0.4 of an acre and sits in a secluded setting close to Box Hill and surrounding Surrey countryside. New-build specification in the consent includes a kitchen/dining room, living room, study, four bedrooms and three bathrooms.
This site will appeal to buyers seeking a substantial family home in an unspoilt, semi-rural location within an Area of Outstanding Natural Beauty. Practical benefits include fast broadband, excellent mobile signal and no identified flood risk. The site plan and proposals show scope for sensitive landscaping to take advantage of privacy and the large garden area.
Important practical points: the consented scheme is in the Green Belt/AONB, so further changes will be subject to strict planning controls and conditions — purchasers must review the full planning decision and any associated conditions with Mole Valley District Council. The plot is a cleared development opportunity: building costs, site preparation and planning-condition compliance will be the buyer’s responsibility. Council tax band and final service connections are to be confirmed.
Plot for sale in Bechwood Close, Box Hill, Tadworth, KT20 — £575,000 • 4 bed • 3 bath • 1945 ft²
4 bedroom detached house for sale in Hambledon Road, Hydestile, Godalming, GU8 — £2,750,000 • 4 bed • 4 bath • 3748 ft²
5 bedroom detached house for sale in Boxhill Road, Tadworth, Surrey, KT20 — £1,200,000 • 5 bed • 2 bath • 2681 ft²
Residential development for sale in Rockfield Road, Oxted, Surrey, RH8 — £895,000 • 1 bed • 1 bath • 3653 ft²
3 bedroom detached house for sale in Headley Heath Approach, Boxhill, KT20 — £879,000 • 3 bed • 2 bath • 1014 ft²
Plot for sale in Hambledon Road, Hydestile, Godalming, GU8 — £1,000,000 • 1 bed • 1 bath • 3748 ft²














