Ready-for-build five-bedroom design on an exceptionally large secluded plot near Oxted amenities.
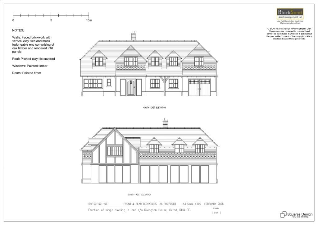
Planning permission granted on appeal for a five-bedroom detached house
Generous plot c.1,520 m² with proposed dwelling of 3,653 sq ft
GDV approximately £2.5m, indicating strong resale potential
CIL liability expected at around £64,000 to factor into costs
Off-street parking, access and turning area included in permission
Excellent commuter links and fast broadband; strong local amenities
Tenure currently unknown — to be confirmed before purchase
Requires construction funding and project management to realise value
This extremely large plot in desirable Oxted comes with planning permission granted on appeal for a five-bedroom detached house, making it a rare ready-to-build development opportunity. The proposed dwelling offers around 3,653 sq ft of living space, off-street parking, turning area and generous private gardens on a plot of approximately 1,520 m² — appealing to families seeking space or developers targeting a high-value sale.
The location combines suburban calm with strong commuter links: fast broadband, excellent mobile signal and direct trains to London Bridge and Victoria. Local schools include several highly regarded state and independent options, and the town offers shops, restaurants and leisure facilities that support family life and rental demand.
Financially, the GDV is estimated at £2.5m, with Community Infrastructure Levy (CIL) expected to be circa £64k. Buyers should allow for construction costs, statutory fees and any abnormal site works; the price and planning assume onward build rather than a ready home. Tenure details are unknown and should be verified before exchange.
This plot suits an experienced developer or a family wanting a custom new home in a very affluent area. The site delivers clear value drivers — size, planning and location — but requires capital, project management and confirmation of tenure and final costings before commitment.
Detached house for sale in Land to the Rear Of Rivington House, Rockfield Road, RH8 — £995,000 • 1 bed • 1 bath • 3653 ft²
4 bedroom detached house for sale in Parklands, Oxted, Surrey, RH8 — £1,675,000 • 4 bed • 2 bath • 2198 ft²
4 bedroom detached house for sale in Boxhill Road, Tadworth, Surrey, KT20 — £575,000 • 4 bed • 3 bath • 1945 ft²
5 bedroom detached house for sale in Custom Build House to the Rear Of Rivington House, Rockfield Road, Oxted, Surrey., RH8 — £1,995,000 • 5 bed • 5 bath • 3653 ft²
5 bedroom detached house for sale in Ashen Grove Road, Otford Hills, TN15 — £1,350,000 • 5 bed • 3 bath • 2066 ft²
Plot for sale in Bechwood Close, Box Hill, Tadworth, KT20 — £575,000 • 4 bed • 3 bath • 1945 ft²


































