Outline approval for 55 homes; scope for 106 units total in a town-centre fringe location.
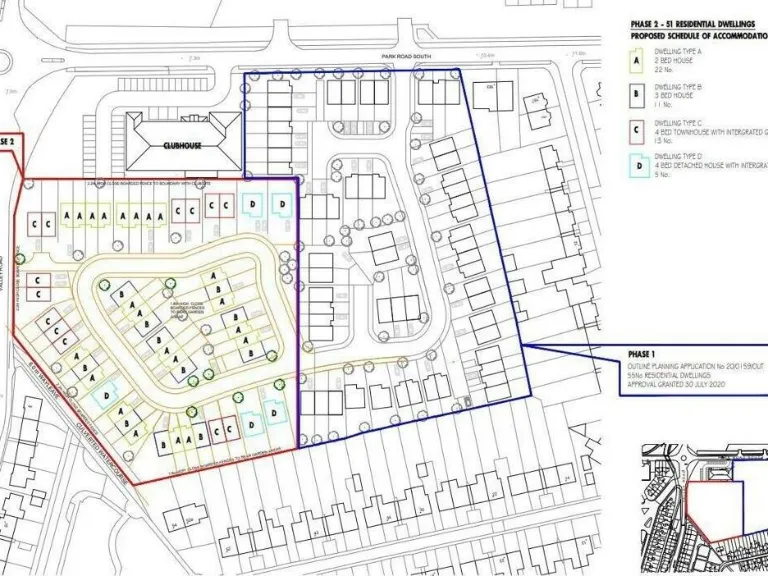
5.3-acre brownfield site split into two development phases
This 5.3-acre brownfield site on Park Road South offers a clear developer opportunity close to Middlesbrough town centre and Albert Park. The land is split into two phases: Phase 1 (2.77 acres) already has outline planning approved for 55 units (Ref: 20/0159/OUT) and is offered at £2,000,000. Phase 2 (2.6 acres) is earmarked for a further 51 houses, with a planning decision pending (Ref: 22/0107/OUT), giving potential for 106 units in total.
The location sits directly opposite Miller Homes’ Ceremony Wynd development and benefits from an excellent mobile signal and immediate access to green space and local schools (several rated Good by Ofsted). The site is within a 10-minute walk of Middlesbrough town centre, which supports sales or lettings demand for family and first-time buyer housing in the area.
Buyers should note material considerations: this is brownfield land in a very deprived area with a very high recorded crime rate; remediation, security measures, and community-sensitive design will be important. Broadband speeds are reported as slow. Tenure is currently unknown and prospective purchasers should verify title CE250887 and any site-specific constraints or remediation obligations.
For an experienced developer or investor, the combination of an approved outline for Phase 1, close proximity to an active new-build neighbour, and a large combined plot offers clear scale and delivery potential. However, build costs, site works, and the local socio-economic challenges should be factored into feasibility and sales/letting assumptions.
Commercial development for sale in Brighouse Business Village, Brighouse Road, Middlesbrough, North Yorkshire, TS2 — £1,200,000 • 1 bed • 1 bath
Land for sale in Land at Ainstable Road, Ormesby, Middlesbrough, TS7 — £1,000,000 • 1 bed • 1 bath
Land for sale in Henry Street, Middlesbrough, North Yorkshire, TS6 — POA • 1 bed • 1 bath
Showroom for sale in Land/Compound at, Brewsdale Road, Middlesbrough, TS3 — £950,000 • 1 bed • 1 bath
Land for sale in Former St Thomas Church Site, Pallister Avenue, Brambles Farm, Middlesbrough, TS3 9BE, TS3 — £445,000 • 1 bed • 1 bath
Land for sale in Mannion Court, South Bank, Middlesbrough, TS6 6PY, TS6 — £75,000 • 1 bed • 1 bath • 13939 ft²






















