Three-bedroom house with large garden and extension potential for growing families.
Large 0.21-acre corner plot with wraparound garden and patio
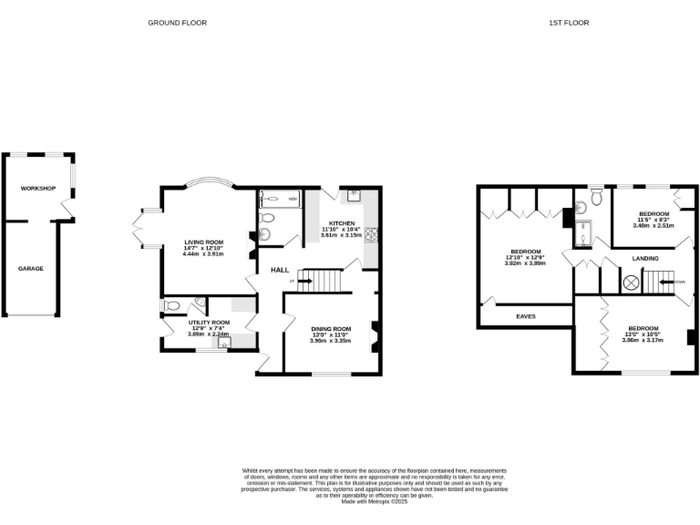
Set at the end of a quiet cul-de-sac on a generous 0.21-acre corner plot, this three-bedroom semi-detached home offers space and clear potential for a growing family. The house combines traditional post‑war character externally with more modern, well-lit living spaces inside, including a dual-aspect living room and separate dining room. Driveway parking for multiple vehicles and a single garage with attached workshop add practical storage and parking options.
Internally the layout is straightforward: kitchen, utility room and a ground-floor shower room, with three good-sized bedrooms and a second shower room upstairs. The property is freehold and chain-free, with an EPC rating of C (69) and council tax band D. Broadband and mobile signal are strong, and local schools are rated Good, making this convenient for family life.
The large wraparound garden and the plot size are the main value drivers — there is scope to extend (subject to planning permission) or reconfigure the existing footprint to add living space or a home office. Outbuildings and patio space support outdoor entertaining and hobby use.
Notable considerations: the house is post‑war construction (c. 1950–66) and cavity walls are assumed uninsulated, so thermal upgrades could reduce running costs. The exterior is dated and will likely require cosmetic updating; details on glazing install dates are unknown. Buyers should factor potential renovation and planning costs into their budgets, even though the property is habitable and well maintained.
3 bedroom semi-detached house for sale in Southwood Road, Farnborough, GU14 — £550,000 • 3 bed • 1 bath • 1031 ft²
4 bedroom semi-detached house for sale in Carlyon Close, Mytchett, Camberley, Surrey, GU16 — £600,000 • 4 bed • 1 bath • 1500 ft²
3 bedroom semi-detached house for sale in Darby Green Lane, Camberley, GU17 — £375,000 • 3 bed • 1 bath • 965 ft²
3 bedroom detached house for sale in Woburn Avenue, Farnborough, Hampshire, GU14 — £475,000 • 3 bed • 2 bath • 862 ft²
3 bedroom semi-detached house for sale in Charlecote Close, Farnborough, Hampshire, GU14 — £425,000 • 3 bed • 1 bath • 822 ft²
3 bedroom semi-detached house for sale in Maskell Way, Farnborough, GU14 — £430,000 • 3 bed • 1 bath • 798 ft²


















































