Spacious family home with large private garden and scope to extend.
- Extended four-bedroom semi-detached family home
- Generous west-facing rear garden with good privacy
- Two reception rooms creating flexible living space
- Separate kitchen with scope to modernise or extend STPP
- Driveway parking plus integral garage with electric roller door
- Single family bathroom only; may be limiting for larger families
- EPC D (62) and Council Tax Band E (above average)
- Built 1967–1975; potential updating and improvement opportunities
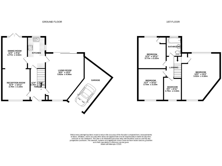
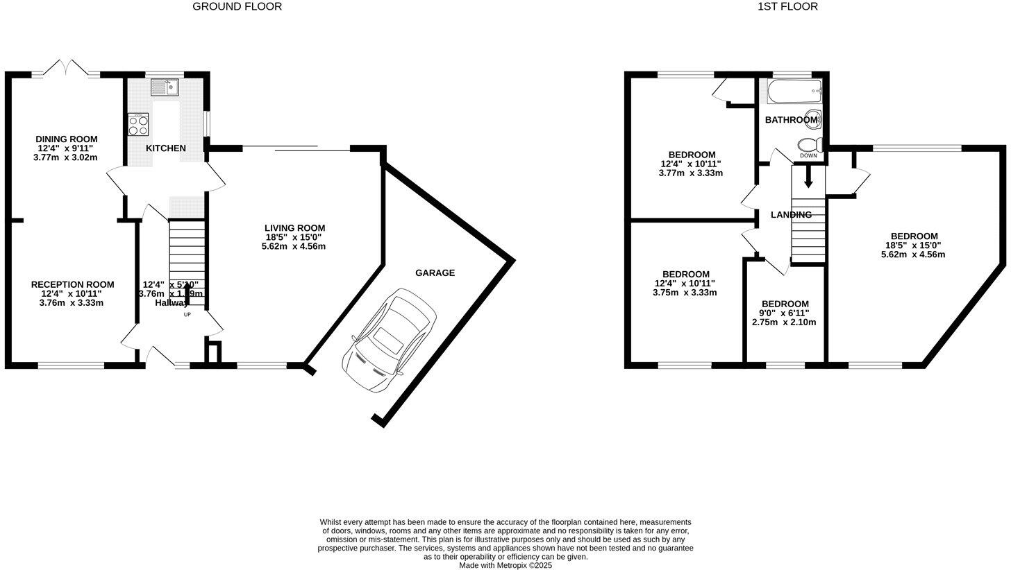
Tucked at the end of a peaceful cul-de-sac, this extended four‑bedroom semi offers flexible family living across about 1,500 sq ft. Ground floor reception rooms flow through to a generous west‑facing garden, creating an easy indoor–outdoor layout for everyday family life and weekend entertaining.
The house includes two reception rooms, a separate kitchen with scope for modernisation or a rear extension (subject to planning), and an integral garage with driveway parking. Upstairs are three good double bedrooms plus a fourth bedroom and a single family bathroom — practical accommodation for growing families.
Notable positives are the sizeable, private garden, off‑street parking and double glazing fitted after 2002. The property was constructed in the late 1960s–1970s and presents potential to update and add value, particularly if you wish to extend (STPP).
Buyers should note the EPC rating is D (62) and there is only one family bathroom. Council Tax sits in Band E (above average). Overall this is a well‑located, comfortable family home that rewards modest investment and offers scope to personalise and increase living space.
3 bedroom semi-detached house for sale in Robert Way, Mytchett, Surrey, GU16 — £500,000 • 3 bed • 1 bath • 880 ft²
4 bedroom semi-detached house for sale in Sherwin Crescent, Farnborough, Hampshire, GU14 — £575,000 • 4 bed • 3 bath • 1142 ft²
4 bedroom detached house for sale in Cumberland Road, Camberley, Surrey, GU15 — £650,000 • 4 bed • 1 bath • 1381 ft²
4 bedroom detached house for sale in Constable Way, College Town, Sandhurst, Berkshire, GU47 — £750,000 • 4 bed • 2 bath • 1334 ft²
4 bedroom detached house for sale in Rideway Close, Camberley, Surrey, GU15 — £525,000 • 4 bed • 1 bath • 846 ft²
4 bedroom detached house for sale in Buckingham Way, Frimley, Camberley, Surrey, GU16 — £600,000 • 4 bed • 3 bath • 1089 ft²






































































