Bright living and extension potential near excellent schools and green spaces.
- Three double bedrooms with built-in wardrobes
- Conservatory opening onto private corner-plot garden
- Large driveway plus separate single garage
- Potential to extend (subject to planning permission)
- EPC rating D (58) — may need energy improvements
- Council Tax Band E — above-average running cost
- Built circa 1976–1982; some updating likely required
- Freehold and offered with no onward chain
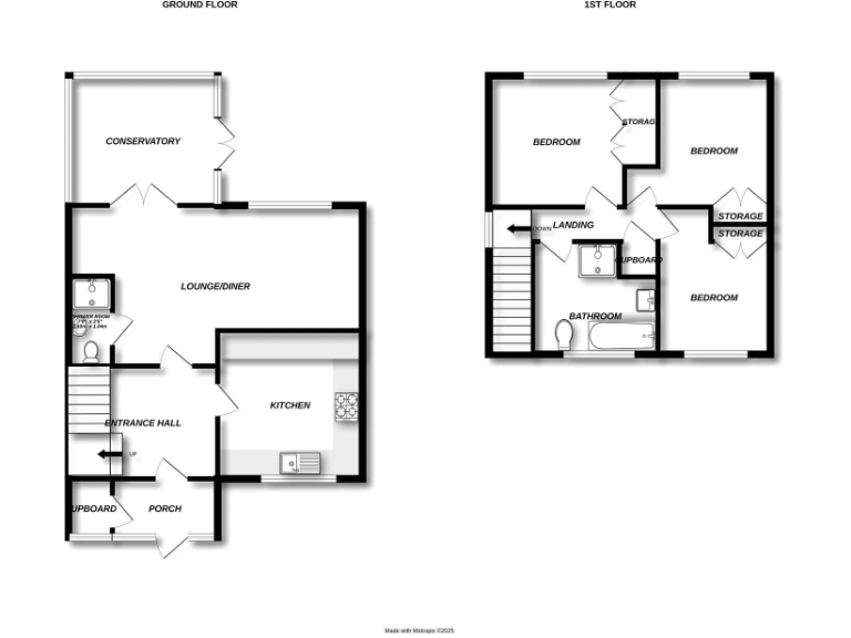
Set on a desirable corner plot close to King George V playing fields, this three-bedroom detached home offers comfortable family living with clear scope to personalise. The ground floor flows from a welcoming entrance porch into a sizeable family room and conservatory, creating bright entertaining space that opens directly onto a private garden. A fitted kitchen and convenient downstairs cloakroom add everyday practicality.
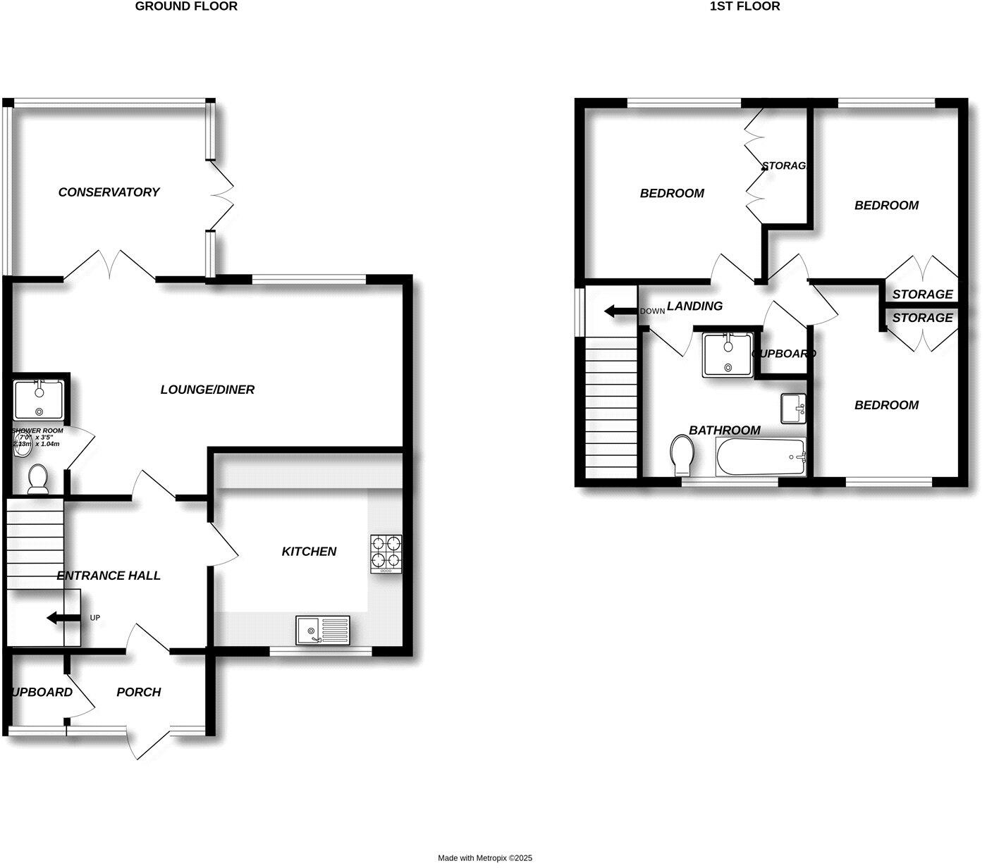
Upstairs are three double bedrooms with built-in wardrobes and a large four-piece family bathroom, providing flexible sleeping arrangements for a growing family. The property benefits from a long brick-paved driveway and a separate garage, giving ample parking and storage. Local schools rated Good to Outstanding are within walking distance, and travel links are readily accessible.
There is promising potential to extend, subject to planning permission, which will appeal to buyers wanting to add value or adapt the layout. Notable practical considerations include an EPC rating of D (58), Council Tax Band E and parts of the house dating from the late 1970s — some updating may be needed. The home is offered Freehold with no onward chain, simplifying the purchase timetable.
3 bedroom semi-detached house for sale in Pyestock Crescent, Farnborough, Hampshire, GU14 — £475,000 • 3 bed • 1 bath • 814 ft²
3 bedroom semi-detached house for sale in Charlecote Close, Farnborough, Hampshire, GU14 — £425,000 • 3 bed • 1 bath • 822 ft²
3 bedroom detached house for sale in Woburn Avenue, Farnborough, Hampshire, GU14 — £475,000 • 3 bed • 2 bath • 1048 ft²
3 bedroom semi-detached house for sale in Faraday Road, Farnborough, Hampshire, GU14 — £525,000 • 3 bed • 2 bath • 1334 ft²
3 bedroom semi-detached house for sale in Tower Hill, Farnborough, Hampshire, GU14 — £450,000 • 3 bed • 1 bath • 743 ft²
4 bedroom detached house for sale in Cambridge Road West, Farnborough, Hampshire, GU14 — £800,000 • 4 bed • 2 bath • 1139 ft²


























































