ST17 4FW - 4 bed modern family detached in Stafford, ST17 4FW

View on Property Piper

4 bedroom detached house for sale in Off St. Leonards Avenue, Stafford, ST17 4FW , ST17

Summary - 4, Anemone Avenue, Littleworth, Stafford ST17 4FW

4 bed 1 bath Detached

Energy-efficient four-bed detached with garden, garage and parking in comfortable Stafford suburb.
Four bedrooms across three storeys with master en-suite and fitted wardrobes
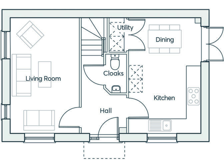
This three-storey, four-bedroom detached new build offers contemporary family living in a comfortable Stafford suburb. The open-plan kitchen/dining area with concealed utility and French doors flows onto a private garden, while a separate living room provides a quieter lounge space. An en-suite to the master and fitted wardrobes in two bedrooms add daily convenience.

Energy-efficient features include PV solar panels (available on selected plots) and modern insulation, helping reduce running costs. The home includes a single garage plus two driveway parking spaces and sits in a very affluent, low-crime area with fast broadband and excellent mobile signal. Nearby primary and secondary schools rated Good to Outstanding suit families.

Practical considerations: the property’s total internal area is modest at about 1,105 sq ft across three storeys, and the advertised bathroom count is limited for four bedrooms (one main bathroom plus an en-suite). As a new build, the finish is contemporary but some buyers may want additional storage or layout tweaks.

Overall, this home suits families seeking a modern, low-maintenance house in a quiet, well-connected neighbourhood, with good local schools and green space nearby.

Property Details

Brochure Descriptions

Image Descriptions

Floorplan Description

Rooms

Textual Property Features

Target Audience

AI Tags

Detected Visual Features

Nearby Schools

Nearest Bars And Restaurants

,,,,}

Nearest General Shops

,,}

Nearest Grocery shops

,,}

Nearest Supermarkets

,,}

Nearest Religious buildings

,,}

Nearest Medical buildings

,,,}

Nearest Leisure Facilities

,,,,}

Nearest Tourist attractions

,,}

Nearest Train stations

,,,,}

Nearest Bus stations and stops

,,,,}

Nearest Hotels

,,}

Tags

Local Market Stats

AirBnB Data

Similar Properties

Meta

High Res Images

Compatible Images

Low res Images

Thumbnails

Raw Images

High Res Floorplan Images

Compatible Floorplan Images

Low res Floorplan Images

FloorplanImages Thumbnail

Raw Floorplan Images