ST17 4FW - 4 bedroom semidetached house for sale in Off St. Leonards A…

View on Property Piper

4 bedroom semi-detached house for sale in Off St. Leonards Avenue, Stafford, ST17 4FW , ST17

Summary - 4, Anemone Avenue, Littleworth, Stafford ST17 4FW

4 bed 1 bath Semi-Detached

New four-bedroom family home with garden, PV panels and 10-year warranty in quiet Stafford suburb..
New-build four-bedroom semi-detached with 10-year New Homes warranty
This newly built four-bedroom semi-detached home suits families seeking modern, low-maintenance living in a quiet Stafford suburb. An open-plan dining and living room with French doors provides a bright, social heart to the house and direct access to a private rear garden. The kitchen sits to the front and is designed for everyday use.

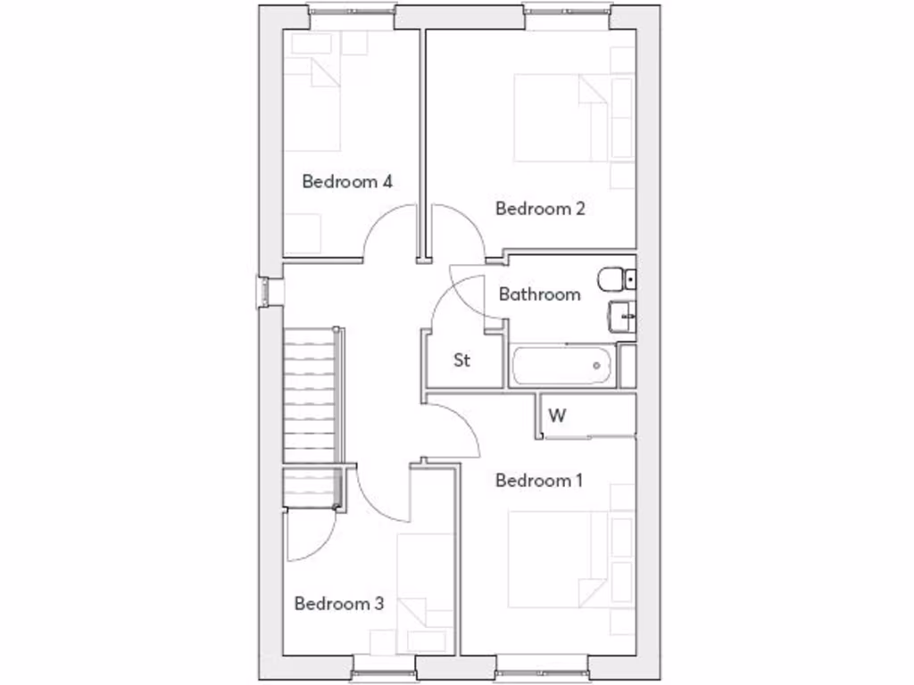
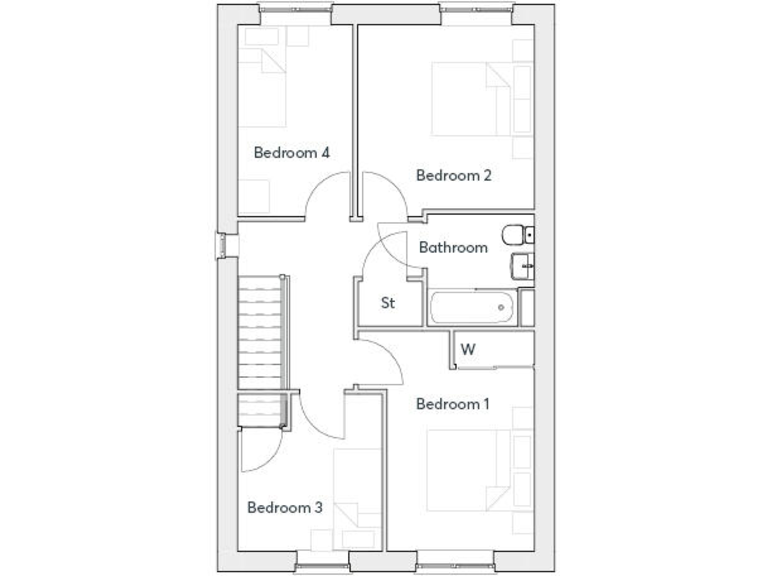
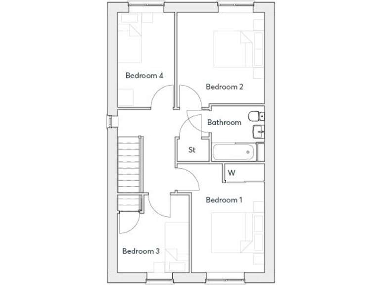
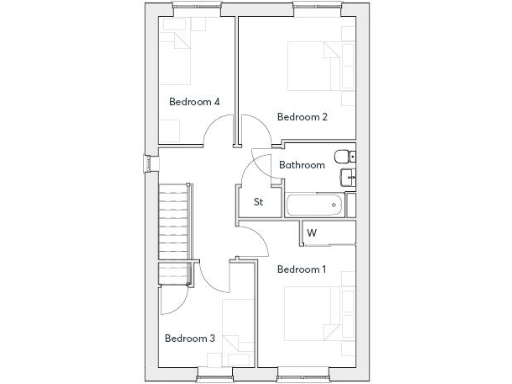
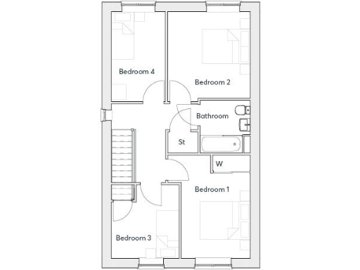
Practical features include PV solar panels fitted as standard and a 10-year New Homes warranty, which reduce running costs and add reassurance. The main bedroom benefits from a built-in wardrobe; there are two double bedrooms and two large single rooms upstairs alongside a family bathroom with bath and shower.

Be aware the overall internal size is compact for a four-bedroom home (approx. 709 sq ft) and there is only one bathroom, which may feel tight for larger families. Broadband speeds are fast and mobile signal is excellent, and the house sits in a low-crime, very affluent area with several well-rated primary and secondary schools nearby. This property is best for buyers who prioritise new-build reassurance, energy efficiency and location over generous internal floor area.

Property Details

Brochure Descriptions

Image Descriptions

Floorplan Description

Rooms

Textual Property Features

Target Audience

AI Tags

Detected Visual Features

Nearby Schools

Nearest Bars And Restaurants

,,,,}

Nearest General Shops

,,}

Nearest Grocery shops

,,}

Nearest Supermarkets

,,}

Nearest Religious buildings

,,}

Nearest Medical buildings

,,,}

Nearest Leisure Facilities

,,,,}

Nearest Tourist attractions

,,}

Nearest Train stations

,,,,}

Nearest Bus stations and stops

,,,,}

Nearest Hotels

,,}

Tags

Local Market Stats

AirBnB Data

Similar Properties

Meta

High Res Images

Compatible Images

Low res Images

Thumbnails

Raw Images

High Res Floorplan Images

Compatible Floorplan Images

Low res Floorplan Images

FloorplanImages Thumbnail

Raw Floorplan Images