ST17 4FW - 4 bedroom detached house for sale in Off St. Leonards Avenu…

View on Property Piper

4 bedroom detached house for sale in Off St. Leonards Avenue, Stafford, ST17 4FW , ST17

Summary - 4, Anemone Avenue, Littleworth, Stafford ST17 4FW

4 bed 1 bath Detached

**Standout Features:**
- Newly built, energy-efficient detached home
- Four spacious bedrooms, including en-suite master
- Open-plan kitchen/dining area with modern cabinetry
- Separate living room with contemporary design
- PV solar panels for reduced energy costs
- Private garden with access through French doors
- Single garage plus two driveway parking spaces
- Located in a low-crime, affluent suburb

**Summary:**
Discover comfort and modern living in this newly constructed, energy-efficient detached home nestled in the desirable suburb of Stafford (postcode ST17 4FW). This four-bedroom residence boasts an inviting open-plan kitchen and dining area, ideal for family gatherings, complemented by a stylish living room that offers a perfect retreat. French doors open onto a private garden, seamlessly blending indoor and outdoor spaces. The master bedroom features an en-suite, enhancing the home's appeal for families or those seeking extra comfort.

With the added benefit of PV solar panels, this property efficiently balances modern living with sustainability, significantly lowering energy bills. Parking is a breeze with a garage and two additional spaces. The neighborhood is known for its low crime rate and family-friendly atmosphere, supported by excellent local schools rated 'Good' or 'Outstanding'. This beautifully designed home stands out in the market—don’t miss your chance to make it yours, as properties like this are rare and won't stay available for long!

Property Details

Brochure Descriptions

Image Descriptions

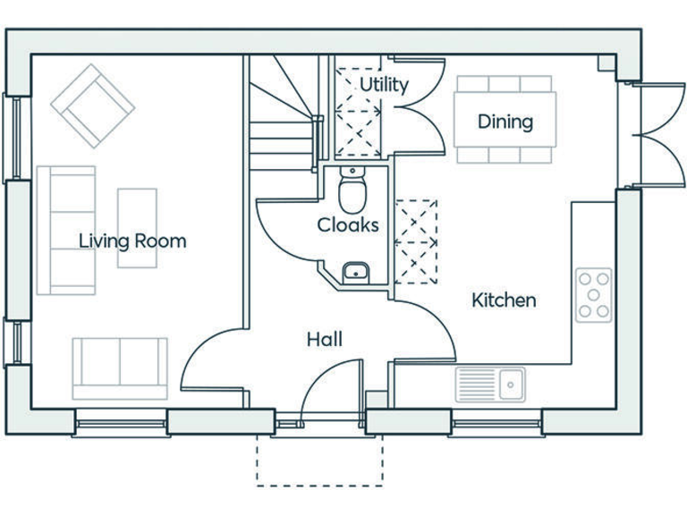
Floorplan Description

Rooms

Textual Property Features

Detected Visual Features

Nearby Schools

Nearest Bars And Restaurants

,,,,}

Nearest General Shops

,,}

Nearest Grocery shops

,,}

Nearest Supermarkets

,,}

Nearest Religious buildings

,,}

Nearest Medical buildings

,,,}

Nearest Leisure Facilities

,,,,}

Nearest Tourist attractions

,,}

Nearest Train stations

,,,,}

Nearest Bus stations and stops

,,,,}

Nearest Hotels

,,}

Tags

Local Market Stats

AirBnB Data

Similar Properties

Meta

High Res Images

Compatible Images

Low res Images

Thumbnails

Raw Images

High Res Floorplan Images

Compatible Floorplan Images

Low res Floorplan Images

FloorplanImages Thumbnail

Raw Floorplan Images