Contemporary family living with large garden and energy-efficient features.
Brand-new four-bedroom detached house with 10-year build warranty
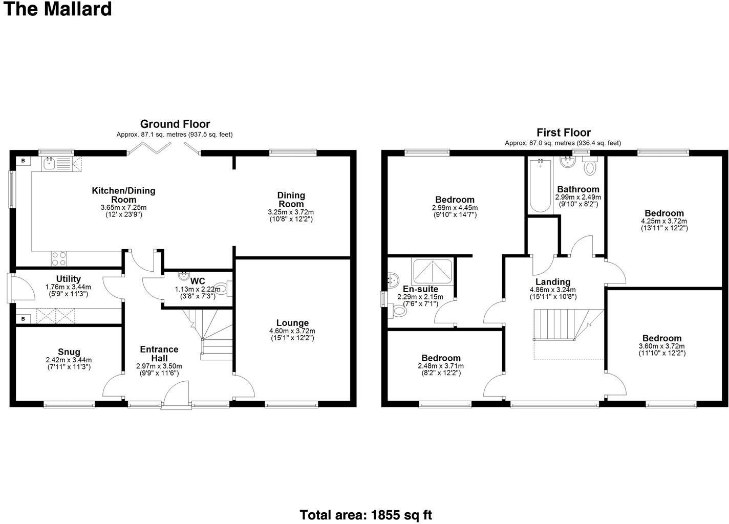
A newly built four-bedroom family house on a generous plot in the village of Gosberton. The Mallard offers open-plan living with a large kitchen-diner, separate dining/study, snug and lounge, plus a ground-floor utility and cloakroom — practical layouts for everyday family life and entertaining. The master bedroom includes an en-suite and dressing area.
Built with energy efficiency in mind, the home includes solar panels and underfloor heating, a double garage and driveway, and comes with a 10-year build warranty. The very large enclosed rear garden and plentiful glazing bring light and outdoor space that suits family gardening and children’s play.
Notable practical matters are transparent: the property sits in an ageing rural neighbourhood and is in a village location, which may mean fewer local amenities than a town. Flooding risk is recorded as medium and a Cherry Trees management company charge of £395 per year covers communal upkeep. Nearby secondary schooling quality is mixed — local primaries are well-rated but the nearest secondary has an inadequate Ofsted rating.
Overall, this new-build detached home will suit families seeking contemporary, energy-efficient living in a quiet village setting, but buyers should check flood insurance implications and local schooling before committing.
4 bedroom detached house for sale in Plot 18 The Mallard, Cherry Trees, Gosberton, Spalding, PE11 — £485,000 • 4 bed • 2 bath • 1855 ft²
4 bedroom detached house for sale in Plot 6, Cherry Trees, Gosberton, Spalding, PE11 — £450,000 • 4 bed • 2 bath • 1732 ft²
4 bedroom detached house for sale in Plot 5, Cherry Trees, Gosberton, Spalding, PE11 — £450,000 • 4 bed • 2 bath • 1732 ft²
5 bedroom detached house for sale in Plot 7, Cherry Trees, Gosberton, Spalding, PE11 — £550,000 • 5 bed • 3 bath • 2400 ft²
5 bedroom detached house for sale in Plot 17, Cherry Trees, Gosberton, Spalding, PE11 — £550,000 • 5 bed • 3 bath • 2400 ft²
4 bedroom detached house for sale in Plot 1, Cherry Trees, Gosberton, Spalding, PE11 — £360,000 • 4 bed • 1 bath • 1279 ft²






































































































































































































































































































































































