Ready-planned rebuild or commercial yard with services connected and operator’s licence.
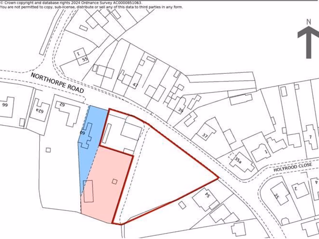
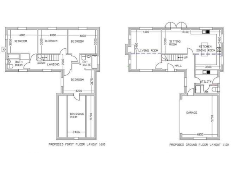
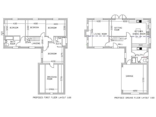
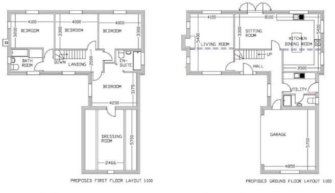
- Large freehold plot with planning permission approved (H04-0486-24)
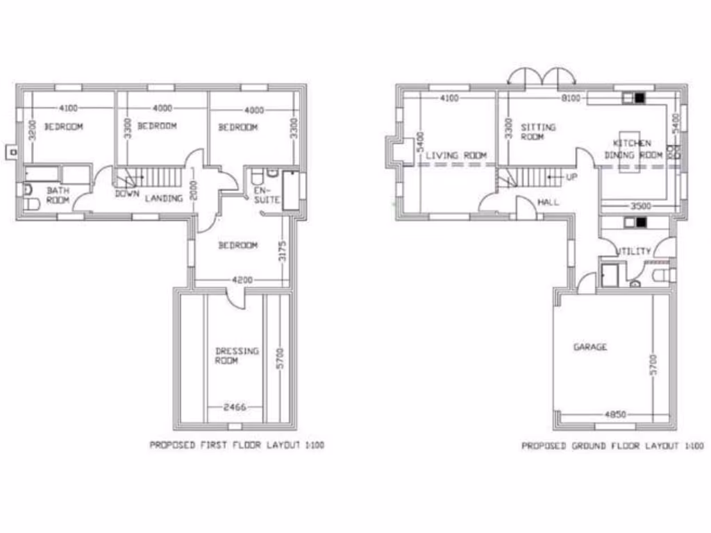
- Proposed 4-bed detached house with double garage included
- Power and water connected; operator’s licence retained on site
- Currently derelict workshop, yard and overgrown areas require clearance
- Flexible use: continue business yard or develop residential dwelling
- Medium flood risk; recommend site-specific flood and drainage survey
- Semi-rural village location with mature tree screening and road access
- Nearest secondary school rated Inadequate; primary schools rated Good
A substantial, versatile plot on Northorpe Road with planning permission approved (Application H04-0486-24) for a four-bedroom detached home with double garage. The site currently houses a steel-clad workshop and hardstanding; power and water are connected and an operator’s licence is held, allowing continued business use while you decide next steps.
The proposed new-build layout includes generous living spaces, a utility room and an en-suite to the principal bedroom, offering family-sized accommodation or a strong rental proposition once completed. Plot size is large for a single dwelling, giving scope for a substantial garden, parking court or retained commercial yard depending on buyer needs.
Buyers should note the site is presently derelict and overgrown, with a workshop and yard to be demolished under the approved scheme. There is a medium flood risk for the area and the location is semi-rural; drainage and detailed site surveys are recommended before purchase. Local services are accessible and nearby primary schools are rated Good, though the nearest secondary has a less favourable Ofsted outcome.
This plot suits developers, investors seeking a conversion or rebuild opportunity, or a household wanting to create a bespoke home in a sheltered village setting. The combination of connected services, planning in place and flexible existing use makes it a practical, short-route development plot subject to standard due diligence.
Residential development for sale in Residential Development Land, Millthorpe, Nr Pointon, NG34 — £325,000 • 1 bed • 1 bath • 2012 ft²
Land for sale in 4 x New Building Plot Development Site, Fengate Road, West Pinchbeck, Spalding, Lincolnshire, PE11 — £350,000 • 1 bed • 1 bath • 9856 ft²
Land for sale in Kirkby Underwood Road, Aslackby, NG34 — £175,000 • 1 bed • 1 bath • 10019 ft²
Plot for sale in Low Road, Spalding, PE12 — £550,000 • 1 bed • 1 bath • 1723 ft²
Land for sale in Building Plots with Full Planning Consent, PE11 — £149,950 • 1 bed • 1 bath • 10019 ft²
Plot for sale in Building Plot, Adj To 17 London Road, Osbournby, NG34 — £110,000 • 1 bed • 1 bath • 4417 ft²










































