Two large freehold plots with planning consent in peaceful rural setting near Spalding..
Full planning consent for detached five-bedroom houses (Ref: H17-0128-24).
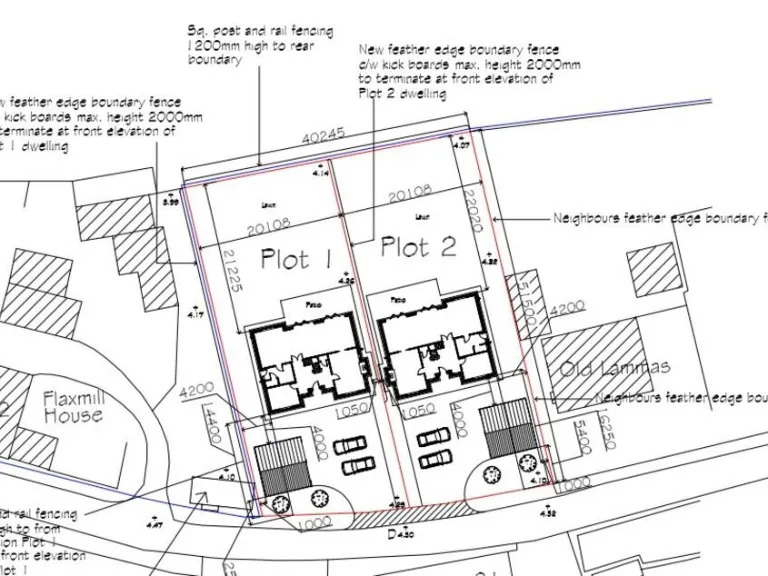
Two substantial building plots in Surfleet Seas End with full planning consent offer a clear development route for investors or self-builders. Each plot (approx. 0.093 ha / 0.23 acres) has consent for a detached five-bedroom house with double garage, off-road parking and private garden, providing strong end-value potential in a low flood-risk rural setting.
Mains water, drainage and electricity run along Reservoir Road and fast broadband is available, reducing infrastructure uncertainty; gas is believed to be nearby but buyers must confirm availability. The plots are accessed directly from the public highway and sit close to countryside walking routes, a reservoir, a pub/restaurant and a golf course, with Spalding around 5 miles away for wider services and rail links to Peterborough.
Full planning was granted by South Holland District Council (Ref: H17-0128-24) on 8 April 2024, but purchasers must review the decision notice and any conditions carefully. The land will be sold freehold and may be offered by private treaty, best and final offer, or auction — interested parties should confirm the sale method and timescales.
Buyers should allow for the costs and responsibility of connecting services, complying with planning conditions, investigating rights of way, and any site works. These plots suit developers seeking a quick-to-deliver plotted scheme or owner-builders prepared to manage the remaining pre-construction requirements and associated costs.
Property for sale in Building Plots with Full Planning Consent, PE11 — £149,950 • 1 bed • 1 bath
Land for sale in Residential Building Plot, Adj 72 & 80 Seas End Road, PE11 4DQ, PE11 — £90,000 • 1 bed • 1 bath • 7841 ft²
Land for sale in Plot Adjt to 144 Reservoir Road, Surfleet, Spalding, Lincolnshire, PE11 — £60,000 • 1 bed • 1 bath
Land for sale in Building Plot, PE11 4DQ, PE11 — £90,000 • 1 bed • 1 bath • 7841 ft²
Land for sale in Pinchbeck, PE11 — £1,900,000 • 1 bed • 1 bath
Land for sale in Siltside, Spalding, PE11 — £180,000 • 1 bed • 1 bath • 2186 ft²






