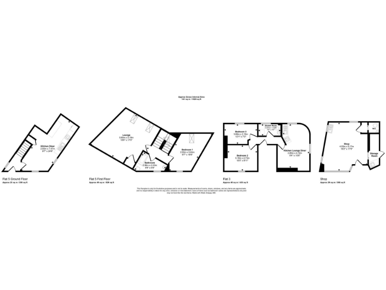
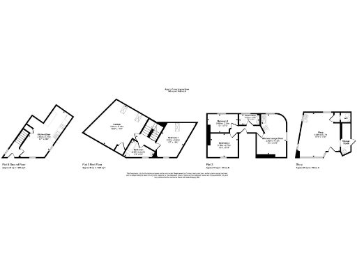
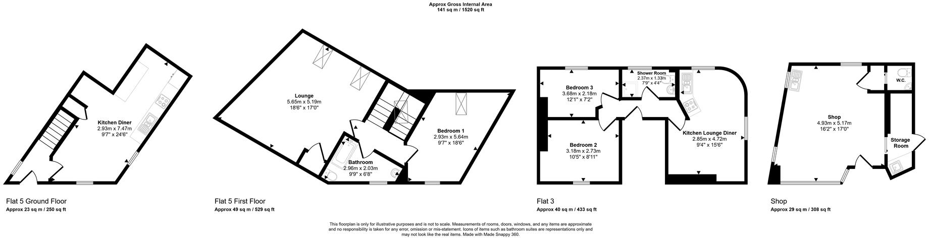
**Key Features:**
- Mixed-use commercial property with a sandwich shop and six residential flats
- Prime location on a busy street in Llandeilo
- 2 x 1-bedroom and 4 x 2-bedroom flats
- Currently tenanted, offering immediate rental income potential
- Two flats already let, four vacant for new owner’s choice of tenants
- Gas central heating throughout
- Freehold tenure with affordable council tax (Band B)
**Summary:**
Discover a unique investment opportunity with this mixed-use commercial property in the heart of Llandeilo. Comprising a prominent sandwich shop and six self-contained residential flats, this property is strategically located to capitalize on high foot traffic and local demand. The established shop delivers immediate income while the residential flats provide versatile rental options—enhanced by the possibility of modernizing the vacant units to maximize rental returns.
With its attractive façade and central position close to local amenities, including cafes, schools, and transport links, this property combines comfort and convenience. It’s an ideal choice for investors looking for a steady income stream or developers aiming to unlock potential through renovations. Don’t miss out on securing this diverse asset in a desirable area—opportunities like this are rare and won’t last long!
Terraced house for sale in Rhosmaen Street, Llandeilo., SA19 — £250,000 • 1 bed • 1 bath
1 bedroom terraced house for sale in Carmarthen Street, Llandeilo, Carmarthenshire., SA19 — £220,000 • 1 bed • 1 bath • 1787 ft²
3 bedroom terraced house for sale in Rhosmaen Street, Llandeilo, SA19 — £150,000 • 3 bed • 2 bath
3 bedroom detached house for sale in High Street, Llandybie, Ammanford, SA18 — £220,000 • 3 bed • 1 bath • 2139 ft²
Commercial property for sale in 46 Rhosmaen Street, Llandeilo, SA19 — £200,000 • 1 bed • 2 bath
High street retail property for sale in College Street, Ammanford, SA18 — £165,000 • 1 bed • 1 bath • 656 ft²






































































































