Chain-free 3-bed with extension potential and off-street parking.
Chain free with immediate vacant possession
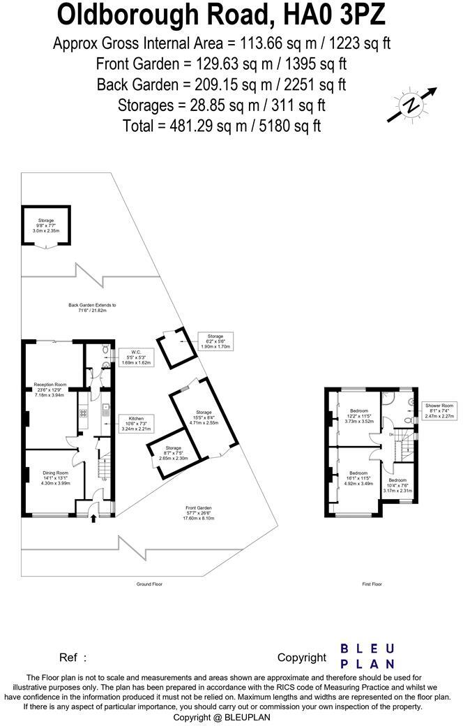
A roomy three-bedroom semi on Oldborough Road, offered chain-free and ready for a family's next chapter. The house benefits from a full-width ground-floor rear extension and a large through lounge and dining room that suit everyday family life and entertaining. Off-street parking and a private rear garden add practical outdoor space for children and pets.
The substantial side space is a clear value driver: there is potential for a double-storey side extension subject to planning, which could significantly increase living space and value. The property sits close to well-rated local schools (including East Lane Primary and Wembley High Technology College) and is around a five-minute walk from North Wembley and South Kenton stations, making commuting straightforward.
Built in the 1930s–40s with solid brick walls and double glazing of unknown age, the house will appeal to buyers wanting character and scope to modernise. Important negatives: there is a single family bathroom, the walls are assumed uninsulated (solid brick), and some updating may be required to kitchens, bathrooms and services to suit modern standards. Buyers planning major alterations should factor in planning costs and timescales.
Overall, this property suits a growing family or investor seeking a period home with immediate usable space and clear extension potential. It offers a blend of character, outdoor space and convenient transport links, but comes with typical period-property maintenance and upgrade considerations.
4 bedroom semi-detached house for sale in Oldborough Road, Wembley, HA0 — £775,000 • 4 bed • 2 bath • 1863 ft²
5 bedroom semi-detached house for sale in Paxford Road, Wembley, HA0 — £800,000 • 5 bed • 2 bath • 1818 ft²
5 bedroom semi-detached house for sale in Oldborough Road, Wembley, HA0 — £645,000 • 5 bed • 1 bath • 1554 ft²
3 bedroom semi-detached house for sale in Sudbury Avenue, Wembley, HA0 — £615,000 • 3 bed • 1 bath • 1128 ft²
3 bedroom terraced house for sale in Whitton Avenue West, Greenford, Middlesex, UB6 — £545,000 • 3 bed • 1 bath • 1355 ft²
5 bedroom semi-detached house for sale in Carlton Avenue West, Wembley, HA0 — £825,000 • 5 bed • 2 bath • 1723 ft²






















































