UB6 0DX - 3 bedroom terraced house for sale in Whitton Avenue West, G…

View on Property Piper

3 bedroom terraced house for sale in Whitton Avenue West, Greenford, Middlesex, UB6

Summary - 487 WHITTON AVENUE WEST GREENFORD UB6 0DX

3 bed 1 bath Terraced

Chain-free 3-bed home with full-width extension and off-street parking.
Chain free three-bedroom terraced house
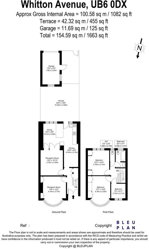
A spacious three-bedroom terraced house with a full-width 4m ground-floor extension, offered chain free. The open-plan kitchen-diner and two/three reception rooms create flexible family space across approximately 1,355 sq ft. Off-street parking accessed from the rear and a private rear garden add practical convenience for daily life.

This home sits close to good local schools and regular bus routes, with Sudbury Hill Piccadilly line within easy reach — a practical choice for commuting families. There is clear potential to increase living space by converting the loft, subject to planning permission, which would add long-term value.

Buyers should note the property occupies a relatively small plot and has a single family bathroom, which may be a consideration for larger households. The house is of solid-brick construction (c.1900–1929) and insulation details are unknown; upgrading wall insulation and overall energy efficiency could be needed.

Overall this is a well-sized, characterful family home that requires modest updating to improve energy performance and suit modern family needs. The chain-free position and extension make it an attractive proposition for purchasers wanting immediate space with scope to add value.

Property Details

Brochure Descriptions

Image Descriptions

Floorplan Description

Rooms

Textual Property Features

Target Audience

AI Tags

Detected Visual Features

EPC Details

Nearby Schools

Nearest Bars And Restaurants

,,,,}

Nearest General Shops

,,}

Nearest Grocery shops

,,}

Nearest Supermarkets

,,}

Nearest Religious buildings

,,}

Nearest Medical buildings

,,,}

Nearest Airports

,}

Nearest Leisure Facilities

,,,,}

Nearest Tourist attractions

,,}

Nearest Train stations

,,,,}

Nearest Bus stations and stops

,,,,}

Nearest Hotels

,,}

Tags

Local Market Stats

AirBnB Data

Similar Properties

Meta

High Res Images

Compatible Images

Low res Images

Thumbnails

Raw Images

High Res Floorplan Images

Compatible Floorplan Images

Low res Floorplan Images

FloorplanImages Thumbnail

Raw Floorplan Images