HA0 3PZ - 4 bedroom semidetached house for sale in Oldborough Road, W…

View on Property Piper

4 bedroom semi-detached house for sale in Oldborough Road, Wembley, HA0

Summary - 35, Oldborough Road HA0 3PZ

4 bed 2 bath Semi-Detached

**Standout Features:**
- Double storey side extension with private access
- Four spacious bedrooms and three bathrooms
- Family-friendly layout with lounge, dining room, and modern kitchen
- Off-street parking and a garden
- No upper chain, ready for immediate occupancy
- Located in a quiet residential street within Sudbury Court Estate

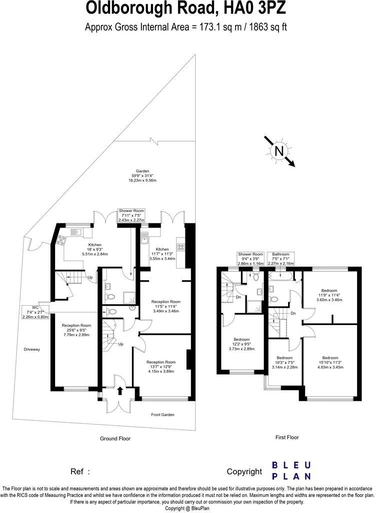
Located on the desirable Sudbury Court Estate, this impressive semi-detached home offers an abundance of space and flexible living options, making it perfect for families or those seeking rental potential. Boasting four well-proportioned bedrooms, three bathrooms/shower rooms, and an expansive kitchen that flows into dining and lounge areas, this property has been thoughtfully enhanced by a generous double-storey extension.

Enjoy the convenience of off-street parking, and the tranquil garden offers a private outdoor retreat. The residence is positioned within walking distance to highly-rated schools such as East Lane Primary and Wembley High Technology College, ensuring quality education is just a stone's throw away. For commuters, nearby North Wembley and South Kenton stations provide easy access into Central London via the Bakerloo Line.

While the property is in good condition, potential buyers should be aware of its age, needing consideration for updates in areas like insulation. However, the charm of the Tudor Revival design and thoughtful renovations create a welcoming atmosphere. With no upper chain, this opportunity won’t last long—come envision your future in this delightful family home!

Property Details

Brochure Descriptions

Image Descriptions

Floorplan Description

Rooms

Textual Property Features

Detected Visual Features

EPC Details

Nearby Schools

Nearest Bars And Restaurants

,,,,}

Nearest General Shops

,,}

Nearest Grocery shops

,,}

Nearest Supermarkets

,,}

Nearest Religious buildings

,,}

Nearest Medical buildings

,,,}

Nearest Airports

,}

Nearest Leisure Facilities

,,,,}

Nearest Tourist attractions

,,}

Nearest Train stations

,,,,}

Nearest Bus stations and stops

,,,,}

Nearest Hotels

,,}

Tags

Local Market Stats

AirBnB Data

Similar Properties

Meta

High Res Images

Compatible Images

Low res Images

Thumbnails

Raw Images

High Res Floorplan Images

Compatible Floorplan Images

Low res Floorplan Images

FloorplanImages Thumbnail

Raw Floorplan Images