Quiet leafy street near Oakwood Station and top schools — large garden and gated parking.
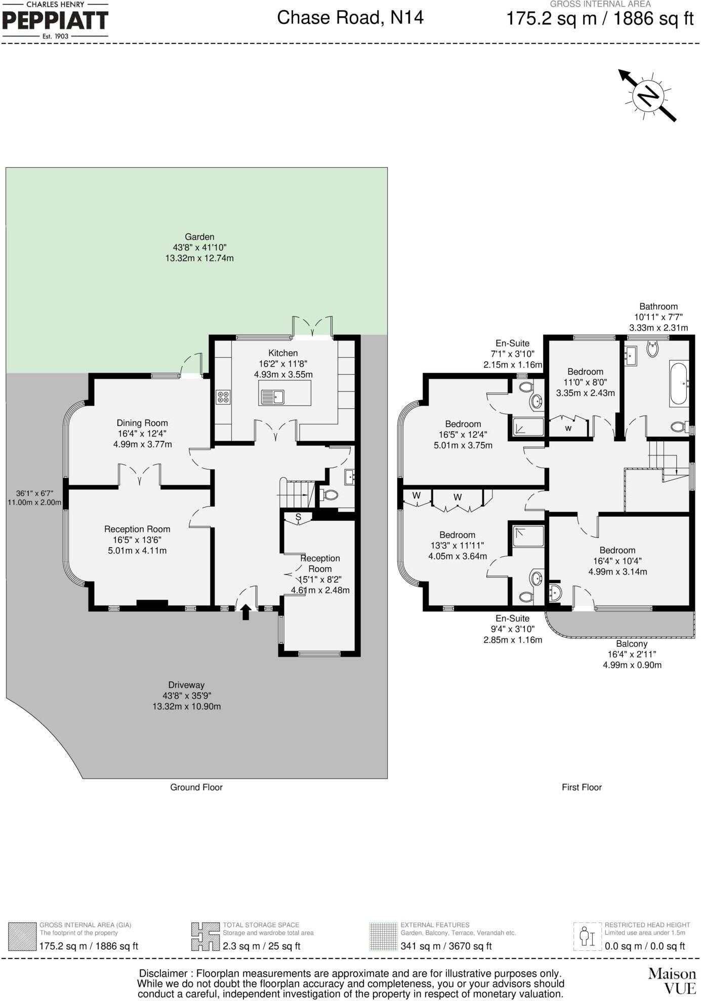
Four bedrooms and three bathrooms plus two en-suites
Set on a large plot in Southgate, this four-bedroom detached home offers practical family living with scope to personalise. The house provides three reception rooms, a modern kitchen, two en-suites plus a family bathroom, and balcony access — useful for morning light and neighbour views. A gated driveway and off-street parking add privacy and convenience for multiple cars.
The generous rear garden offers outdoor entertaining space and room for a future extension subject to planning permission. The property benefits from mains gas heating with boiler and radiators, double glazing already installed, fast broadband and excellent mobile signal — all useful for modern family life and home working.
Buyers should note the property’s construction era (late 1960s–1970s) and assumed solid-brick walls with no added insulation; further thermal upgrades could be needed to improve efficiency. The double glazing predates 2002 and may not match current standards. Council tax is described as quite expensive. Services, fixtures and fittings have not been tested and should be independently checked by interested parties.
This home suits families seeking space, school catchment access and transport links (short walk to Oakwood Piccadilly Line). There is clear potential for upgrading and extending to increase living space or future value, but budget for insulation, possible window improvements and other modernisation works.
4 bedroom detached house for sale in Chase Road, LONDON, London, N14 — £1,300,000 • 4 bed • 3 bath • 1700 ft²
4 bedroom detached house for sale in Chase Road, London, N14 — £1,300,000 • 4 bed • 3 bath • 1871 ft²
4 bedroom semi-detached house for sale in Lakenheath, Southgate, N14 — £875,000 • 4 bed • 3 bath • 1553 ft²
5 bedroom house for sale in Nursery Road, FIVE BEDROOMS, N14 — £700,000 • 5 bed • 2 bath • 1830 ft²
4 bedroom detached house for sale in Chase Road, Southgate, N14 — £1,175,000 • 4 bed • 2 bath • 2334 ft²
4 bedroom semi-detached house for sale in The Woodlands, Southgate, London, N14 — £800,000 • 4 bed • 3 bath • 1777 ft²














































































































































































































































































































































































