Large garden and gated driveway in a well-connected North London suburb.
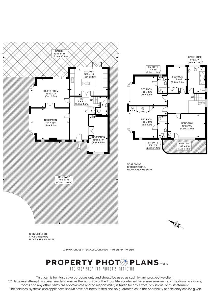
Detached four-bedroom home with three reception rooms and large garden
Large gated driveway for 5–6 cars with secure side access
New modern kitchen; two ensuites plus family bathroom and ground-floor WC
One bedroom benefits from a private upper-floor balcony
Potential to extend into garden, subject to planning permission
Tenure currently unknown — important legal/finance check for buyers
Solid brick walls assumed uninsulated; may need thermal improvements
Double glazing installed before 2002; consider window upgrade for efficiency
A substantial four-bedroom detached house on Chase Road offers flexible family living across approximately 1,871 sq ft. The property delivers three reception rooms, a new modern kitchen, two ensuites and a large private garden — useful for children and entertaining. The gated driveway fits 5–6 cars and provides secure off-street parking and side access.
One bedroom opens onto an extensive private balcony, adding outdoor space on the upper floor. The generous landing and spacious hallway create a feeling of scale throughout the home. There is potential to extend into the garden, subject to planning permission, for buyers seeking extra living space.
Practical considerations are clear: tenure is currently unknown and the solid brick walls are assumed to have no insulation. Double glazing was fitted before 2002, and the heating runs from a mains-gas boiler and radiators. These points are important for buyers thinking about running costs or planning future improvements.
Set in an affluent N14 neighbourhood with excellent local and independent schools nearby, the house sits within easy reach of Oakwood and Southgate stations (Piccadilly line), shops and amenities. This is a roomy, well-positioned family home with scope to modernise and personalise.
4 bedroom detached house for sale in Chase Road, Southgate, N14 — £1,250,000 • 4 bed • 3 bath • 1798 ft²
4 bedroom detached house for sale in Chase Road, LONDON, London, N14 — £1,250,000 • 4 bed • 3 bath • 1700 ft²
4 bedroom detached house for sale in Chase Side, London, N14 — £1,175,000 • 4 bed • 1 bath • 1990 ft²
4 bedroom terraced house for sale in Chase Way, N14 5DH, N14 — £925,000 • 4 bed • 3 bath
4 bedroom semi-detached house for sale in Chase Way, London, N14 — £975,000 • 4 bed • 3 bath • 1735 ft²
6 bedroom detached house for sale in Chase Side, London, N14 — £1,695,000 • 6 bed • 5 bath • 3255 ft²


































































































