Four bedrooms, large garden and pool near Southgate and Oakwood stations.
Large internal space over 2,300 sq ft
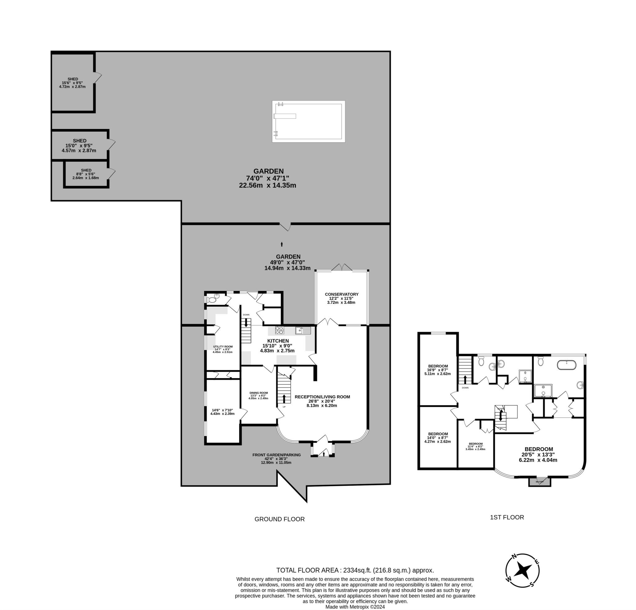
An unusually large family house offering more than 2,300 sq ft of flexible living close to Southgate and Oakwood stations. The ground floor has multiple reception rooms, a conservatory and a kitchen that open to a long private garden with an in-ground swimming pool — ideal for summer entertaining and family life. Upstairs there are four well-proportioned bedrooms, including a principal suite with walk-in wardrobe, en-suite and balcony.
Practical benefits include gated off-street parking, good broadband and strong mobile signal, mains gas central heating and double glazing fitted after 2002. The property sits near highly regarded primary and secondary schools, parks and local shops, making it convenient for school runs and everyday errands.
Buyers should note some material points: official records list the property as freehold but built-form details reference semi-detached construction, so buyers should confirm boundary and title particulars. The cavity walls were built without insulation (assumed) and the house dates from c.1967–75, so there is scope and likely need for energy-efficiency upgrades and cosmetic modernisation in parts. Council tax is described as quite expensive.
This house suits a family seeking space and outdoor amenity in a well-connected North London location, or an investor interested in adding value through targeted improvements. It combines immediate liveability with clear potential for renovation and efficiency gains.
8 bedroom detached house for sale in Wayside Close, London, N14 — £1,900,000 • 8 bed • 6 bath • 4732 ft²
4 bedroom detached house for sale in Eversley Mount, London, N21 — £1,800,000 • 4 bed • 2 bath • 3271 ft²
4 bedroom detached house for sale in Chase Road, LONDON, London, N14 — £1,300,000 • 4 bed • 3 bath • 1700 ft²
4 bedroom semi-detached house for sale in Cissbury Ring North, Woodside Park, N12 — £1,695,000 • 4 bed • 2 bath • 2365 ft²
4 bedroom semi-detached house for sale in Lakenheath, Southgate, N14 — £875,000 • 4 bed • 3 bath • 1553 ft²
6 bedroom detached house for sale in Cannon Hill, London, N14 — £3,800,000 • 6 bed • 4 bath • 6000 ft²






















































































































