Permissioned five‑unit scheme close to Bourne amenities and good schools, ready for implementation.
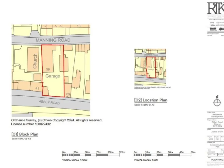
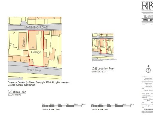
- Planning permission granted 25 June 2025 (ref S24/1704) for five dwellings
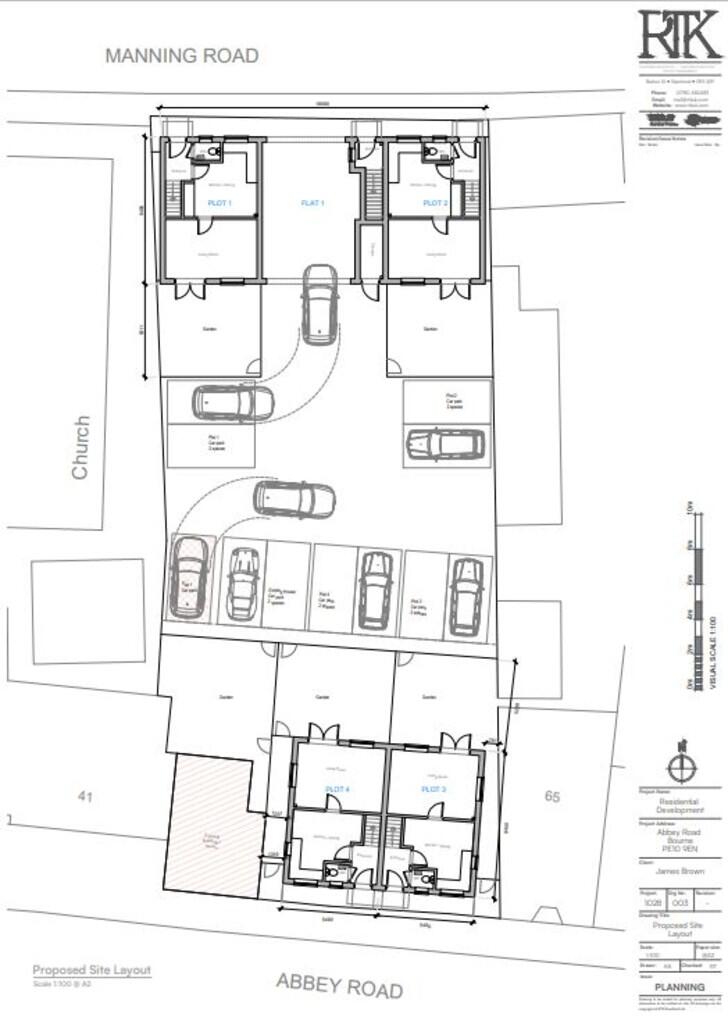
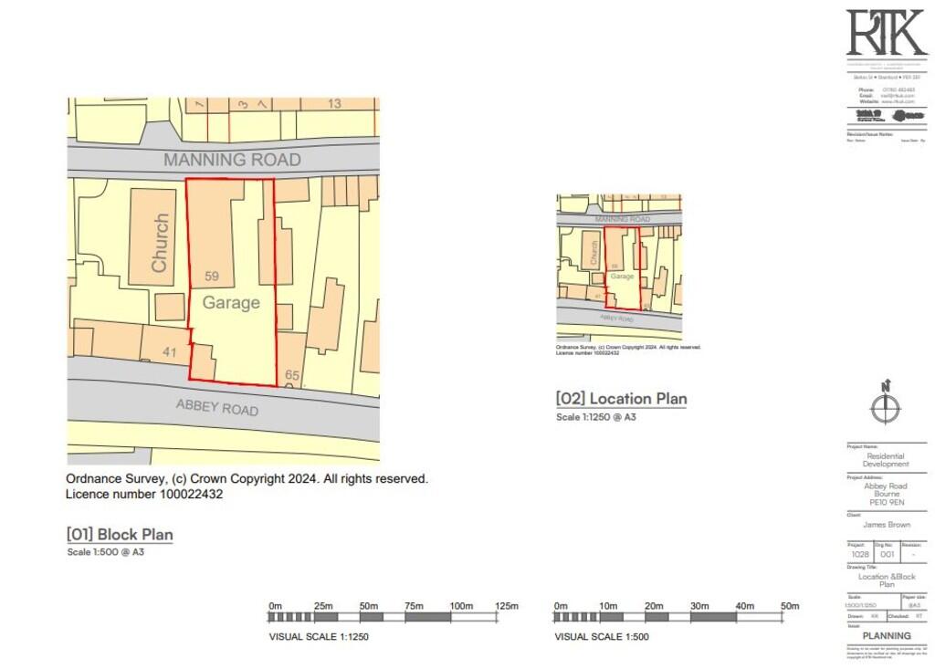
- Freehold site c.718 sq m (c.7,728 sq ft) in town-centre location
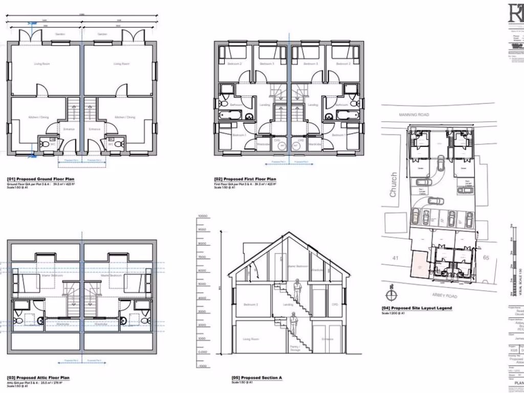
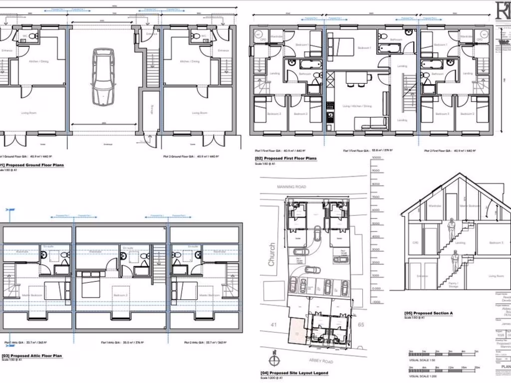
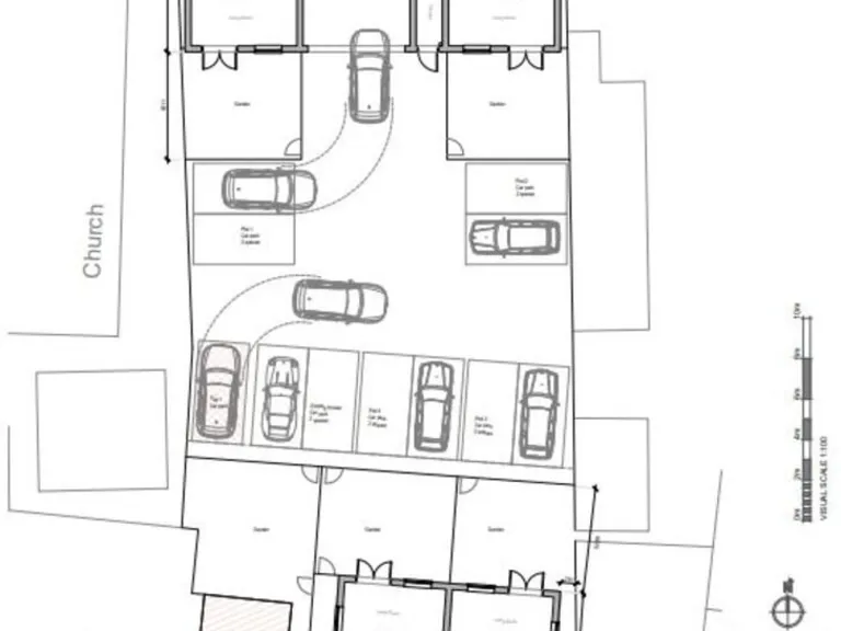
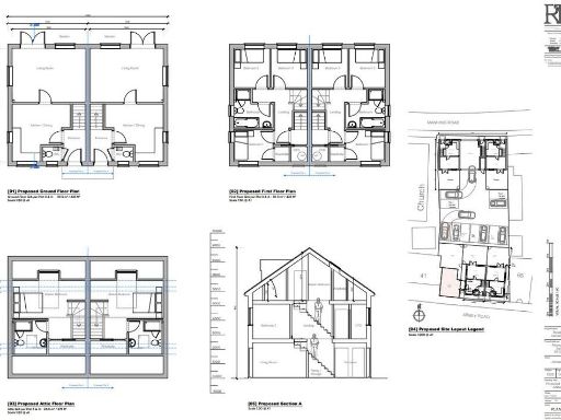
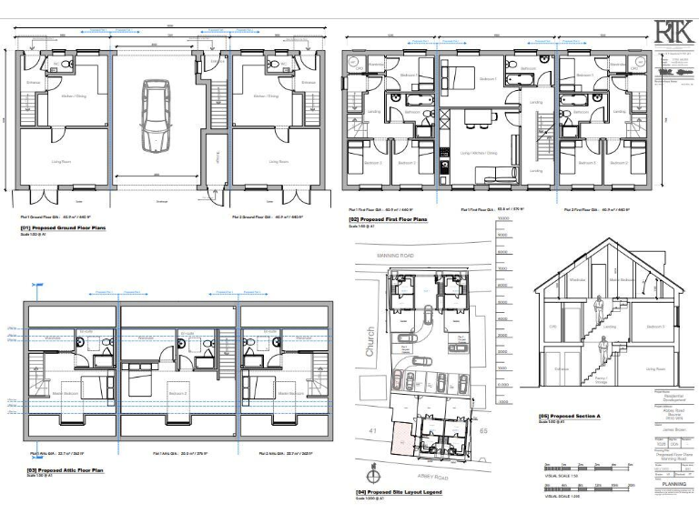
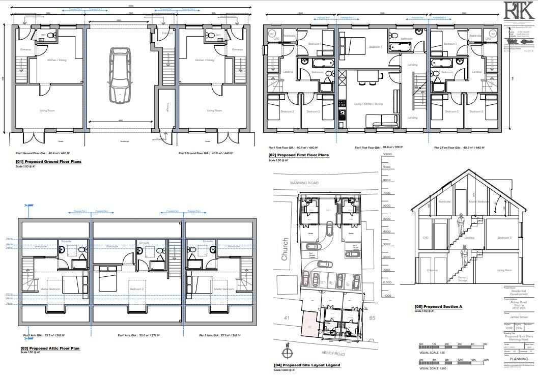
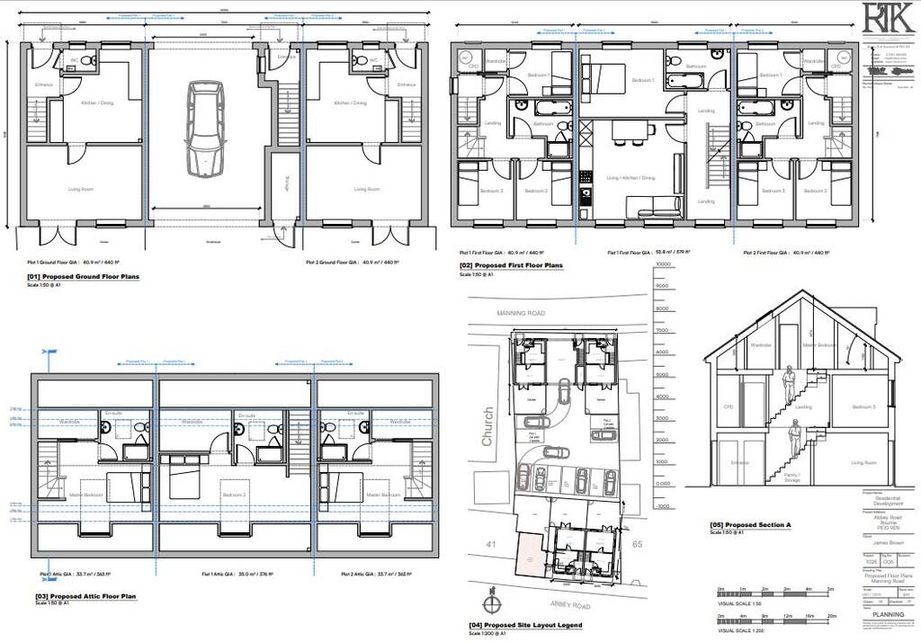
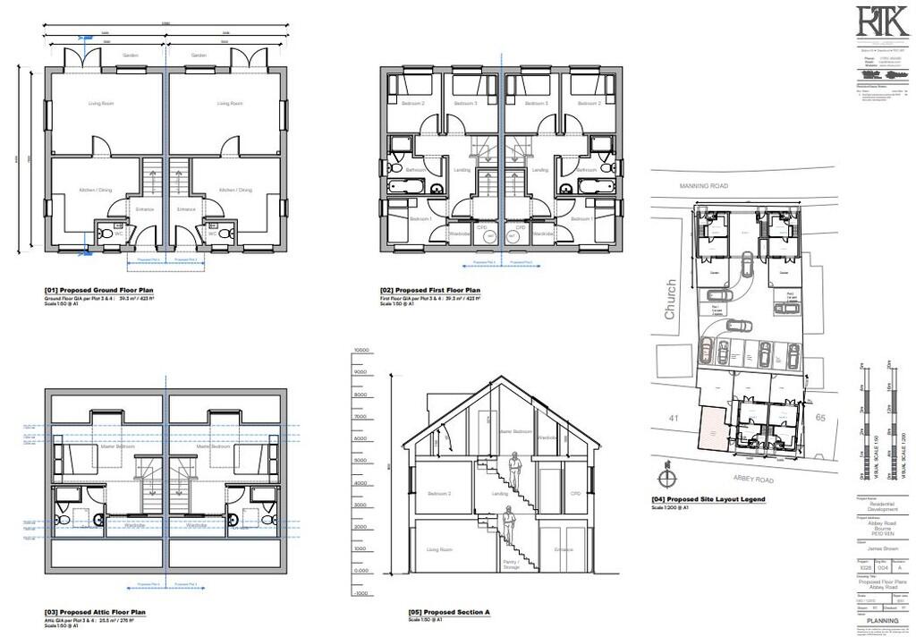
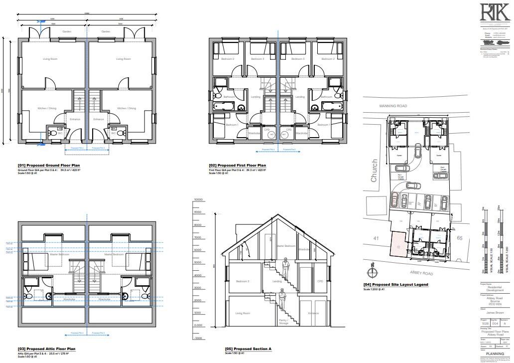
- Scheme: one 2-bed flat and four 4-bed houses, three-storey modern designs
- Development must commence within three years of decision date
- No known services connected; buyer to investigate and budget connections
- Buyer must create/surface access to Manning Road and mark parking
- Seller retains 59 Abbey Road, two parking spaces and service conduit rights
- High local crime statistic; factor security and insurance costs
A rare town-centre building plot with planning permission in place for five new homes, including one two-bedroom flat and four four-bedroom houses. The freehold site measures approximately 718 sq m (c.7,728 sq ft) and benefits from an off-street parking layout and convenient walking distance to shops, schools and public transport in Bourne.
Planning permission (South Kesteven DC ref S24/1704) was granted on 25 June 2025 and must be implemented within three years. The layout is designed to make efficient use of the land with contemporary, three-storey house types shown on the proposals — an option that will appeal to small-house developers or investors targeting family buyers in a market with limited land supply.
Practical matters to note: no services are known to be connected so utilities will need investigation and connection costs should be budgeted. The seller will retain and refurbish the adjacent 59 Abbey Road property and reserves rights over two parking spaces and service conduits, which buyers must accept. The purchaser is also required to construct and surface the access route to Manning Road and mark out parking bays prior to first occupation.
This is a straightforward permissioned opportunity for a developer or investor able to manage site clearance and utility connections. The central location, nearby good and outstanding schools, and fast broadband/mobile connectivity strengthen lettability or resale prospects, while the local high crime statistic and the need to complete access surfacing are material considerations for cost planning.
Industrial development for sale in Pinchbeck Road, PE11 1QF, PE11 — £275,000 • 1 bed • 1 bath
Land for sale in Station Road, Twenty, Bourne, Lincolnshire, PE10 — £300,000 • 1 bed • 1 bath • 27878 ft²
Land for sale in Development Land, The Slipe, Bourne, PE10 0DE, PE10 — POA • 1 bed • 1 bath
Land for sale in Fengate Road, West Pinchbeck, Spalding, Lincolnshire, PE11 — £350,000 • 1 bed • 1 bath • 9856 ft²
Residential development for sale in Residential Development Land, Millthorpe, Nr Pointon, NG34 — £325,000 • 1 bed • 1 bath • 2012 ft²
Land for sale in 4 x New Building Plot Development Site, Fengate Road, West Pinchbeck, Spalding, Lincolnshire, PE11 — £350,000 • 1 bed • 1 bath • 9856 ft²


































































