Bright duplex-style living near Bath’s shops, stations and cultural attractions.
Grade II listed Georgian apartment with high ceilings and sash windows
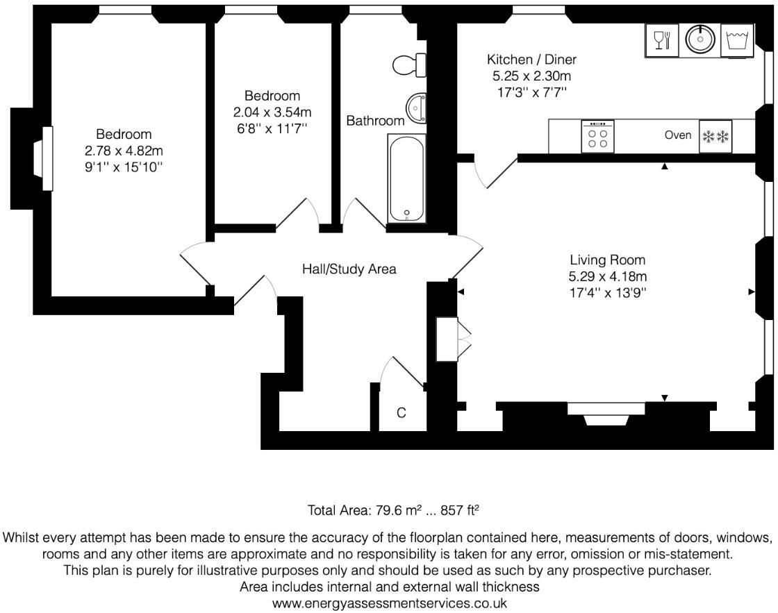
Set in an elegant Grade II listed Georgian terrace, this two-bedroom apartment brings high ceilings, tall sash windows and period character into a bright city-centre home. The large living room with built-in shelving and dual-aspect views feels more spacious than many central flats, while the kitchen/diner and generous bathroom provide practical everyday living. With no onward chain and a long lease (c.215 years), the property is move-in ready for a professional couple or first-time buyers seeking central Bath life.
Buyers should be aware this is a listed building, which can restrict alterations and add cost or delay to repairs. The stone walls are likely uninsulated and the EPC rating is D, so there may be scope and expense to improve thermal performance and running costs. On-street permit parking only, and the location records very high local crime levels, which may concern some purchasers.
Practical details support straightforward ownership: leasehold tenure with a modest management charge (£830.34 for 2025/26), mains gas central heating and excellent mobile and fast broadband. The flat’s size and layout (approximately 857 sqft, two doubles) also suit buy-to-let or sharers who value proximity to Bath’s shops, transport links and cultural amenities. Consider a survey to clarify listed-property responsibilities and any retrofit options before committing.
2 bedroom apartment for sale in Duke Street, Bath, Somerset, BA2 — £315,000 • 2 bed • 1 bath • 687 ft²
2 bedroom apartment for sale in Henrietta Street, Bath, BA2 — £700,000 • 2 bed • 2 bath • 1180 ft²
2 bedroom maisonette for sale in Walcot Street, Bath, Somerset, BA1 — £550,000 • 2 bed • 1 bath • 750 ft²
2 bedroom apartment for sale in Lower Borough Walls, Bath, BA1 — £279,000 • 2 bed • 1 bath • 656 ft²
1 bedroom apartment for sale in Henrietta Street, Bath, BA2 — £275,000 • 1 bed • 1 bath • 567 ft²
1 bedroom apartment for sale in Flat 2, 1 Fountain Buildings, Bath, Somerset, BA1 — £220,000 • 1 bed • 1 bath • 461 ft²






























































































