Spacious period flat moments from Bath’s shops, station and parkland.
Grade I Listed Georgian townhouse apartment with strong period character
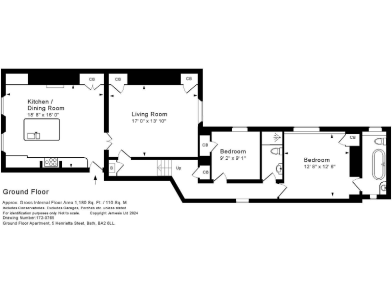
Large 1,180 sq ft ground-floor layout with high ceilings and sash windows
Two double bedrooms, two bathrooms, one en-suite
Chain free with a very long lease: 952 years remaining
Service charge approx. £2,400/year; ground rent £25/year
Electric central heating; walls likely uninsulated — possible higher running costs
Grade I listing restricts alterations and may complicate repairs
Medium flood risk and local crime rate recorded as very high
Set within an impressive Grade I Listed Georgian townhouse, this ground-floor apartment offers unusually large, elegant living space in central Bath. High ceilings, sash windows and period fireplaces give genuine character, while the 1,180 sq ft layout includes a generous kitchen/dining room plus a 17 ft sitting room. The home is chain free and comes with two double bedrooms and two bathrooms, one en-suite.
Practical details suit a variety of buyers: a very long lease (952 years), low annual ground rent (£25) and a service charge of about £2,400 per year (circa £200 pcm). The property is heated by electric boiler and radiators and is well suited for buyers who value period features and central convenience over the latest energy systems.
Buyers should note this is a Grade I Listed building, which will restrict alterations and may complicate renovations or repairs. The building’s age means external walls are likely uninsulated and heating is electric, so running costs and retrofit limitations are realistic considerations. The site carries a medium flood risk and local crime statistics are very high, so location suitability should be assessed carefully.
Overall, this is a spacious, characterful city-centre flat ideal for those seeking a distinctive Georgian home close to Bath’s shops, transport and green spaces. It will particularly appeal to buyers who prioritise period authenticity, generous room sizes and a long-lease, central pied-à-terre rather than extensive modernisation potential.
2 bedroom apartment for sale in Duke Street, Bath, Somerset, BA2 — £315,000 • 2 bed • 1 bath • 687 ft²
1 bedroom apartment for sale in Henrietta Street, Bath, BA2 — £275,000 • 1 bed • 1 bath • 567 ft²
1 bedroom apartment for sale in Flat 2, 1 Fountain Buildings, Bath, Somerset, BA1 — £220,000 • 1 bed • 1 bath • 461 ft²
2 bedroom maisonette for sale in Walcot Street, Bath, Somerset, BA1 — £550,000 • 2 bed • 1 bath • 750 ft²
2 bedroom flat for sale in Henrietta Street, Bath, BA2 — £475,000 • 2 bed • 1 bath • 940 ft²
1 bedroom flat for sale in Henrietta Street, BATH, BA2 — £255,000 • 1 bed • 1 bath • 426 ft²


















































