Ideal first home minutes from Peckham Rye Park and transport.
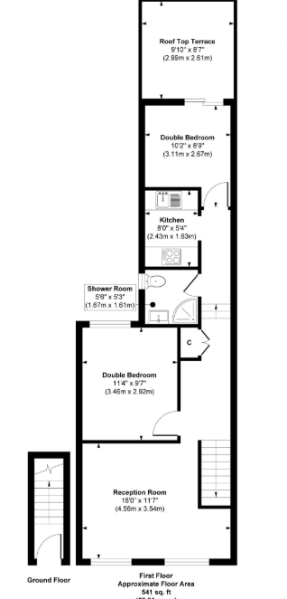
Private south-facing roof terrace with decking
A newly renovated two-bedroom maisonette with a private south-facing roof terrace, offered chain free and ready for vacant possession. The flat sits on the first floor of a mid-terrace building constructed c.1900–1929 and benefits from a fitted kitchen, a living room and a shower room. Its compact 571 sq ft layout suits buyers seeking a manageable city home with outdoor space.
Located moments from Peckham Rye Park and within walking distance of direct transport links to Central London, this property is well placed for commuting, local shops, cafes and good schools nearby. Share of freehold tenure simplifies ownership and the property’s low-crime setting and fast broadband are practical pluses for working professionals.
Be aware this is a small property with one bathroom and limited internal space, most suitable for first-time buyers or investors targeting city rentals. The building has solid brick walls with no known insulation upgrade; buyers concerned about thermal performance should consider potential improvement costs. Overall, the flat offers immediate move-in condition and convenient access to green space and transport, balanced against modest size and some retrofit considerations.
1 bedroom apartment for sale in Tower Mill Road, London, SE15 — £375,000 • 1 bed • 1 bath • 554 ft²
2 bedroom apartment for sale in Cheltenham Road, Nunhead, London, SE15 — £450,000 • 2 bed • 1 bath • 541 ft²
2 bedroom maisonette for sale in Manaton Close, London, SE15 — £475,000 • 2 bed • 1 bath • 713 ft²
2 bedroom flat for sale in Denman Road, Peckham, SE15 — £775,000 • 2 bed • 2 bath • 1009 ft²
2 bedroom apartment for sale in Bellenden Road, Peckham Rye, London, SE15 — £700,000 • 2 bed • 2 bath • 874 ft²
2 bedroom maisonette for sale in Wivenhoe Close, Peckham, London, SE15 — £400,000 • 2 bed • 1 bath • 737 ft²


























