**Standout Features:**
- Charming two-bedroom maisonette
- Chain-free property
- Private south-facing balcony
- Excellent transport links (close to Nunhead Station)
- Spacious, light-filled rooms with modern neutral decor
- Proximity to Peckham Rye Park and local amenities
**Concerns:**
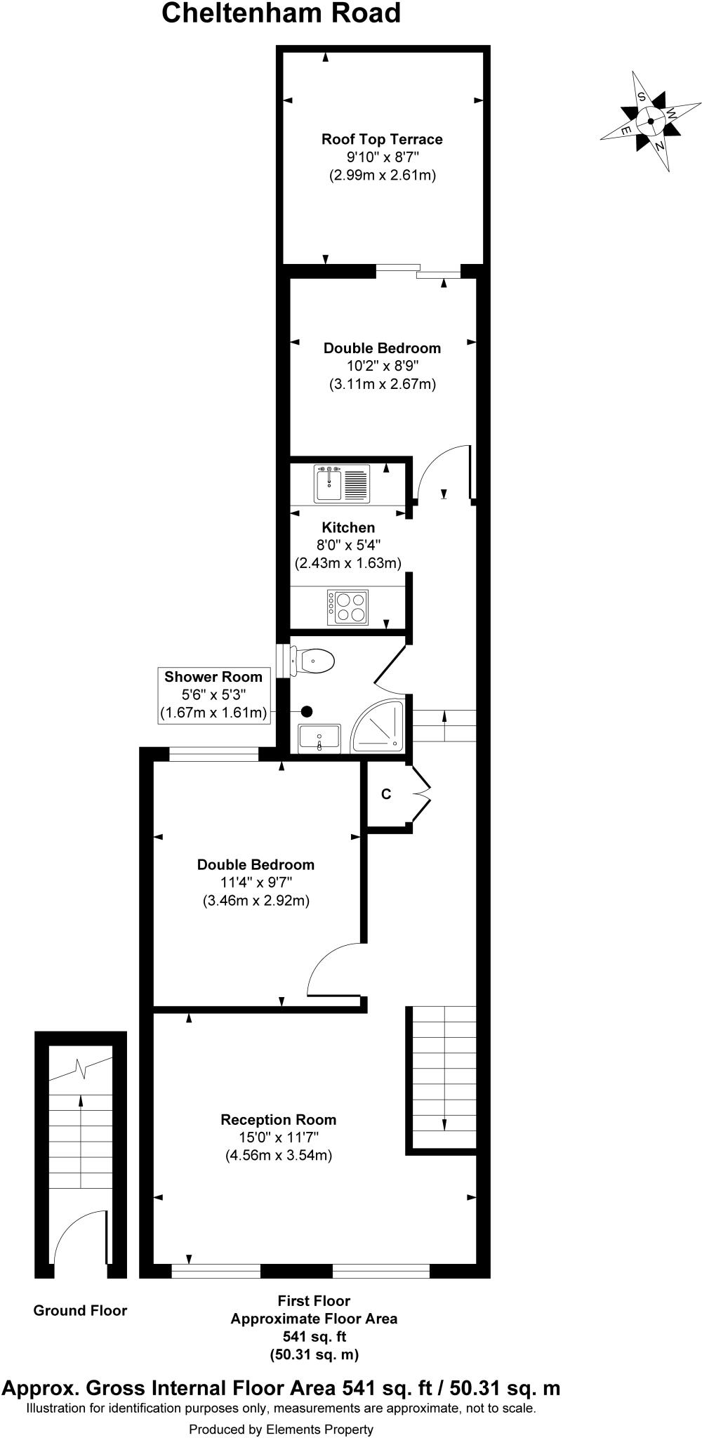
- Small overall size (541 sq ft)
- Solid brick walls with assumed no insulation
- Double glazing of unknown installation date
Discover this charming two-bedroom maisonette nestled near the lush greenery of Peckham Rye Park, perfect for those seeking a cozy urban retreat. The property boasts a welcoming reception area enhanced by natural light and exposed beams, leading into two spacious double bedrooms—ideal for comfort and storage. Enjoy the luxury of a private south-facing balcony, perfect for entertaining or relaxation.
Conveniently located just a short walk from Nunhead Station, this home offers seamless access to Central London, making it ideal for professionals or first-time buyers. The surrounding area features a variety of cafes, pubs, and independent shops, providing a vibrant community feel. Educational excellence is just around the corner, with multiple highly-rated primary and secondary schools nearby.
While the maisonette's compact size and brick construction may pose renovation potential, its current charm and unique attributes make it a fantastic investment opportunity in a desirable, low-crime neighborhood. Don't miss out—early viewings are highly recommended to appreciate the comforts and conveniences this property has to offer!
2 bedroom maisonette for sale in Cheltenham Road, London, SE15 — £450,000 • 2 bed • 1 bath • 571 ft²
2 bedroom maisonette for sale in Tappesfield Road, London, SE15 — £400,000 • 2 bed • 1 bath • 741 ft²
2 bedroom maisonette for sale in Cator Street, Peckham, London, SE15 — £350,000 • 2 bed • 1 bath • 682 ft²
2 bedroom apartment for sale in St. Mary's Road, London, SE15 — £400,000 • 2 bed • 1 bath • 639 ft²
2 bedroom apartment for sale in Nunhead Green, Peckham, London, SE15 — £315,000 • 2 bed • 1 bath • 448 ft²
2 bedroom flat for sale in Rye Hill Park, London, SE15 — £300,000 • 2 bed • 1 bath • 660 ft²


















































