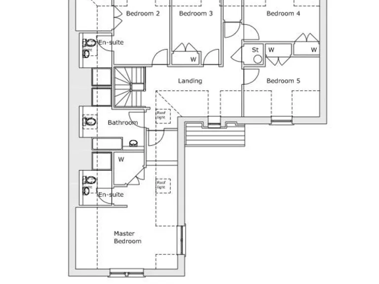
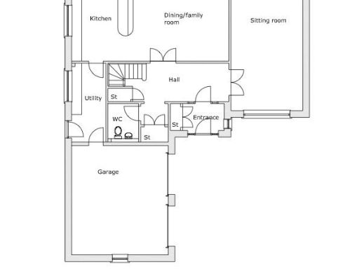
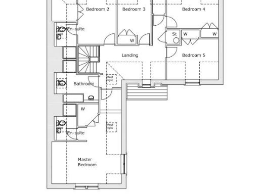
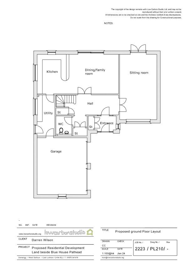
**Standout Features:**
- Rare opportunity to develop 2 bespoke 5-bedroom detached family homes (planning ref 24/00121/PPP).
- Expansive site area of 2,250 m² in a peaceful rural setting.
- Each proposed home includes generous living/dining spaces, utility rooms, and double garages.
- Excellent mobile signal and potential for spacious family living in a serene location.
**Concerns:**
- Broadband speeds currently listed as slow, which may affect remote work or entertainment.
- Area classification indicates very deprived conditions, which could influence local amenities and lifestyle.
This incredible development opportunity allows you to design two bespoke family homes tailored to modern living. Nestled in a tranquil countryside setting, just half a mile from Pathead, each 5-bedroom home will feature open-plan living areas and is positioned amidst serene agriculture, ensuring privacy and a peaceful lifestyle. With ample land, there is flexibility for future enhancements or landscaping to create your ideal family haven.
While the area boasts excellent mobile connectivity, the slower broadband speeds may pose challenges for potential buyers focused on digital conveniences. It’s crucial to consider that the local area has been classified as very deprived, impacting available amenities. Priced at £360,000, this unique offering is not expected to linger on the market—seize the chance to create your dream family home in this exclusive location while you can!
Residential development for sale in Grey Barn, Midlothian, Pathhead, EH37 — £360,000 • 1 bed • 1 bath
Plot for sale in Plot - Mill Wynd, Tynebank Road, Haddington, East Lothian, EH41 4DW, EH41 — £175,000 • 4 bed • 4 bath
Land for sale in Gosford Road, Longniddry, East Lothian, EH32 — £375,000 • 4 bed • 4 bath • 2982 ft²
Plot for sale in Fala Village, Pathhead, Midlothian, EH37 — £125,000 • 1 bed • 1 bath
Land for sale in 3, Harelaw, Development with Full Planning, Danderhall, Edinburgh, EH221SB, EH22 — £279,000 • 1 bed • 1 bath
Land for sale in Plots at 5 - 9 Elm Row, Lasswade, Midlothian, EH18 — £195,000 • 1 bed • 1 bath






























































