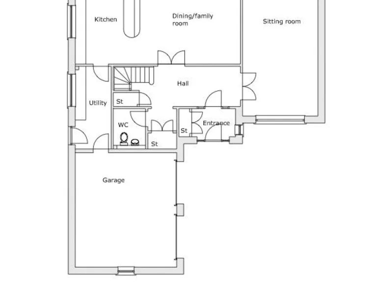
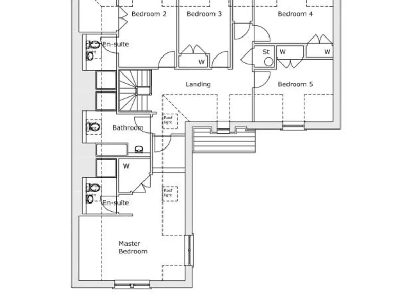
**Standout Features:**
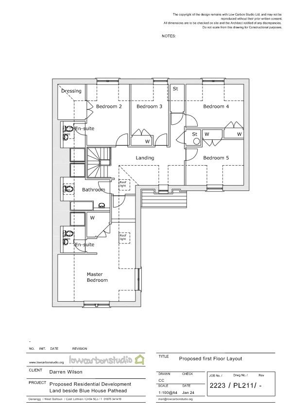
- Rare planning permission to develop **2 bespoke 5-bedroom detached family homes**
- **Substantial plot size** of 2,250 m², providing ample space for development and family living
- **Modern new build design** potential with high-quality finishing
- **Location**: Peaceful countryside setting, approximately half a mile from Pathead
- **Excellent mobile signal** and **double garage** included in plan
**Notable Concerns:**
- **Broadband speeds** currently slow, may affect remote work or streaming
- **Current area deprivation** noted, which may impact nearby amenities and community resources
This is a unique opportunity for developers or investors looking to capitalize on the rural charm of the EH37 area. With approved plans for two spacious 5-bedroom homes, each featuring comfortable living and dining spaces, utility rooms, and double garages, you can design luxurious residences tailored for families seeking tranquility. The large plot size offers flexibility for further enhancements or landscaping that suits your vision. While internet connectivity may need attention, the excellent mobile signal and peacefulness of the countryside make this an attractive proposition. Don’t miss out on this exclusive chance to shape family homes in a prosperous countryside setting! Full planning details are available—act now to seize this incredible possibility before it’s gone!
5 bedroom detached house for sale in Blue House, Midlothian, Pathhead, EH37 — £360,000 • 5 bed • 1 bath
Plot for sale in Plot - Mill Wynd, Tynebank Road, Haddington, East Lothian, EH41 4DW, EH41 — £175,000 • 4 bed • 4 bath
Land for sale in Gosford Road, Longniddry, East Lothian, EH32 — £375,000 • 4 bed • 4 bath • 2982 ft²
Plot for sale in Fala Village, Pathhead, Midlothian, EH37 — £125,000 • 1 bed • 1 bath
Land for sale in Plots at 5 - 9 Elm Row, Lasswade, Midlothian, EH18 — £195,000 • 1 bed • 1 bath
Plot for sale in Plot - Torcraik Court, North Middleton, Gorebridge, Midlothian, EH23 — £75,000 • 1 bed • 1 bath


















































