Rare 1.05-acre site with consent for five homes and stunning valley views.
Full planning permission for five dwellings (ref: 21/03827/FUL)
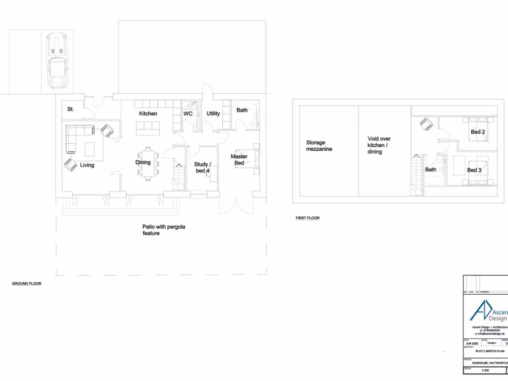
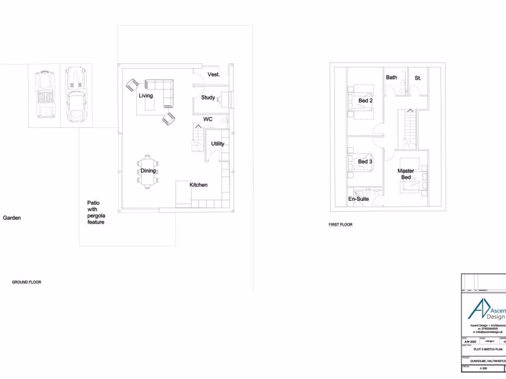
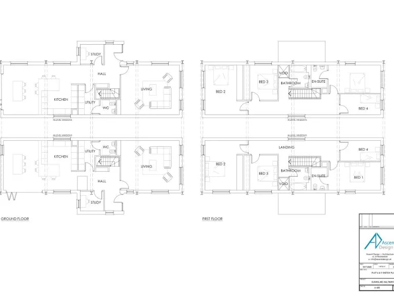
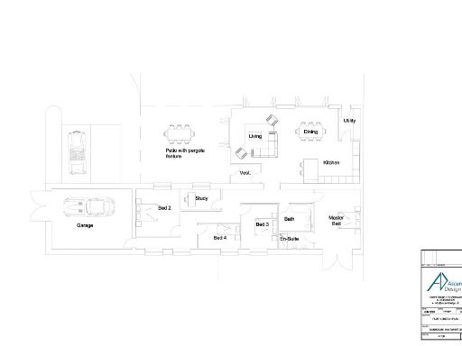
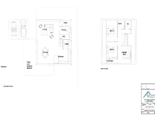
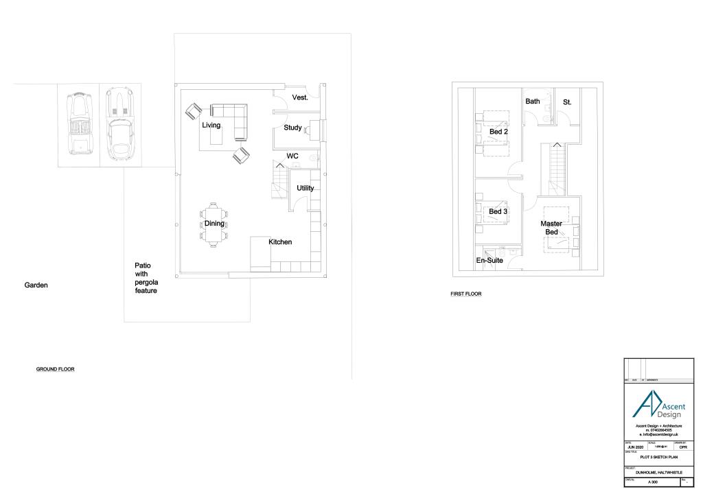
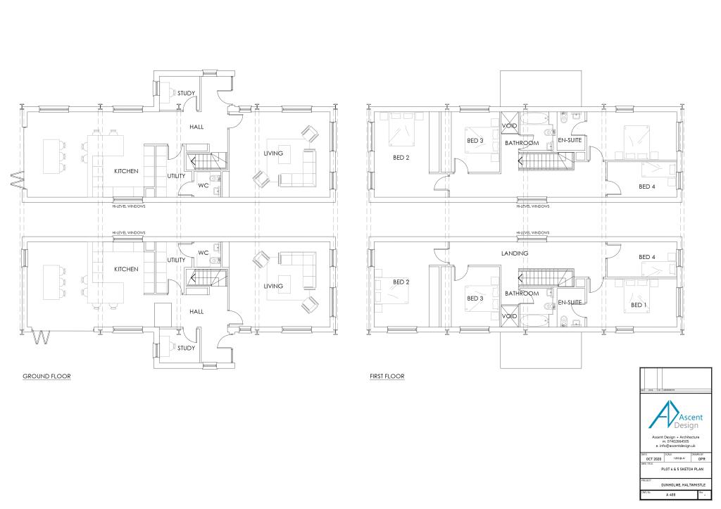
Set on an elevated 0.42 hectare (1.05 acre) site on the outskirts of Haltwhistle, this former farm complex benefits from full planning permission (ref: 21/03827/FUL) to convert existing agricultural buildings into five characterful homes. The approved scheme proposes one 4-bed detached, two 3-bed detached and two 4-bed semi-detached houses, each with parking/garaging and generous garden space, all enjoying long, uninterrupted valley views.
The site is largely flat and already has mains water and electricity connected, with existing drainage described as excellent for current use. Vehicular access is direct from a public highway and a garage is noted for parking; the location is 0.5 miles from Haltwhistle town centre with good bus and rail links to Newcastle and Carlisle.
Material points to note: the vendor intends to retain a residential right of access to a portion of land (hatched blue on the plan) with rights to services, which could affect layout and future access arrangements. Broadband speeds are slow and the wider area is classified as deprived, which may affect resale pricing or rental demand. Any variations from the granted consent would require new permissions.
This is a clear development opportunity for an investor or small developer seeking a near-term conversion project with planning in place, strong views and substantial plot size. Buyers should commission their own due diligence on service capacities, planning conditions and the retained access area before committing.
 Property for sale in Comb Hill, Haltwhistle, Northumberland, NE49 — £395,000 • 1 bed • 1 bath
 Property for sale in Comb Hill, Haltwhistle, Northumberland, NE49 — £395,000 • 1 bed • 1 bath Land for sale in Coachworks, Haltwhistle, Northumberland, NE49 9BH, NE49 — £295,000 • 1 bed • 1 bath
 Land for sale in Coachworks, Haltwhistle, Northumberland, NE49 9BH, NE49 — £295,000 • 1 bed • 1 bath Equestrian facility for sale in Haydon Bridge, Hexham, NE47 — £190,000 • 1 bed • 1 bath • 1948 ft²
 Equestrian facility for sale in Haydon Bridge, Hexham, NE47 — £190,000 • 1 bed • 1 bath • 1948 ft² 4 bedroom detached house for sale in Whitechapel Farm, Haydon Bridge, Hexham, Northumberland, NE47 — £725,000 • 4 bed • 2 bath • 2097 ft²
 4 bedroom detached house for sale in Whitechapel Farm, Haydon Bridge, Hexham, Northumberland, NE47 — £725,000 • 4 bed • 2 bath • 2097 ft² 4 bedroom property for sale in Tow House, Hexham, Northumberland, NE47 — £185,000 • 4 bed • 1 bath
 4 bedroom property for sale in Tow House, Hexham, Northumberland, NE47 — £185,000 • 4 bed • 1 bath Farm for sale in Land At Wooley Burn, Allendale, Hexham, NE47 — £125,000 • 1 bed • 1 bath • 584 ft²
 Farm for sale in Land At Wooley Burn, Allendale, Hexham, NE47 — £125,000 • 1 bed • 1 bath • 584 ft²


















































































