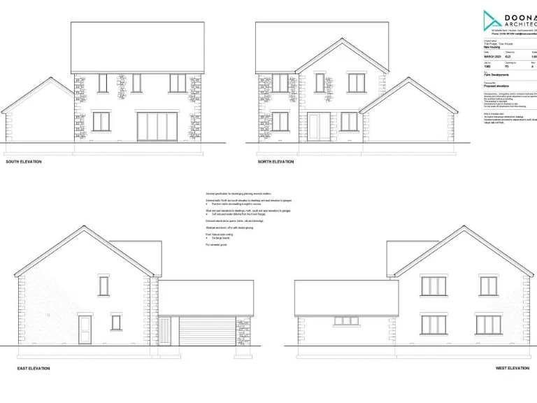
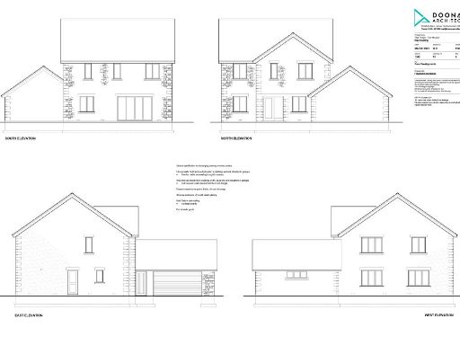
Large village plot with consent for two four-bedroom homes — ready for a developer..
- Site extends to circa 0.689 acres (0.278 hectares)
- Planning permission for two detached four-bedroom dwellings (ref 21/01074/REM)
- Garages, driveway parking and generous gardens included in approved scheme
- Services available nearby but final connections required
- Very low local crime; fast broadband; average mobile signal
- Rural village location with good A69 and rail access
- Requires full build-out; buyer responsible for construction costs and conditions
- Council tax unknown; approved layout lists one bathroom per dwelling
A rare development plot of circa 0.689 acres in the hamlet of Tow House, Hexham, with planning permission (ref 21/01074/REM) for two detached four-bedroom homes. The consented scheme includes garages, driveway parking and generous gardens, making this a straightforward route to delivering family homes in a sought-after rural edge location.
Services are available nearby and the site benefits from very low local crime, fast broadband and average mobile signal. The setting offers easy access to the A69, Bardon Mill railway station and local facilities in Haydon Bridge and Haltwhistle, plus countryside attractions including Hadrian’s Wall and Northumberland National Park.
Buyers should note this is a development opportunity rather than a ready-made income property: the site requires construction work to implement the approved houses and any purchaser must satisfy planning conditions and build costs. Council tax is not provided and the approved scheme includes just one bathroom per dwelling within the listed details, which may affect design choices or market positioning.
This plot suits an investor or small developer seeking a short planning-to-build project in a quiet village setting, or a buyer wanting to deliver bespoke family homes in a popular rural area. The combination of planning in place, a very large plot and good local connectivity presents clear potential, but budgeting for construction, services connections and compliance with conditions is essential.
Property for sale in Comb Hill, Haltwhistle, Northumberland, NE49 — £395,000 • 1 bed • 1 bath
Property for sale in Comb Hill, Haltwhistle, Northumberland, NE49 — £395,000 • 1 bed • 1 bath
Land for sale in Catton, Hexham, Northumberland, NE47 — £130,000 • 1 bed • 1 bath
Land for sale in Belmont, Haydon Bridge, NE47 — £395,000 • 1 bed • 1 bath
Land for sale in West Peterel Field Barn, Dipton Mill Road, Hexham, Northumberland, NE46 — £320,000 • 5 bed • 5 bath • 2895 ft²
Plot for sale in Thornleygate, Allendale, Northumberland, NE47 — £195,000 • 1 bed • 1 bath










































