Elevated 1.05 acre development site with planning for five character homes and valley views.
Full planning permission for five residential dwellings (ref: 21/03827/FUL)
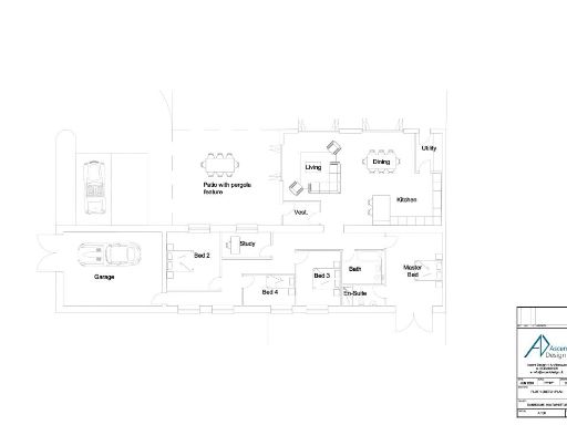
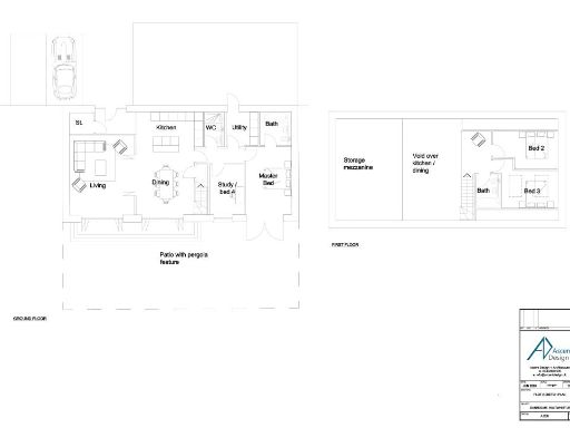
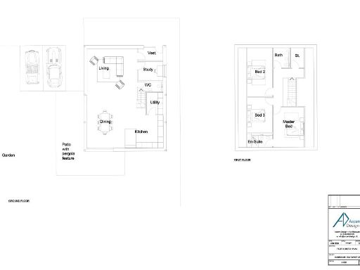
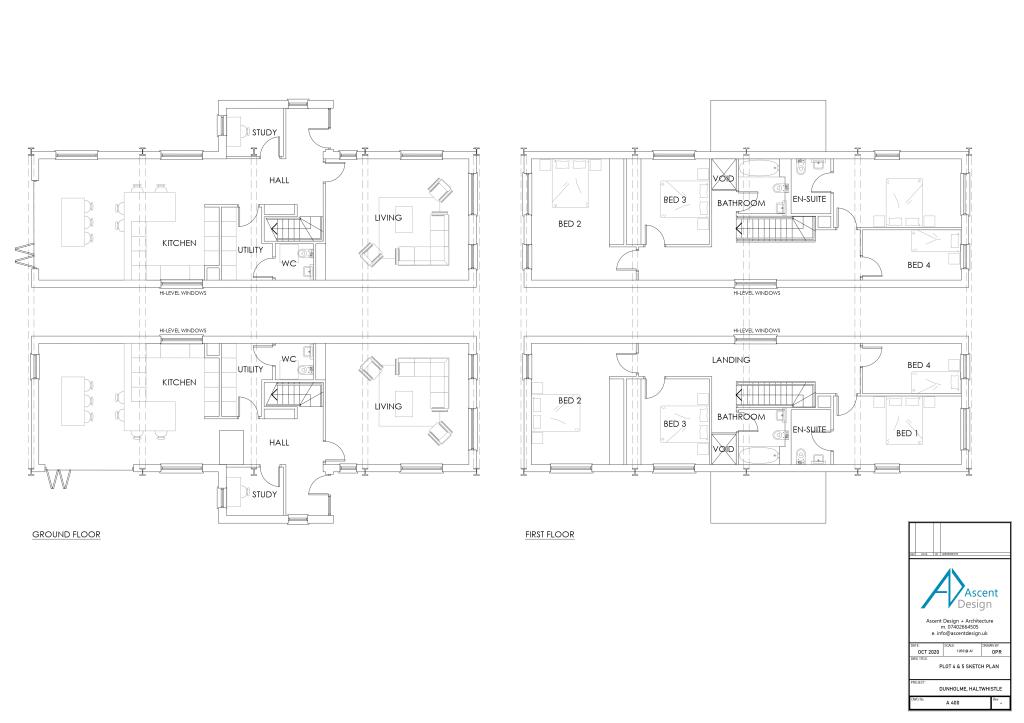
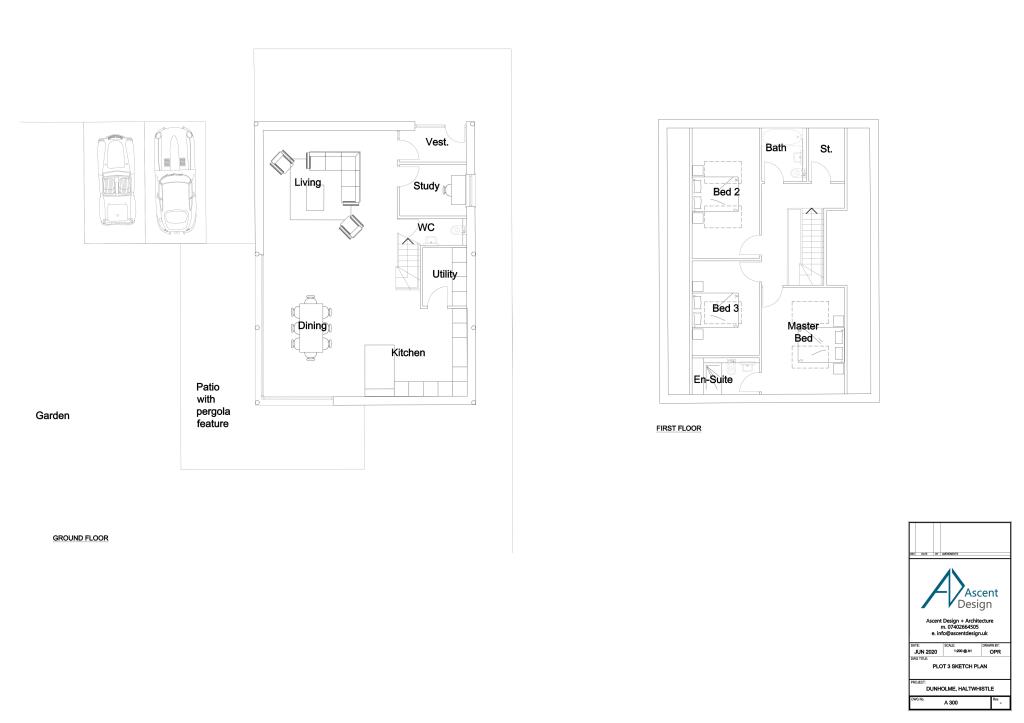
A rare development opportunity on the outskirts of Haltwhistle with full planning permission (ref: 21/03827/FUL) for five residential dwellings. The 0.42 ha (1.05 acre) site sits in an elevated position in the South Tyne Valley, offering uninterrupted valley views and easy access to the town’s amenities, train station and the A69.
The consented scheme converts existing agricultural buildings into one 4-bed detached house, two 3-bed detached houses and two 4-bed semi-detached houses, each with parking/garaging and generous garden space. Mains water and electricity are already on site and the land is predominately flat, which should simplify construction and site works.
This site will appeal to developers or investors seeking characterful barn conversions with modern finishes. Note the vendor wishes to retain a negotiable residential right of access over a portion of the land (hatched blue on the plan) and any layout changes beyond the approved scheme would require fresh consent. Buyers should verify service capacities and comply with all planning conditions.
Drawbacks to consider: broadband speeds in the area are slow and the wider area records higher deprivation levels. The project will require developer resource for conversion works, condition compliance and potential further planning if the approved layout is amended.
 Property for sale in Comb Hill, Haltwhistle, Northumberland, NE49 — £395,000 • 1 bed • 1 bath
 Property for sale in Comb Hill, Haltwhistle, Northumberland, NE49 — £395,000 • 1 bed • 1 bath Land for sale in Coachworks, Haltwhistle, Northumberland, NE49 9BH, NE49 — £295,000 • 1 bed • 1 bath
 Land for sale in Coachworks, Haltwhistle, Northumberland, NE49 9BH, NE49 — £295,000 • 1 bed • 1 bath 4 bedroom property for sale in Tow House, Hexham, Northumberland, NE47 — £185,000 • 4 bed • 1 bath
 4 bedroom property for sale in Tow House, Hexham, Northumberland, NE47 — £185,000 • 4 bed • 1 bath Equestrian facility for sale in Haydon Bridge, Hexham, NE47 — £190,000 • 1 bed • 1 bath • 1948 ft²
 Equestrian facility for sale in Haydon Bridge, Hexham, NE47 — £190,000 • 1 bed • 1 bath • 1948 ft² Land for sale in Catton, Hexham, Northumberland, NE47 — £130,000 • 1 bed • 1 bath
 Land for sale in Catton, Hexham, Northumberland, NE47 — £130,000 • 1 bed • 1 bath Land for sale in Belmont, Haydon Bridge, NE47 — £395,000 • 1 bed • 1 bath
 Land for sale in Belmont, Haydon Bridge, NE47 — £395,000 • 1 bed • 1 bath


















































































