High-spec two-bed with balcony and gated lift access near Kilburn High Road.
Park-facing private balcony with far-reaching views
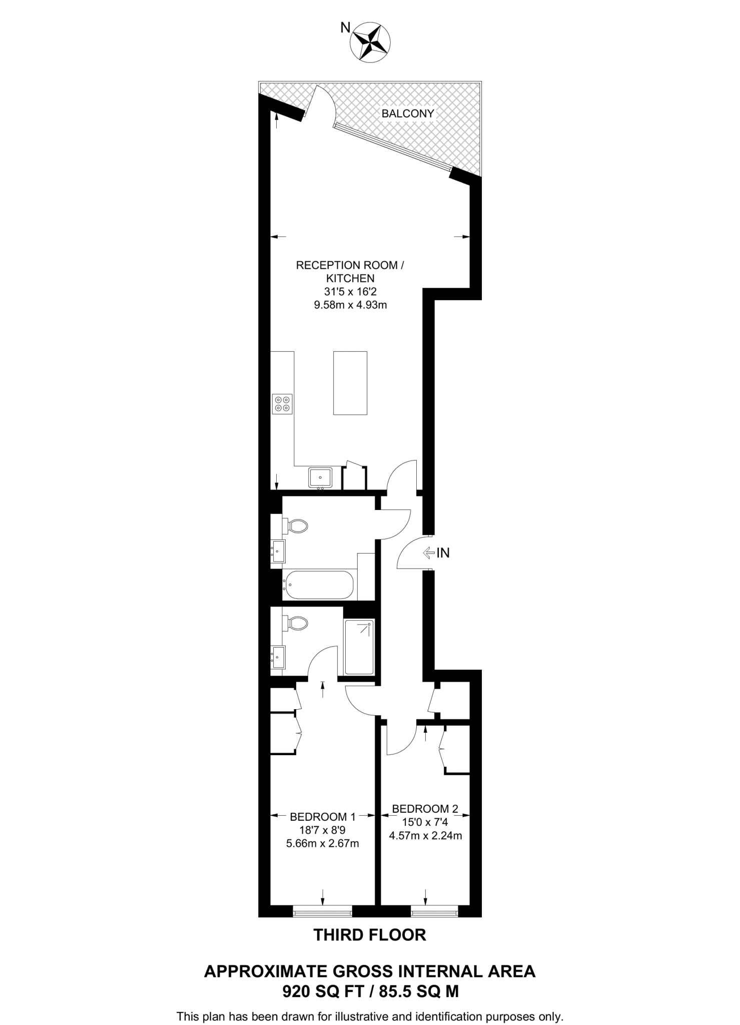
A high-specification two-bedroom flat with sweeping views over Kilburn Grange Park, arranged around a bright open-plan living area. The main bedroom benefits from an ensuite and bespoke bi-folding shutters; a generous private balcony faces the park and extends the living space. The building is a contemporary gated development with lift access and modern finishes throughout, offering around 920 sq ft of accommodation.
The apartment will suit first-time buyers or professionals looking for a stylish, low-maintenance home close to Kilburn High Road shops, restaurants and frequent bus links into central London. Practical points include mains gas central heating, fast broadband and excellent mobile signal — useful for remote working — and a straightforward linear layout that feels roomy and well arranged.
Be aware this is a leasehold property in an inner-city area with very high crime statistics and local deprivation indicators. Those concerns are material for family safety and insurance; prospective buyers should check lease length, service charges and security provisions. The flat’s strengths — park views, gated setting and modern specification — are balanced by the surrounding area context.
1 bedroom flat for sale in Kilburn High Road, Kilburn, NW6 — £500,000 • 1 bed • 1 bath • 582 ft²
1 bedroom flat for sale in Kilburn High Road, London, NW6 — £500,000 • 1 bed • 1 bath • 584 ft²
1 bedroom apartment for sale in Espalier Gardens, London, NW6 — £450,000 • 1 bed • 1 bath • 583 ft²
3 bedroom flat for sale in Espalier Gardens, Queens Park, NW6 — £725,000 • 3 bed • 2 bath • 1100 ft²
3 bedroom flat for sale in Espalier Gardens, West Hampstead, NW6 — £725,000 • 3 bed • 2 bath • 1026 ft²
2 bedroom flat for sale in Albert Road, Queen's Park, London, NW6 — £655,000 • 2 bed • 2 bath • 804 ft²






























































































