**Standout Features:**
- Expansive **16,410 sq. ft.** estate on **6.5 acres** of countryside
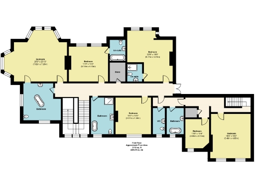
- **8 spacious bedrooms** and **6 luxurious bathrooms**
- Elegant **Gothic Norman Revival** architecture with **high ceilings** and stunning **stained glass windows**
- **5 reception rooms**, including a grand Drawing Room and a cozy Library
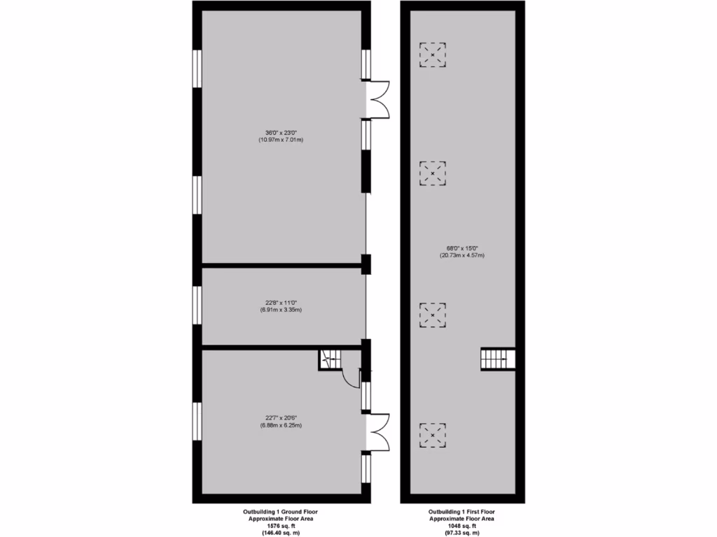
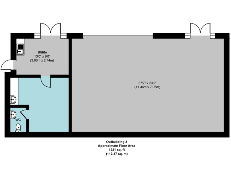
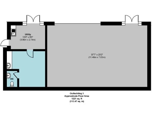
- Additional development potential with **3 outbuildings** (subject to planning permission)
- Peaceful, private setting with low crime rates and fast broadband
**Notable Concerns:**
- Grade II listing may complicate renovations
- High council tax rate
- Requires some imagination for repurposing spaces
**Summary:**
Northorpe Hall is a magnificent Grade II listed mansion steeped in history and architectural grandeur. With its Gothic Norman Revival style, this exquisite property boasts eight generous bedrooms and six bathrooms, making it an ideal family residence or luxury retreat for guests. The home is filled with light from towering double-height stained glass windows, while five distinct reception rooms provide both flexibility and comfort for entertaining.
Set within vast, beautifully landscaped grounds, this estate offers a serene escape, yet maintains potential for future development with three outbuildings ready for transformation into annexes or additional accommodations. While the listing status may present some challenges for renovations, the true charm and exclusivity of Northorpe Hall cannot be overstated. This is a unique opportunity for discerning buyers looking for a historic and spacious home in a tranquil countryside setting. Don't miss out on the chance to own a Lincolnshire treasure!
20 bedroom detached house for sale in Grange Lane, Burghwallis, Doncaster, DN6 — £1,195,000 • 20 bed • 11 bath • 18000 ft²
9 bedroom detached house for sale in Cleatham, Gainsborough, Lincolnshire, DN21 — £1,500,000 • 9 bed • 9 bath • 862 ft²
5 bedroom detached house for sale in Blyborough Hall, Blyborough, Gainsborough, Lincolnshire, DN21 — £2,500,000 • 5 bed • 5 bath • 20576 ft²
4 bedroom detached house for sale in Hall Farmhouse, Hall Drive, Canwick, Lincoln, Lincolnshire, LN4 2RG, LN4 — £850,000 • 4 bed • 2 bath • 2397 ft²
6 bedroom detached house for sale in Main Street, Fenton, Newark, NG23 — £1,750,000 • 6 bed • 3 bath • 4723 ft²
5 bedroom detached house for sale in Discover the luxury and tranquility at Saundby Park Hall..., DN22 — £975,000 • 5 bed • 3 bath • 3283 ft²






































































































































































































