Spacious family home with south-facing garden and terrace near good schools.
Bay-fronted double reception with cast-iron fireplace
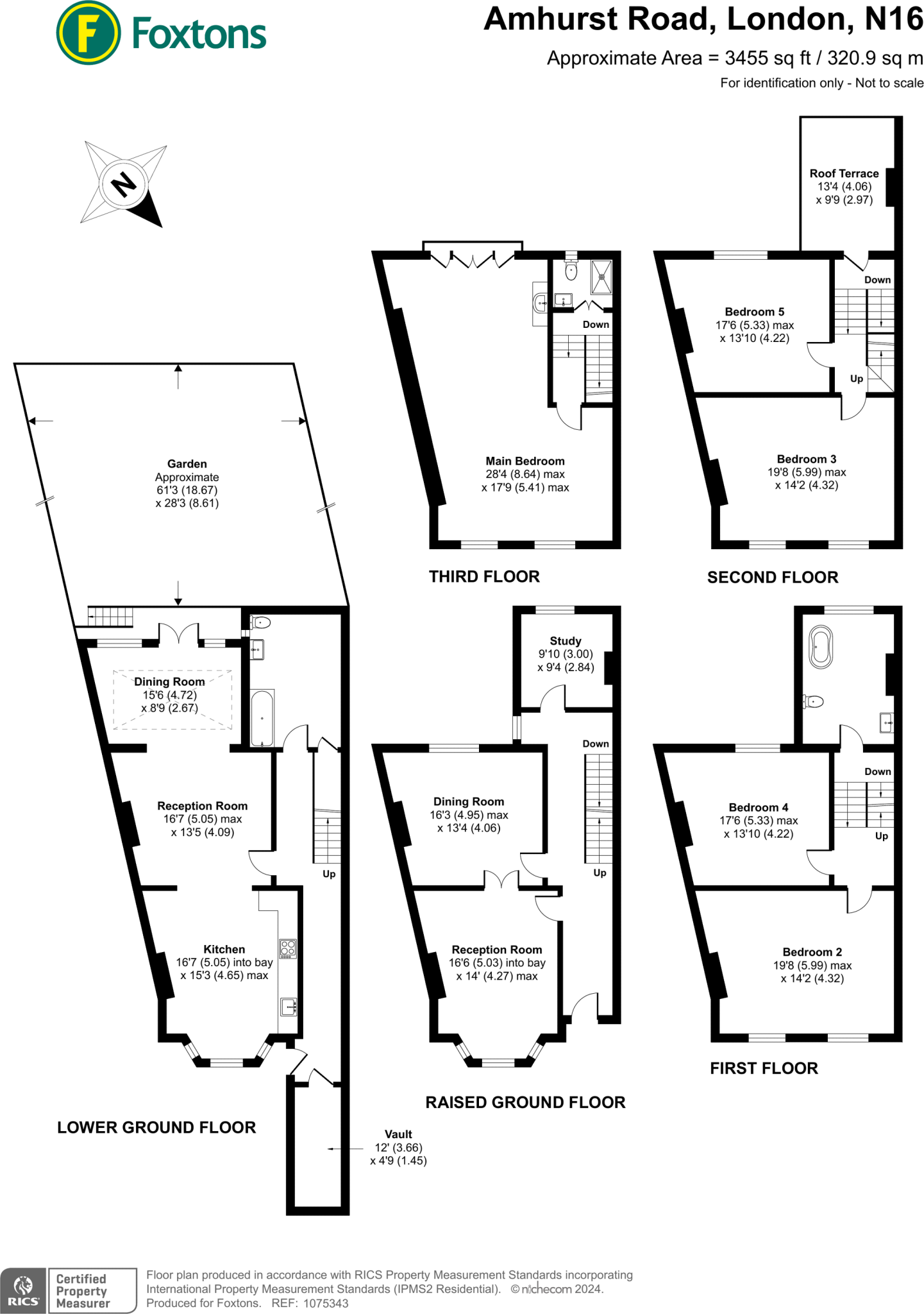
An imposing five-storey Victorian terraced house arranged over five floors, this six-bedroom home combines period character with substantial family space. The bay-fronted double reception retains a cast-iron fireplace and high ceilings, while a large kitchen/dining room with skylights creates a bright, sociable heart to the house. Outdoors there is a south-facing rear garden and an additional south-facing roof terrace, both rare for the area and useful for children and entertaining.
The property sits close to independent shops, cafés and strong transport links at Rectory Road and Dalston, making school runs and commuting straightforward. Several well-rated state schools are nearby, including outstanding and top 10% options, which will appeal to families. The freehold tenure and generous total floor area (about 3,455 sq ft) offer long-term flexibility for family living or conversion potential (subject to consents).
Buyers should note several important practical points. The solid brick walls are assumed to have no insulation, so energy-efficiency improvements may be needed. Crime levels are above average locally and the wider area shows signs of deprivation—factors to consider for security and resale. There are three bathrooms to serve six bedrooms, and some modernisation may be required to match contemporary expectations.
Overall this is a substantial Victorian family home with authentic period features and excellent indoor/outdoor space. It will suit buyers looking for a character property with scope to update and personalise, and those who value proximity to lively local amenities and good schools.
5 bedroom house for sale in Amhurst Road, Stoke Newington, N16 — £2,500,000 • 5 bed • 3 bath • 3500 ft²
5 bedroom terraced house for sale in Farleigh Road, London, N16 — £1,350,000 • 5 bed • 2 bath • 2500 ft²
6 bedroom terraced house for sale in Forburg Road, N16 — £1,750,000 • 6 bed • 3 bath • 2200 ft²
5 bedroom town house for sale in Amhurst Road, London, N16 — £2,500,000 • 5 bed • 3 bath • 3490 ft²
4 bedroom terraced house for sale in Brighton Road, London, N16 — £1,750,000 • 4 bed • 2 bath • 1980 ft²
5 bedroom house for sale in Dunlace Road, London, E5 — £1,900,000 • 5 bed • 4 bath • 2192 ft²














































































































































































































































































