Spacious five-bedroom with garden, near parks and excellent transport links.
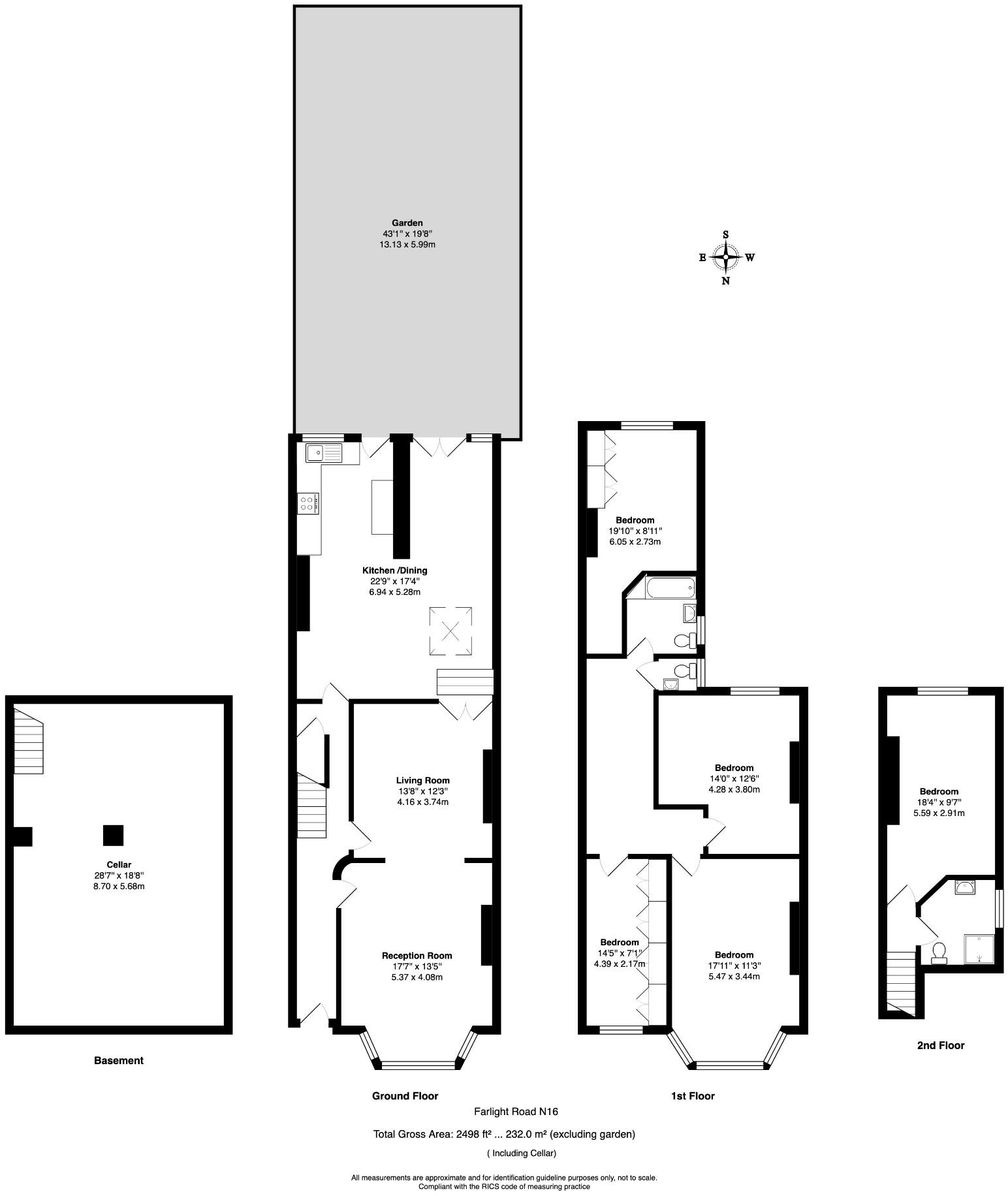
- Nearly 2,500 sq ft across three stories and a basement
- Five bedrooms, two bathrooms; flexible family layout
- Double reception and large kitchen-diner to south-facing garden
- Basement has conversion potential, subject to permissions
- Solid brick walls with assumed no insulation; upgrade potential
- EPC C; Council Tax Band E (above average)
- Convenient for Dalston Junction, Stoke Newington BR, and parks
- Freehold; good decorative order but scope to personalise
Set across three stories and approaching 2,500 sq ft, this Victorian mid-terrace retains original features including high ceilings, sash windows and fireplaces. A double reception and large kitchen-diner open onto a south-facing, low-maintenance garden — practical for daily family life and entertaining.
Five bedrooms and two bathrooms provide flexible space for growing families. The basement offers clear conversion potential to add living accommodation or a home office, subject to consents. The property is in good decorative order and ready for a buyer to personalise further.
Built as solid brick with no known wall insulation, the house may benefit from targeted energy improvements; the EPC is C. There are ongoing costs to note: Council Tax Band E and typical upkeep for a period property. Location strengths include easy access to Dalston Junction, Stoke Newington BR, Clissold and Hackney Downs parks, and several highly rated local schools.
5 bedroom house for sale in Bouverie Road, London, N16 — £2,250,000 • 5 bed • 3 bath • 2523 ft²
5 bedroom house for sale in Amhurst Road, Stoke Newington, N16 — £2,500,000 • 5 bed • 3 bath • 3500 ft²
4 bedroom terraced house for sale in Lordship Road, Stoke Newington, London, N16 — £1,350,000 • 4 bed • 1 bath • 1580 ft²
5 bedroom house for sale in Dunlace Road, London, E5 — £1,900,000 • 5 bed • 4 bath • 2192 ft²
4 bedroom terraced house for sale in Brighton Road, London, N16 — £1,750,000 • 4 bed • 2 bath • 1980 ft²
4 bedroom terraced house for sale in Foulden Road, Stoke Newington, N16 — £1,400,000 • 4 bed • 2 bath • 1919 ft²






























































