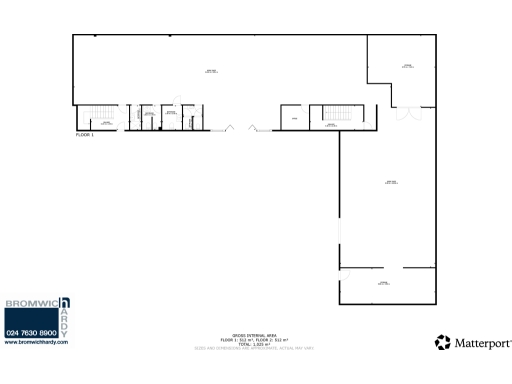
Large, well‑connected warehouse with offices and dedicated loading facilities.
Freehold two-storey industrial unit, substantial internal area
A substantial two‑storey commercial freehold in an established, affluent part of Warwick, offered with large open-plan warehouse areas and dedicated first-floor offices. The property combines durable steel-frame and brick/clad construction with practical features including roller shutter loading, a raised loading bay, and external yard/forecourt suitable for parking and servicing. Its position 0.5 miles from Warwick town centre and under five minutes to the A46 gives strong road connectivity for distribution or light industrial operators.
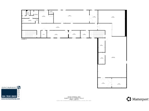
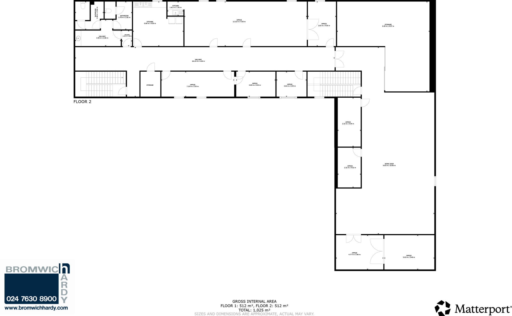
The first-floor offices sit on full load-bearing concrete flooring and benefit from good natural light, making them flexible for administrative, showroom or workshop uses. The unit has scope for continued commercial occupation or conversion for alternative industrial, storage or distribution operations; further neighbouring space may be available if expansion is required. The adjacent Grand Union Canal provides a distinctive local landmark but the setting is urban/commercial rather than scenic.
Notable considerations: the property currently has an EPC rating of D93 and a 2023 rateable value of £73,500, which will affect operating costs. The site footprint is substantial internally but the overall plot is described as small, so external expansion on the immediate site is limited. Buyers should inspect services and finishes to confirm suitability for specialist uses and allow for any fit-out or refurbishment costs.
This opportunity suits owner-occupiers or investors seeking a prominent, well‑connected industrial unit in a low-crime, very affluent catchment with excellent mobile and broadband connectivity. Legal title: freehold under title WK434682; alternatively the property can be leased on a full repairing and insuring basis for a term to be agreed.
Light industrial facility for sale in Units at, 4-6 Kelsey Close, Nuneaton CV11 6RS, CV11 — £95,000 • 1 bed • 1 bath • 1074 ft²
Light industrial facility for sale in Unit 8B, Waterloo Road, Bidford-On-Avon, Alcester, B50 — £450,000 • 1 bed • 1 bath • 5384 ft²
Warehouse for sale in Eaton Works, Althorpe Street, Leamington Spa, CV31 1NQ, CV31 — £575,000 • 1 bed • 1 bath • 8294 ft²
Warehouse for sale in Body Shop Premises & Yard, 126-130 Holbrook Lane, Coventry, CV6 4BN, CV6 — POA • 1 bed • 1 bath • 14421 ft²
Light industrial facility for sale in Bodmin Road, Coventry, CV2 5DB, CV2 — £1,735,000 • 1 bed • 1 bath • 21671 ft²
Light industrial facility for sale in Unit 1-2, Churchlands Business Park, Ufton Road, Harbury, Leamington Spa, Warwickshire, CV33 9GX, CV33 — £420,000 • 1 bed • 1 bath • 3330 ft²














































































