Immaculate three-bedroom split-level home with expansive balconies and off-street parking.
Duplex apartment over fourth and fifth floors, freehold
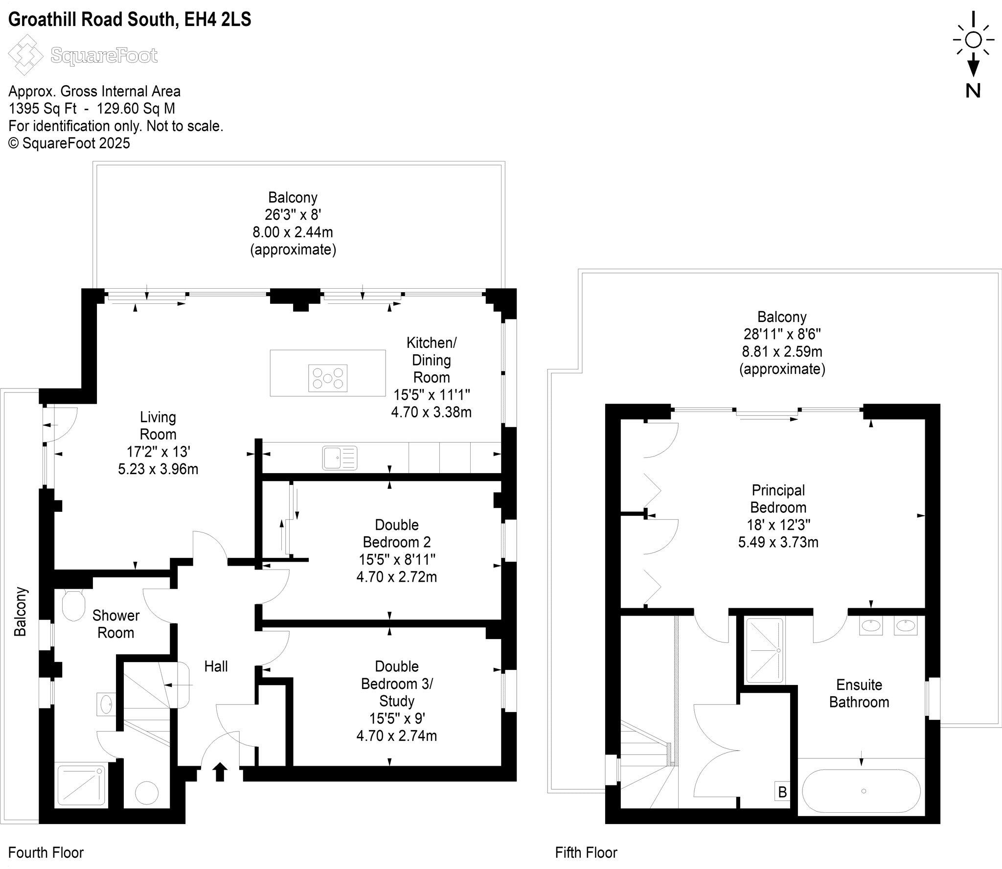
Set across the fourth and fifth floors of a contemporary development, this immaculate three-bedroom duplex offers bright, low-maintenance living with exceptionally large private outdoor areas. The open-plan sitting, dining and kitchen space benefits from dual-aspect windows and two balconies, while the principal suite occupies the upper floor with a walk-in wardrobe, ensuite and an expansive terrace boasting city and castle views.
Practical positives include an allocated off-street parking space, lift access, secure entry, fast broadband and excellent mobile signal — useful for professionals working from home. The property is presented in pristine condition throughout and is a freehold, EPC B home ready to move into with no immediate renovation required.
Buyers should note material local factors: the wider area is classified as very deprived, and council tax is in the higher Band G, which will increase ongoing costs. The duplex, multi-storey layout and upper-floor principal bedroom may be less suitable for those with limited mobility.
Overall this is a stylish, well-specified apartment that suits downsizers or professionals who value generous private outdoor space, strong connectivity and a turnkey home with notable city views, balanced against higher ongoing costs and the local area profile.
4 bedroom penthouse for sale in Ravelston House Park, Ravelston, Edinburgh, EH4 — £695,000 • 4 bed • 2 bath • 2120 ft²
3 bedroom duplex for sale in 26/29 Viewforth, Bruntsfield, Edinburgh, EH10 4FF, EH10 — £625,000 • 3 bed • 2 bath • 1395 ft²
3 bedroom apartment for sale in Rocheid Park, Edinburgh, EH4 — £450,000 • 3 bed • 2 bath • 1381 ft²
3 bedroom duplex for sale in Donaldson Crescent, Wester Coates, Edinburgh, EH12 — £1,495,000 • 3 bed • 3 bath • 2489 ft²
2 bedroom apartment for sale in Simpson Loan, Quartermile, Edinburgh, EH3 — £550,000 • 2 bed • 2 bath • 1263 ft²
3 bedroom apartment for sale in 13 (Flat 16) Simpson Loan, Jubilee Hall, Quartermile, Edinburgh, EH3 9GN, EH3 — £875,000 • 3 bed • 2 bath • 1736 ft²






































































































