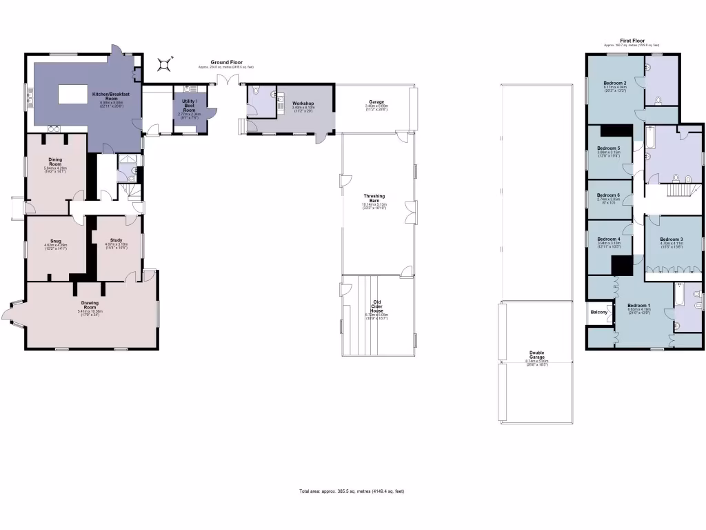
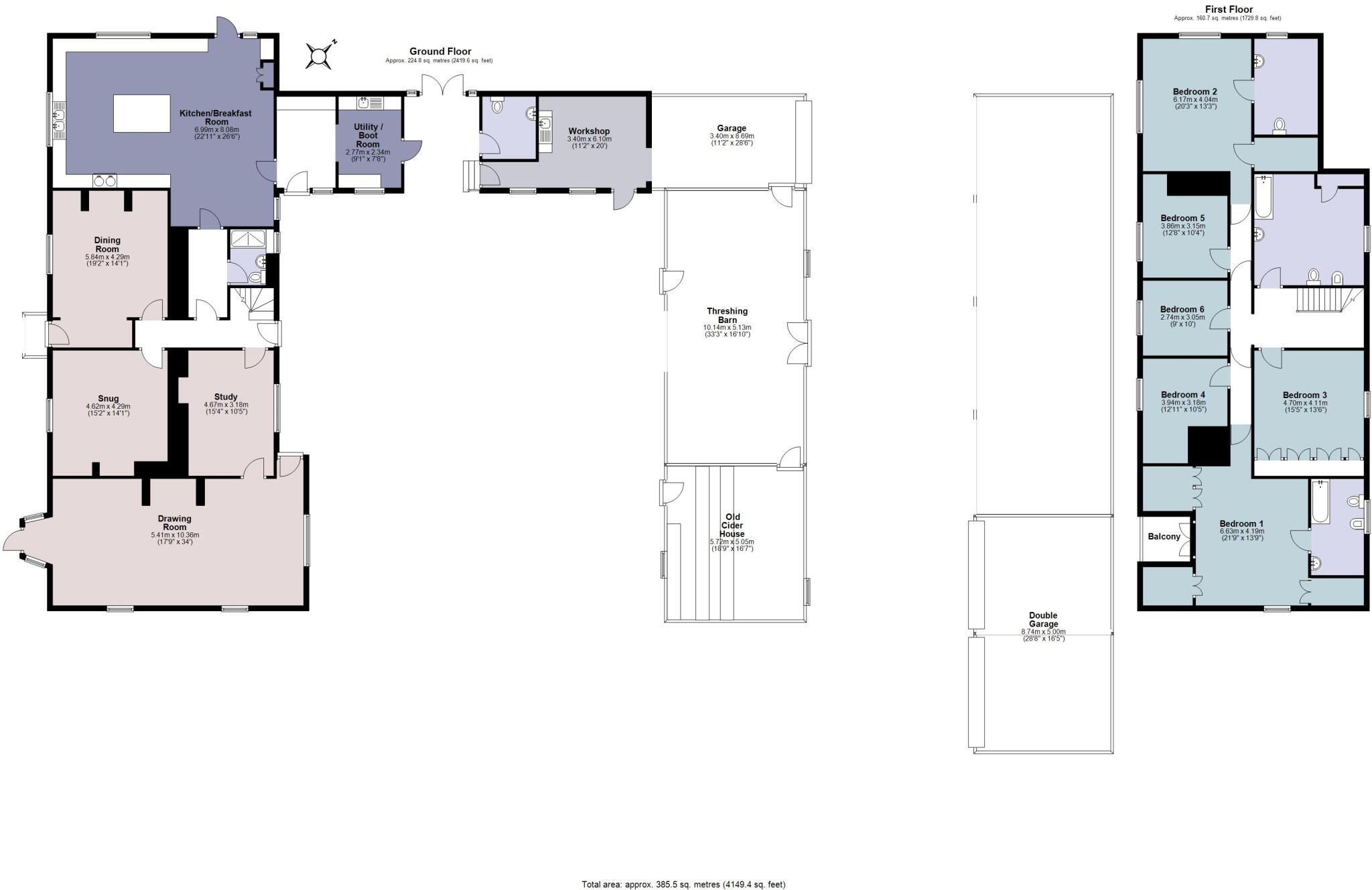
**Property Summary:**
- **Property Type:** Grade II listed farmhouse
- **Bedrooms:** 6 (spacious)
- **Location:** Set within 111.72 acres in the picturesque Blackdown Hills AONB
- **Features:** Traditional stone outbuildings, modern adaptable farm buildings, productive pasture, woodland, and ponds
- **Condition:** Historic charm with period features; however, listed status may impact renovation possibilities
- **Price:** £2,175,000
- **EPC Rating:** C
Set in an idyllic, unspoiled landscape on the southern edge of the Blackdown Hills AONB, Pitfield Farm is a remarkable Grade II listed farmhouse dating back to the 18th century. This expansive property boasts six beautifully appointed bedrooms and retains many charming period features, including inglenook fireplaces and rustic beams. The modern open-plan kitchen and grand 34-foot drawing room, which opens up to the south-facing gardens, offer a perfect blend of contemporary living and historical appeal.
Surrounded by 111.72 acres of productive pastureland, mixed woodland, and ponds, this estate presents extraordinary opportunities for environmental enhancement, livestock, or equestrian pursuits. The traditional stone outbuildings, alongside currently utilized modern structures, provide potential for varied alternative uses, subject to planning approval. Although listed status may present some renovation challenges, the property's unique character and substantial acreage secure its place as a desirable retreat for families or investors looking for a piece of rural paradise. With excellent mobile and fast broadband services, connectivity remains unfettered, while only a short distance to amenities and schools makes it the ideal setting for those seeking both seclusion and the comforts of community living.
This exceptional property is offered as a whole or in three separate lots, ensuring flexibility for potential buyers. Act quickly to seize the opportunity to own a piece of history in a stunning countryside location.
Detached house for sale in Cotleigh, Honiton, Devon, EX14 — £2,950,000 • 1 bed • 1 bath • 4149 ft²
Land for sale in Cotleigh, Honiton, Devon, EX14 — £450,000 • 1 bed • 1 bath • 2325 ft²
Land for sale in Cotleigh, Honiton, Devon, EX14 — £325,000 • 1 bed • 1 bath
4 bedroom house for sale in East Hill, Ottery St. Mary, Devon, EX11 — £1,900,000 • 4 bed • 1 bath • 5805 ft²
6 bedroom detached house for sale in Tedburn Road, Whitestone, Exeter, EX4 — £1,250,000 • 6 bed • 3 bath • 3999 ft²
4 bedroom detached house for sale in Stockland, Nr Honiton, Devon, EX14 — £1,500,000 • 4 bed • 3 bath • 2957 ft²














































