**Standout Features:**
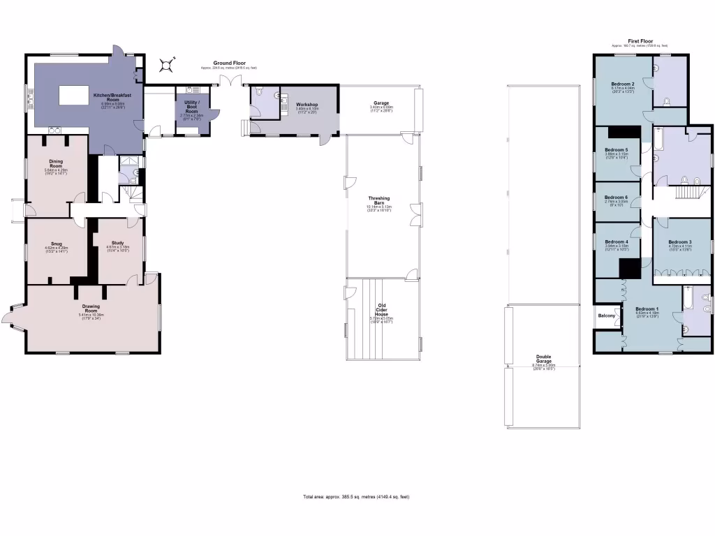
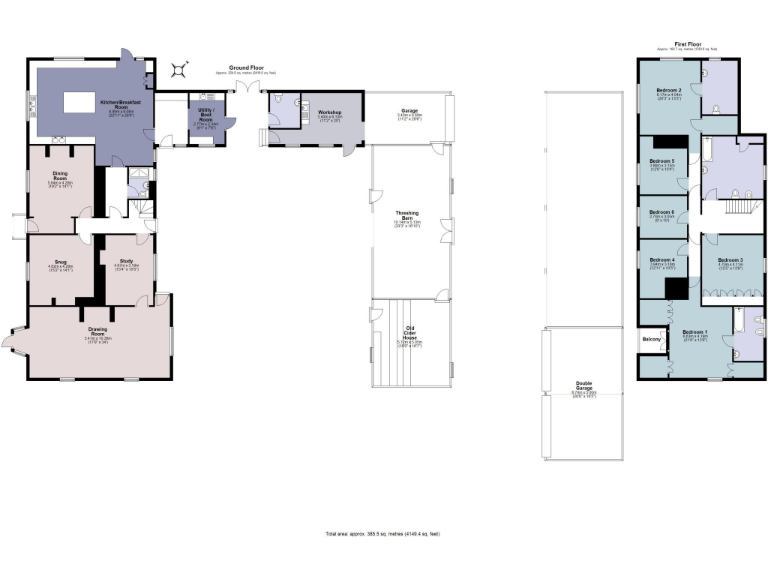
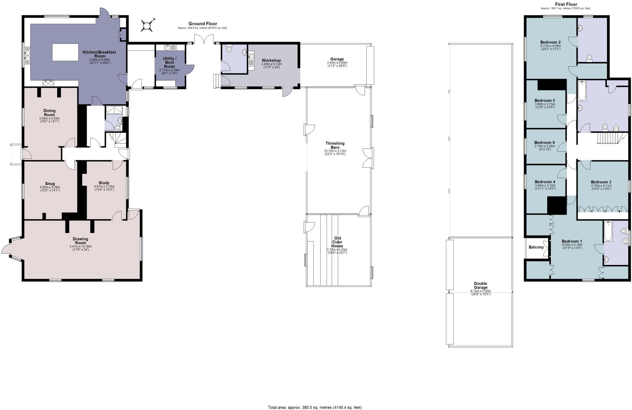
- Stunning Grade II listed six-bedroom farmhouse dating back to the 18th century.
- Exciting potential for restoration or alternative use of traditional stone outbuildings (subject to planning).
- Expansive grounds encompassing 173.44 acres of productive pasture, woodland, and tranquil ponds.
- Modern farm buildings and stabling, ideal for livestock or equestrian pursuits.
- Gorgeous views across the picturesque Blackdown Hills Area of Outstanding Natural Beauty.
**Additional Details:**
- Notable period features include inglenook fireplaces and chamfered beams, blended with a modern open-plan kitchen featuring a four-oven Aga.
- Landscaped gardens offer privacy and tranquility, complemented by an orchard and stream-fed water feature.
- Located just 3.5 miles from the historic market town of Honiton and within easy reach of popular coastal towns like Lyme Regis.
- Selling as a whole or in three separate lots, providing flexibility for buyers and potential investors.
- Some maintenance required due to the property's listed status, which may impact renovation plans.
Pitfield Farm is a rare opportunity for families seeking a peaceful, spacious living environment or investors looking for land with development potential. Picture yourself in this serene countryside setting, where you can enjoy nature and all the recreational opportunities it offers, from farming to family shoots. With its expansive land and unique character, this property won’t stay on the market long—seize the chance to make it your own.
Detached house for sale in Cotleigh, Honiton, Devon, EX14 — £2,175,000 • 1 bed • 1 bath • 4149 ft²
Land for sale in Cotleigh, Honiton, Devon, EX14 — £450,000 • 1 bed • 1 bath • 2325 ft²
Land for sale in Cotleigh, Honiton, Devon, EX14 — £325,000 • 1 bed • 1 bath
4 bedroom house for sale in East Hill, Ottery St. Mary, Devon, EX11 — £1,900,000 • 4 bed • 1 bath • 5805 ft²
4 bedroom detached house for sale in Stockland, Nr Honiton, Devon, EX14 — £1,500,000 • 4 bed • 3 bath • 2957 ft²
4 bedroom detached house for sale in Wick, Honiton, Devon, EX14 — £895,000 • 4 bed • 3 bath • 3239 ft²






























































