High-turnover pub with rooms and strong event capacity, ideal for investors.
Large 7,761 sq ft detached freehold on very large plot
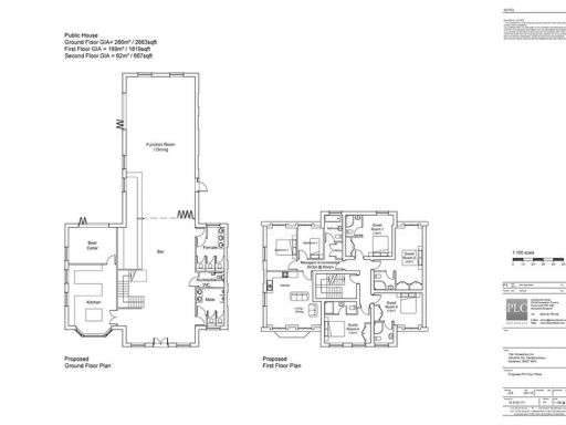
This substantial detached freehold public house occupies 7,761 sq ft on a very large plot on the outskirts of Hailsham, offering multiple income streams and clear redevelopment upside. The business currently operates a 70-cover restaurant, 200-capacity function room and 60-cover bar, supported by a fully fitted commercial kitchen and a southerly beer garden. Eight ensuite letting rooms plus a separate two-bedroom owners’ apartment provide immediate rental income and on-site management convenience. Turnover is reported between £16,000–£20,000 per week, reflecting an established trading position.
The building has undergone extensive refurbishment, including a new roof, and presents a mix of period character and modern hospitality fit-out. Off-street tarmac parking for around 50 cars is a significant asset for events and trading, and the parking area may offer further planning potential. The site is easily reached from London and Eastbourne roads and is within driving distance of Polegate station, attractive for both leisure and wedding trade.
Buyers should note material considerations plainly: the property sits in an area with a medium flood risk and any change of use or redevelopment would be subject to planning approval. The surrounding area is described as an ageing rural neighbourhood, which influences local demand patterns. For investors or developers seeking a trading pub with strong current revenues, or a large freehold site with redevelopment potential, this property offers scale, turnover and flexibility.
10 bedroom detached house for sale in Lower Horsebridge, Hailsham, East Sussex, BN27 — £1,400,000 • 10 bed • 9 bath • 7761 ft²
Pub for sale in The Farmers Freehouse, Lewes Road, Scaynes Hill, RH17 7NE, RH17 — £59,995 • 1 bed • 1 bath • 3488 ft²
Land for sale in Windmill Hill, Hailsham, BN27 — £400,000 • 1 bed • 1 bath • 5349 ft²
Pub for sale in S-520166 - Ardingly Inn, Street Lane, Haywards Heath RH17 6UA, RH17 — £575,000 • 1 bed • 1 bath
Pub for sale in Kings Head, Lower Horsebridge, Hailsham, BN27 4DL, BN27 — £900,000 • 1 bed • 1 bath • 7795 ft²
Pub for sale in High Street, BN8 — £550,000 • 4 bed • 1 bath • 3000 ft²






















































































