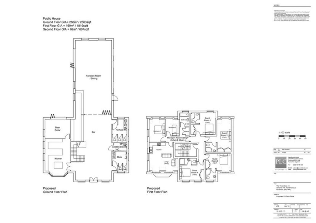
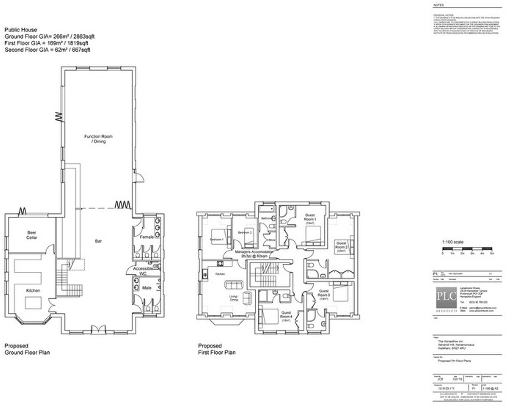
Freehold cleared development plot with comprehensive pub planning permission
An unusually large freehold development plot in Windmill Hill with comprehensive planning permission for a new-build public house. Approved drawings cover a three-storey scheme incorporating ground-floor pub space, manager’s accommodation and multiple letting rooms — a turnkey planning position attractive to hospitality investors or operators.
The site footprint provides 5,349 sq ft of internal floorspace on a level, cleared parcel with dedicated provision for 24 parking spaces. The ground floor layout in the plans shows a bar, commercial kitchen, cellar and a substantial rear function room suitable for events; upper floors are drawn for multiple guest rooms and manager’s living accommodation, giving flexibility to run a wet-led business with B&B-style letting rooms.
Material positives include freehold tenure, low local crime, village location with easy road links to Eastbourne (approx. 9 miles) and London access, and excellent mobile signal. The planning permission significantly de-risks delivery compared with speculative consent, but the site is marketed as land — construction, fit-out and operating capital are required to realise the scheme.
Known limitations: broadband speeds are slow and the external garden/curtilage extent is not clearly defined on the plans and may be modest. Surrounding context is residential, which may limit late-night operations and could require sensitive management of licensing and neighbour relations. Purchase price excludes build costs, statutory and service connections, and any outstanding planning or building regulation conditions must be satisfied before works commence.
10 bedroom detached house for sale in Lower Horsebridge, Hailsham, East Sussex, BN27 — £1,400,000 • 10 bed • 9 bath • 7761 ft²
Land for sale in Windmill Hill, Hailsham, East Sussex, BN27 — £435,000 • 1 bed • 1 bath
10 bedroom detached house for sale in Lower Horsebridge, Hailsham, East Sussex, BN27 — £1,400,000 • 10 bed • 9 bath
Land for sale in Winchelsea Road, Eastbourne, BN22 — £820,000 • 9 bed • 9 bath • 10656 ft²
Land for sale in Woodside Terrace Polegate Road, Hailsham, East Sussex, BN27 — £125,000 • 1 bed • 1 bath • 1864 ft²
Land for sale in Land west of North Street, Lower Horsebridge, Hailsham BN27 4DR, BN27 — £1,900,000 • 1 bed • 1 bath










































