**Standout Features:**
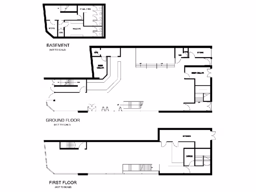
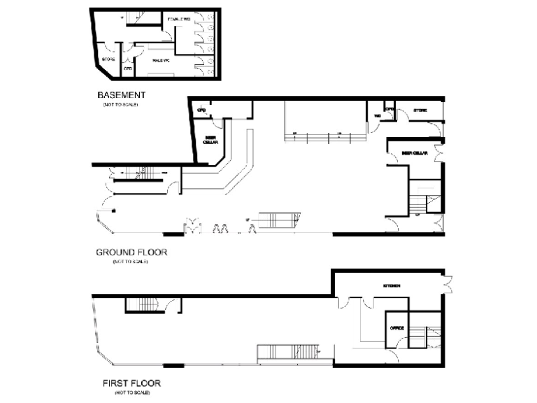
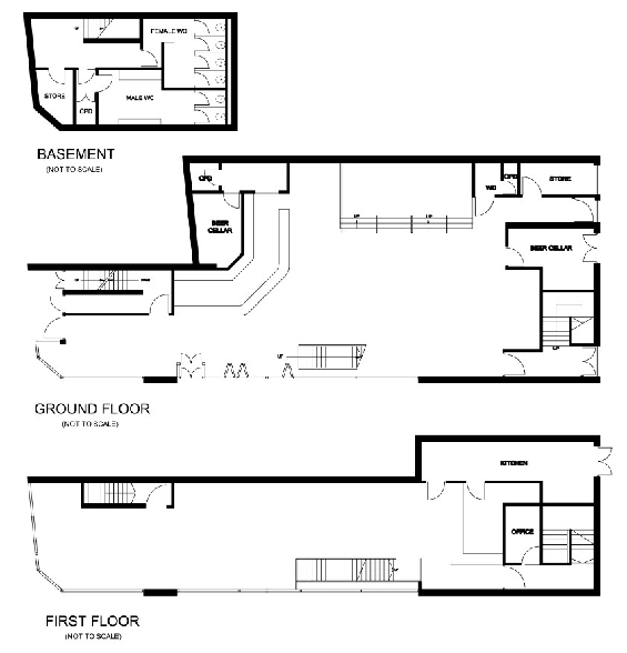
- Newly refurbished 4,057 sq ft modern pub
- Striking glass panelled frontage, maximizing visibility
- Spacious first floor trading area with open layout
- Licensed outside drinking area for al fresco enjoyment
- Excellent mobile signal and fast broadband speeds
**Concerns:**
- Located in an area with very high crime rates
- Situated in a deprived neighborhood
This impressive 4,000 sq ft pub in the heart of the town center offers a unique opportunity for investors and entrepreneurs looking for a vibrant business venture. Recently refurbished with a modern aesthetic, the striking glass panel frontage invites natural light, creating an inviting atmosphere both inside and out. The substantial first floor trading area, combined with a dedicated outdoor drinking space, positions this property to capitalize on foot traffic and enhance customer experiences.
While its prime location provides numerous amenities and conveniences, it's essential to note the high crime rate and the neighborhood's socio-economic challenges. However, it is surrounded by reputable schools, making it appealing to families and community-focused initiatives. Priced at O.I.E.O. £225,000, this freehold property presents future potential—ideal for ambitious buyers eager to leave their mark. Don't miss out on the chance to explore this opportunity, as listings like this don’t stay on the market for long!
Pub for sale in NW-524606 - 49 King Street, ., Wigan WN1 1DY, WN1 — £550,000 • 1 bed • 1 bath • 14165 ft²
Pub for sale in The Sefton, 1-7 Baldwin Street, St. Helens, Merseyside WA10 2RS , WA10 — £12,500 • 3 bed • 1 bath
Commercial property for sale in Hall Street, St. Helens, WA10 — £275,000 • 4 bed • 2 bath • 3258 ft²
High street retail property for sale in Gidlow Lane, Wigan, WN6 7DY, WN6 — £750,000 • 1 bed • 1 bath • 5200 ft²
Pub for sale in The Causeway Pub, 233 Wilderspool Causeway, Warrington, Cheshire, WA4 6QE, WA4 — £500,000 • 1 bed • 1 bath
Bar / nightclub for sale in 4 Suez Street, Warrington, WA1 1EG, WA1 — £85,000 • 1 bed • 1 bath • 380 ft²


































