WN1 1DY - Pub for sale in NW524606 49 King Street, ., Wigan WN1 1DY,…

View on Property Piper

Pub for sale in NW-524606 - 49 King Street, ., Wigan WN1 1DY, WN1

Summary - 49 KING STREET WIGAN WN1 1DY

1 bed 1 bath Pub

**Standout Features:**
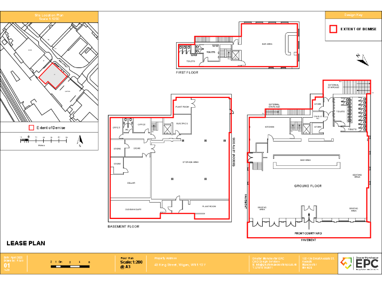
- Sizeable building footprint of 6,725 sq ft
- Located in the heart of Wigan's town centre
- Vacant possession for immediate use or redevelopment
- Previous corporate fit-out, offering a modern design
- EPC Rating: B, indicating energy efficiency

**Concerns:**
- Possible need for interior renovation to meet new ownership needs
- A non-conventional layout may require creative repurposing
- The property's history as a pub could influence zoning and alternative uses (subject to planning).

Discover a unique opportunity to own a substantial two-storey detached property situated in the bustling centre of Wigan. This expansive 6,725 sq ft building features an industrial-style design with large windows and high ceilings, perfect for a commercial venture or as a potential residential project. The previous fit-out provides a modern touch, yet the property offers flexibility for creative renovations or alterations under new ownership.

With the town's amenities just a stone's throw away, including cafes, shops, and public transport, this space is ripe for profit whether you’re looking to reopen it as a vibrant pub, convert it into a trendy bar, or explore other alternative uses (subject to planning). Despite the need for possible interior updates, the property is a solid investment in an area with very low crime rates and proximity to outstanding local schools, appealing to families or young professionals.

Secure this opportunity for £550,000 and begin to envision its future today. Don't miss out on the potential this prime Wigan location has to offer!

Property Details

Image Descriptions

Floorplan Description

Rooms

Textual Property Features

Detected Visual Features

EPC Details

Nearby Schools

Nearest Bars And Restaurants

,,,,}

Nearest General Shops

,,}

Nearest Grocery shops

,,}

Nearest Supermarkets

,,}

Nearest Religious buildings

,,}

Nearest Medical buildings

,,,}

Nearest Airports

,}

Nearest Leisure Facilities

,,,,}

Nearest Tourist attractions

,,}

Nearest Train stations

,,,,}

Nearest Bus stations and stops

,,,,}

Nearest Hotels

,,}

Tags

Local Market Stats

AirBnB Data

Similar Properties

Meta

High Res Images

Compatible Images

Low res Images

Thumbnails

Raw Images

High Res Floorplan Images

Compatible Floorplan Images

Low res Floorplan Images

FloorplanImages Thumbnail

Raw Floorplan Images