Light-filled three-bedroom home near top schools.
Three bedrooms with bright, open-plan lounge and dining area
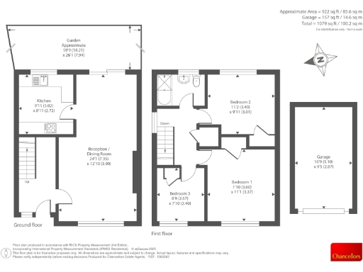
This bright three-bedroom semi-detached house sits on a decent plot at the edge of High Wycombe, enjoying afternoon sun and pleasant countryside views. It has been updated with a modern refitted kitchen and new flooring throughout, creating an easy-to-live-in ground floor with an open-plan lounge/dining space.
The tiered, enclosed gardens provide private outdoor space and a large patio for entertaining; they are attractive but will need routine maintenance because of the levels. Off-street driveway parking and a single garage add practical storage and vehicle space for a family.
Families will value the access to well-regarded local schools, including two outstanding secondaries nearby, plus good transport links to the M40 and the train station. The house is freehold, gas central heated with cavity walls and double glazing (installed before 2002). Note there is a single bathroom for three bedrooms and some buyers may want to consider further modernisation in the long term.
3 bedroom semi-detached house for sale in High Wycombe, Buckinghamshire, HP12 — £475,000 • 3 bed • 1 bath • 1153 ft²
4 bedroom semi-detached house for sale in High Wycombe, Buckinghamshire, HP13 — £550,000 • 4 bed • 2 bath • 1675 ft²
3 bedroom semi-detached house for sale in St. Georges Close, High Wycombe (walk Of Station), HP13 — £385,000 • 3 bed • 1 bath • 611 ft²
3 bedroom semi-detached house for sale in Woodside Road, High Wycombe, HP13 — £400,000 • 3 bed • 1 bath • 1047 ft²
4 bedroom semi-detached house for sale in Cock Lane, High Wycombe, HP13 7EA, HP13 — £548,800 • 4 bed • 1 bath • 1373 ft²
4 bedroom terraced house for sale in High Wycombe, Buckinghamshire, HP13 — £375,000 • 4 bed • 1 bath • 1256 ft²






















































































