Bright period flat with garden and parking, ideal for commuters.
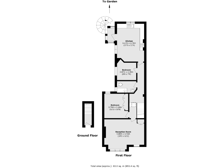
Two double bedrooms with generous reception proportions
Private landscaped garden with direct kitchen access
Off‑street parking plus share of freehold
Newly renovated — move‑in ready condition
High ceilings and large period windows, lots of natural light
Potential loft extension, subject to planning permission
Long, linear layout limits major reconfiguration options
Solid brick walls assumed uninsulated; Energy Rating D
Set across the first floor of a late‑Victorian terrace, this two‑double bedroom maisonette offers move‑in ready accommodation with period proportions and contemporary finishes. High ceilings and large arched windows flood the reception with light, while a private landscaped garden provides rare outdoor space for this location. Off‑street parking and a share of freehold add practical value for a London flat.
The flat is newly renovated, so most cosmetic and finish items are complete; buyers benefit from an extended rear kitchen with direct garden access and a generous front reception room. Commuters will appreciate being within half a mile of Balham mainline and Underground, plus easy access to shops, cafés and Tooting Bec Common.
There is scope to add value via a loft extension subject to planning permission, but the property’s long, linear footprint limits radical internal reconfiguration. Note practical points: the building’s solid brick walls are assumed uninsulated, the energy rating is D, and there is a single bathroom—factors to consider for comfort and running costs.
Overall this maisonette suits first‑time buyers or buy‑to‑let investors seeking a character conversion with ready habitation and clear potential for value uplift through planning or targeted improvement.
 2 bedroom maisonette for sale in Bedford Hill, Balham, SW12 — £750,000 • 2 bed • 1 bath • 790 ft²
 2 bedroom maisonette for sale in Bedford Hill, Balham, SW12 — £750,000 • 2 bed • 1 bath • 790 ft² 3 bedroom maisonette for sale in Midmoor Road, Balham, SW12 — £875,000 • 3 bed • 2 bath • 1104 ft²
 3 bedroom maisonette for sale in Midmoor Road, Balham, SW12 — £875,000 • 3 bed • 2 bath • 1104 ft² 2 bedroom maisonette for sale in Glenfield Road, LONDON, SW12 — £750,000 • 2 bed • 1 bath • 827 ft²
 2 bedroom maisonette for sale in Glenfield Road, LONDON, SW12 — £750,000 • 2 bed • 1 bath • 827 ft² 3 bedroom maisonette for sale in Glenfield Road, Balham, SW12 — £900,000 • 3 bed • 2 bath • 1200 ft²
 3 bedroom maisonette for sale in Glenfield Road, Balham, SW12 — £900,000 • 3 bed • 2 bath • 1200 ft² 2 bedroom maisonette for sale in Haverhill Road, Balham, SW12 — £700,000 • 2 bed • 1 bath • 759 ft²
 2 bedroom maisonette for sale in Haverhill Road, Balham, SW12 — £700,000 • 2 bed • 1 bath • 759 ft² 3 bedroom flat for sale in Bedford Hill, Balham, SW12 — £775,000 • 3 bed • 2 bath • 1242 ft²
 3 bedroom flat for sale in Bedford Hill, Balham, SW12 — £775,000 • 3 bed • 2 bath • 1242 ft²






























