Rare freehold warehouse with three roller shutters and large forecourt parking.
Rare freehold light-industrial unit near M1 junction 11a
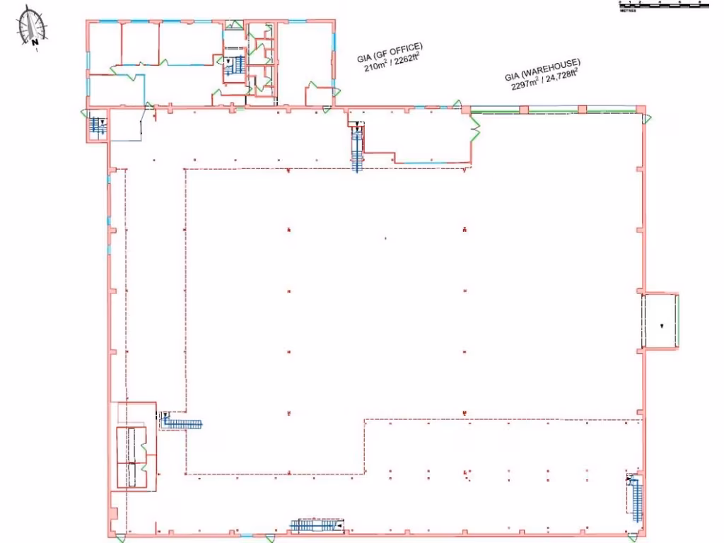
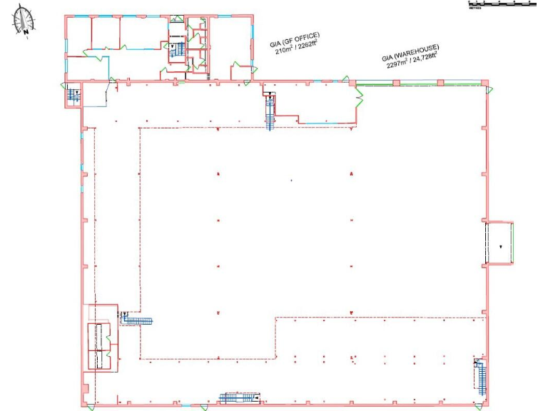
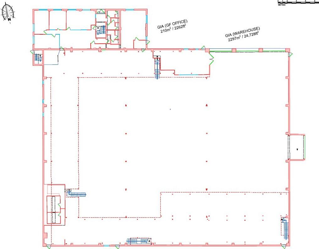
A rare freehold light-industrial opportunity on North Luton Industrial Estate, immediately accessible from M1 junction 11a. The single-level warehouse is complemented by a two-storey office/storage block to the front and three ground-level roller-shutter doors that support high-frequency loading. Forecourt goods access and approximately 23 off-street car parking spaces make the site practical for distribution, light manufacturing or bulky storage uses.
Internally the building offers very large clear-span accommodation with high ceilings and an extensive mezzanine reported at about 9,800 sq ft (not included in the stated total and may be removable on request). The plot is very large and the setting is typical industrial estate — practical, low-crime and well connected. Fast broadband and excellent mobile signal support modern operational needs.
Important notes: the published price is shown as £1 and should be treated as a placeholder pending clarification. The mezzanine area is separately noted and may be removed, which would change usable floor area. Buyers should confirm the exact measured floor area, any planning or asbestos surveys, and service/mechanical condition prior to offer.
Light industrial facility for sale in Unit 24a (rear) Park Avenue Industrial Estate, Sundon Park Road, Luton, LU3 3BP, LU3 — £1,600,000 • 1 bed • 1 bath • 11478 ft²
Light industrial facility for sale in Unit 1, Eastern Avenue Industrial Estate, Dunstable, Bedfordshire, LU5 — £595,000 • 1 bed • 1 bath • 16941 ft²
Light industrial facility for sale in The Quad, Great Marlings, Luton, Bedfordshire, LU2 — £1,000,000 • 1 bed • 1 bath • 4025 ft²
Light industrial facility for sale in 3 London Road, Markyate, AL3 8JL, AL3 — £3,250,000 • 1 bed • 1 bath • 24570 ft²
Light industrial facility for sale in Unit 17 , Butterfield Business Park, Luton, LU2 8DL, LU2 — POA • 1 bed • 1 bath
Light industrial facility for sale in Unit 2-3 Eastern Avenue Industrial, Dunstable, Bedfordshire, LU5 — £895,000 • 1 bed • 1 bath • 19118 ft²


































































