Spacious, extended house with generous garden and driveway.
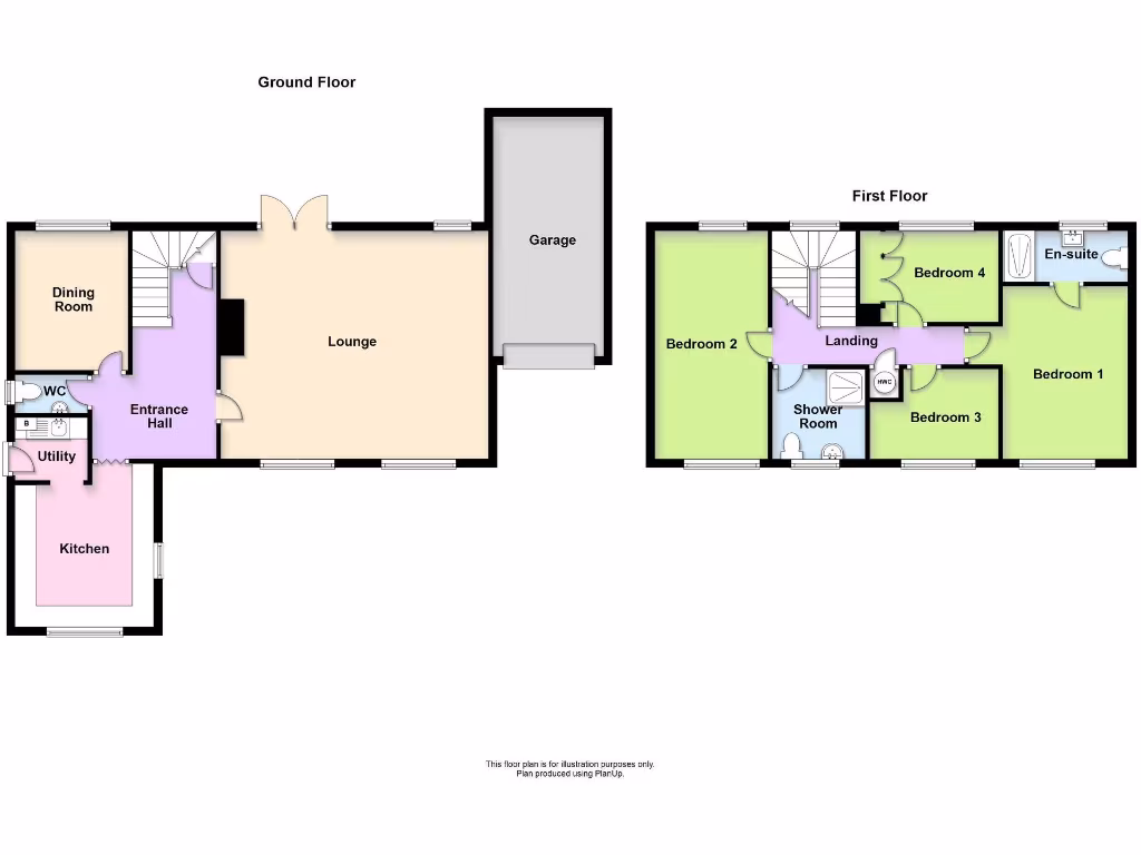
Four bedrooms with en-suite to the master
Set at the quiet end of a cul-de-sac and just over 200 metres from the Grand Union Canal, this four-bedroom detached home suits families seeking peaceful suburban living with easy outdoor access. The extended layout provides two reception rooms and a kitchen with a vaulted ceiling and breakfast bar, creating bright, flexible living space for everyday family life and entertaining.
The master bedroom benefits from an en-suite shower room; three further bedrooms and a separate utility room add practical convenience. A generous rear garden and an enclosed front courtyard give safe, private outdoor space for children and pets, while a driveway provides off-street parking.
Buyers should note the garage has previously been adapted to extend the lounge, which improves internal living space but reduces storage and workshop potential. The property has an EPC rating of C and council tax is above average — sensible running costs for a family-sized home in this area. Freehold tenure and a decent plot size add long-term appeal for owners and investors alike.
4 bedroom detached house for sale in Quadrans Close, Pennyland, Milton Keynes, MK15 8AU, MK15 — £650,000 • 4 bed • 3 bath • 1883 ft²
4 bedroom semi-detached house for sale in Bernay Gardens, Bolbeck Park, MK15 — £459,995 • 4 bed • 3 bath • 1288 ft²
4 bedroom detached house for sale in Gardiner Court, Blue Bridge, Milton Keynes, Buckinghamshire, MK13 — £475,000 • 4 bed • 2 bath • 1135 ft²
3 bedroom detached house for sale in Adams Court, Woughton On The Green, MK6 — £500,000 • 3 bed • 2 bath • 1087 ft²
4 bedroom detached house for sale in Kincardine Drive, Bletchley, Milton Keynes, MK3 — £520,000 • 4 bed • 2 bath • 1510 ft²
4 bedroom detached house for sale in Bromham Mill, Giffard Park, Milton Keynes, Buckinghamshire, MK14 — £750,000 • 4 bed • 2 bath • 1826 ft²






























































































































































































































