Ready-to-move-in four-bedroom home with large private garden and modern kitchen.
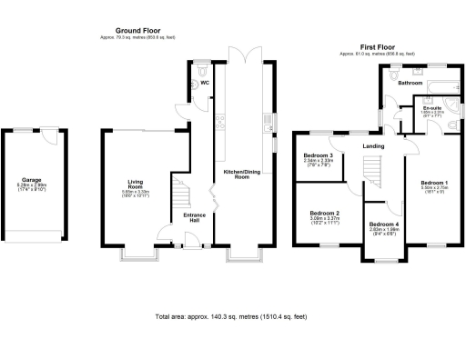
4 bedrooms including master with en suite
Spacious open-plan living and large modern kitchen/diner
Fully private, not overlooked rear garden—large and family-friendly
Single garage plus off-street parking for up to four vehicles
Recently fitted combi boiler and double glazing (post-2002)
About 1,510 sqft on a decent plot; multi-story layout
Built late 20th century; retains period construction characteristics
Council tax band above average — higher annual running cost
Set on a peaceful cul-de-sac in MK3, this four-bedroom detached home is arranged over multiple floors for adaptable family living. A recently fitted kitchen and a bright open-plan living area create a roomy daily hub, while an en suite to the master adds practical comfort for parents. The rear garden is fully private and not overlooked—ideal for children and summer entertaining.
Practical upgrades include a newly fitted combi boiler and double glazing fitted since 2002, reducing immediate maintenance needs. Off-street parking for several vehicles plus a single garage suit multi-car households and storage needs. The property totals about 1,510 sqft and sits on a decent plot, offering a comfortable family footprint without excessive external maintenance.
Location benefits include good nearby primary and secondary schools rated Good, excellent mobile signal and fast broadband for home working, and low local crime. The neighbourhood profile suits multi-ethnic professionals with families, and local amenities and regular bus links are within easy reach.
A few points to note: the home was built in the late 20th century, so while recently renovated internally, it retains 1970s/1980s construction characteristics. Council tax is above average, which should be considered for ongoing costs. Overall, this is a ready-to-move-in family house with sensible modern updates and substantial outdoor space.
4 bedroom detached house for sale in Aran Court, Oakridge Park, MK14 — £425,000 • 4 bed • 2 bath
4 bedroom detached house for sale in Tweed Drive, Bletchley, Milton Keynes, MK3 — £600,000 • 4 bed • 2 bath • 1857 ft²
5 bedroom detached house for sale in Longhorn Drive, Whitehouse, Milton Keynes, MK8 — £525,000 • 5 bed • 3 bath • 1865 ft²
4 bedroom link detached house for sale in Baccara Grove, Bletchley, Milton Keynes, MK2 — £390,000 • 4 bed • 1 bath • 1137 ft²
4 bedroom detached house for sale in Tiffany Close, MILTON KEYNES, Buckinghamshire, MK2 — £450,000 • 4 bed • 1 bath • 1230 ft²
3 bedroom detached house for sale in Carnweather Court, Tattenhoe, Milton Keynes, Buckinghamshire, MK4 — £449,950 • 3 bed • 2 bath • 1102 ft²






























































































