Auction-ready family home with large rear garden and garage, ripe for refurbishment.
- Three bedrooms, approximately 747 sq ft
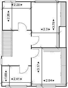
This three-bedroom semi-detached house on a corner plot combines immediate rental or family use with clear scope for improvement. The property sits at the end of a quiet cul-de-sac in Garden Village, offering a substantial rear garden, detached garage and private driveway — rare benefits for the size. Internally the home provides an open-plan lounge-dining area, a modest kitchen and three bedrooms across approximately 747 sq ft. EPC C and Council Tax band C are practical positives for running costs.
The sale is by online auction (bidding opens 26/11/2025, 12:00) and will require a 10% deposit and exchange within 24 hours of a successful bid, with completion usually within 28 days. Bidders should note a holding fee to register for online bidding and that a buyer’s premium can apply if sold before auction. Prospective purchasers must review the legal pack and carry out their own surveys and searches prior to bidding.
This home suits buyers seeking an affordable entry to ownership or a hands-on investment. The property’s condition is dated in parts (hallway wear and older finishes throughout) and will benefit from cosmetic refurbishment to maximise value. The location offers fast broadband, very low local crime and good transport links close to schools, shops and leisure facilities, though the wider area records high deprivation indices which may affect future rental demand or resale dynamics.
Clear planning for budget, timescales and surveys will be essential. For a buyer prepared to renovate, the corner plot, garage and off-street parking present tangible opportunities to increase living space, rental income or resale value.
3 bedroom end of terrace house for sale in 14 George Street, Neath, West Glamorgan, SA11 1TT, SA11 — £95,000 • 3 bed • 1 bath • 1033 ft²
3 bedroom semi-detached house for sale in 56 Edgemoor Close, Upper Killay, Swansea, West Glamorgan, SA2 7HJ, SA2 — £115,000 • 3 bed • 1 bath • 448 ft²
3 bedroom semi-detached house for sale in 71 Clyndu Street, Morriston, Swansea, West Glamorgan, SA6 7BB, SA6 — £95,000 • 3 bed • 1 bath • 963 ft²
3 bedroom semi-detached house for sale in 154 Garden Suburbs, Trimsaran, Kidwelly, SA17 4AF, SA17 — £99,000 • 3 bed • 1 bath • 904 ft²
3 bedroom semi-detached house for sale in Heol Dewi Sant, Penllergaer, Swansea, SA4 9BD, SA4 — £130,000 • 3 bed • 1 bath • 967 ft²
2 bedroom terraced house for sale in 103 Heol Y Gors, Townhill, Swansea, West Glamorgan, SA1 6RY, SA1 — £89,000 • 2 bed • 1 bath • 306 ft²






















































































