Conveniently located near Frimley station and green spaces for busy families.
Chain free extended semi-detached home with flexible four/five-bedroom layout
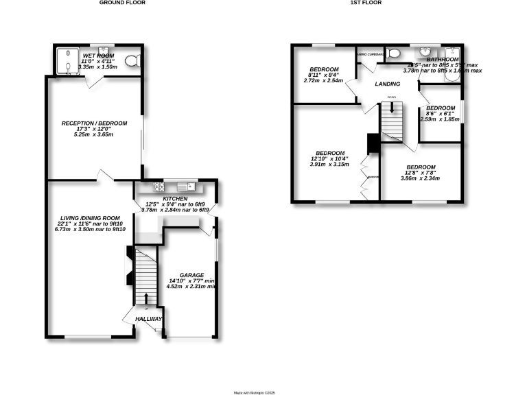
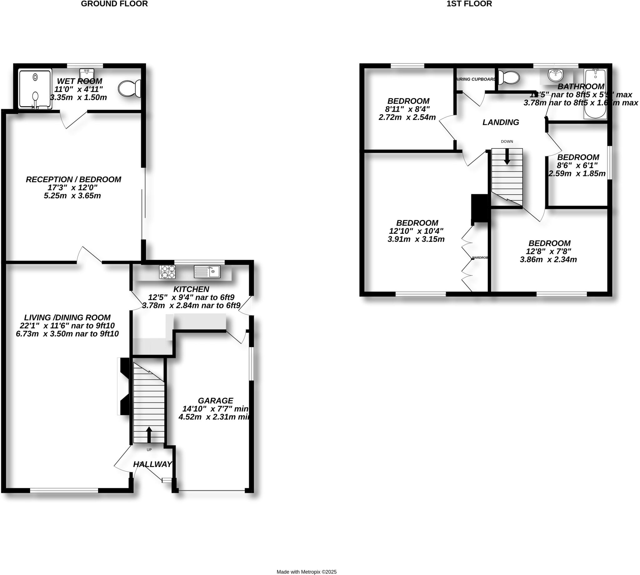
22ft living/dining room and 17ft ground-floor reception/bedroom
Modern fitted kitchen; downstairs wet room plus family bathroom upstairs
Large paved driveway and integral garage with internal access
Tended rear garden with patio, lawn, shed space and side gate access
EPC: D (58); mid-century build with modernization potential
Medium flood risk for the area; consider insurance implications
Local crime levels above average; security measures recommended
An extended four/five-bedroom semi-detached home on Bailey Close offering flexible family space and practical parking. The ground floor includes a 17ft reception/bedroom and a wet room, while upstairs provides three further bedrooms and a family bathroom. A 22ft living/dining room and modern fitted kitchen give everyday living strong resale appeal.
Outside there is a tended, medium-sized rear garden with patio and lawn, plus a large paved driveway and integral garage with internal access. The house sits close to Frimley high street, local green space and the train station, making daily commutes and school runs straightforward. The surrounding area is popular with professionals and families.
Buyers should note this property is sold as an ongoing concern and is offered chain free. The EPC rating is D (58) and the roof and exterior show mid-20th-century styling with some modernization potential. There is a medium flood risk for the area and local crime levels are above average; prospective buyers should factor these into insurance and security plans.
This home suits families seeking near-station convenience or investors looking for a renovation project with rental potential. The layout and plot size give scope for updates to increase energy efficiency and market value.
5 bedroom detached house for sale in Station Road, Frimley, Camberley, Surrey, GU16 — £750,000 • 5 bed • 2 bath • 1806 ft²
4 bedroom detached house for sale in Fern Close, Frimley, Camberley, Surrey, GU16 — £575,000 • 4 bed • 1 bath • 911 ft²
4 bedroom house for sale in The Cloisters, Frimley, Camberley, GU16 — £400,000 • 4 bed • 1 bath • 1359 ft²
6 bedroom detached house for sale in Maybury Close, Frimley, Surrey, GU16 — £675,000 • 6 bed • 3 bath • 2028 ft²
3 bedroom terraced house for sale in Burleigh Road, Frimley, Surrey, GU16 — £380,000 • 3 bed • 3 bath • 932 ft²
3 bedroom semi-detached house for sale in Hollytree Gardens, Frimley, Camberley, Surrey, GU16 — £500,000 • 3 bed • 1 bath • 1158 ft²






















































































































































































