Chain‑free family home with garage, private garden and excellent transport links.
- Chain-free mid-terrace townhouse in a quiet cul-de-sac
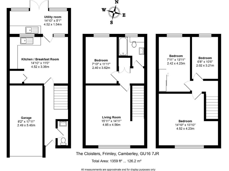
- Flexible 3–4 bedroom layout over three floors (approx 1,359 sq ft)
- 16ft living room; 14ft kitchen plus utility and cloakroom
- Secluded south-facing feeling garden around 48ft; low maintenance
- Driveway parking and integral garage included
- Single bathroom only; may be limiting for larger families
- Double glazing fitted before 2002; thermal upgrades likely needed
- Timber-frame with partial insulation; consider refurbishment budget
Set in a quiet cul-de-sac and offered chain-free, this mid-20th-century mid-terrace townhouse suits a growing family or someone seeking sensible commuter links. The house provides flexible accommodation over three floors — a large 16ft living room, an adaptable dining/bedroom space on the first floor, and three further bedrooms on the second floor. The fitted kitchen opens to a utility room and French doors lead onto a private, lawned garden of about 48ft.
Practical benefits include a driveway, integral garage and easy access to Frimley High Street, nearby schools and good rail links to London. The plot is low-maintenance and secluded, making the garden useful for children or outside entertaining without immediate overlooking. The property is freehold and occupies an average-sized overall footprint (approximately 1,359 sq ft).
There are a few material points to note: the house has only one bathroom, the glazing was installed before 2002 and the building appears timber-frame with partial insulation — any buyer wanting modern thermal performance should budget for upgrading windows, insulation or other energy-efficiency improvements. The local crime level is reported above average and the plot is relatively small compared with detached alternatives. Council tax is moderate.
If you prioritise a ready-to-move-in layout with scope to modernise over time, excellent transport links and a private rear garden, this property is a practical, chain-free option in a very well-connected part of Frimley.
3 bedroom semi-detached house for sale in Frimley Road, Camberley, GU15 — £440,000 • 3 bed • 1 bath • 843 ft²
4 bedroom house for sale in Chancellor Drive, Frimley, Camberley, Surrey, GU16 — £500,000 • 4 bed • 2 bath • 1168 ft²
4 bedroom detached house for sale in The Grove, Camberley, GU16 — £675,000 • 4 bed • 1 bath • 1695 ft²
4 bedroom semi-detached house for sale in Old Pasture Road, Frimley, Camberley, GU16 — £525,000 • 4 bed • 2 bath • 1416 ft²
4 bedroom detached house for sale in Stirling Close, Camberley, GU16 — £500,000 • 4 bed • 2 bath • 1769 ft²
4 bedroom semi-detached house for sale in Mulgrave Road, Camberley, Surrey, GU16 — £675,000 • 4 bed • 2 bath • 1425 ft²






































